KE-3010A_KE-3010AC_KE-3020VA_KE-3020VRA-Rev07.pdf - 第45页
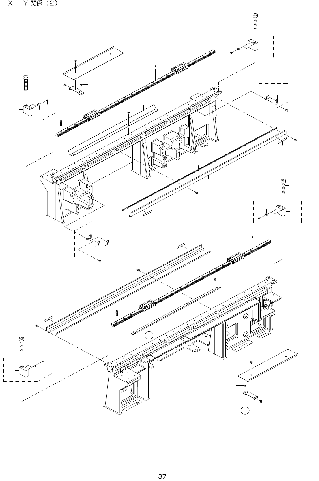
- - REF.NO NOTE PARTNO DESCRIPTION Qty 1 401-46916 Y_SENSOR_BR_F_ASM 1 2 401-46929 Y_SENSOR_BR (1 ) 3 401-29006 YLMTSENSORCABLEASM (1) 4 401-29006 YLMTSENSORCABLEASM (1) 5 SL-6040892-TN BOLT 2 …

- -
19.X-YCOMPONENTS(2)
1 3
1 3
1 3
1 7
1 6
1 4
1 5
6
1 4
1 6
1 5
1 7
1 2
1 2
1 2
1 2
1 8
1 8
1 8
1 8
1 1
1 1
1 6
1 5
1 4
1 4
1 6
1 5
1 0
1 0
1 9 2 0
1 9 2 0
2 1
2 1
9
8
7
5
4
3
1 7
2
2 3
2 2
2 2
1 3
2 5
2 6
2 4
2 7
2 7
2 5
2 6
2 4
2 7
2 7
A
1
1 7
A
2 3

- -
REF.NO NOTE PARTNO DESCRIPTION Qty
1 401-46916 Y_SENSOR_BR_F_ASM 1
2 401-46929 Y_SENSOR_BR (1)
3 401-29006 YLMTSENSORCABLEASM (1)
4 401-29006 YLMTSENSORCABLEASM (1)
5 SL-6040892-TN BOLT 2
6 401-46917 Y_SENSOR_BR_R_ASM 1
7 401-46929 Y_SENSOR_BR (1)
8 401-29006 YLMTSENSORCABLEASM (1)
9 SL-6040892-TN BOLT 2
10 400-91396 MAGNETICSCALEY 2
11 401-46930 Y_MSC_GUARD 2
12 SL-6040892-TN SCREWM4L=8 8
13 401-13989 YSTOPPERASM 4
14 400-00708 YSTOPPER (1)
15 400-49671 COVERCUSHION (2)
16 SM-4030601-SC SCREWM3X0.5L=6 (2)
17 SM-6126002-TN SCREWM12L=60 8
18 401-05882 KEEPMAGNETAWAYLABEL 4
19
#02
401-06039 YLMGUIDEL 2
20
#01
401-06038 YLMGUIDEM 2
21 SM-6051602-TN SCREW 50
22 401-46931 Y_OIL_GUARD 2
23 401-28154 LOW_HEAD_SCREW_M4 8
24 401-46932 Y_UNDER_OIL_GUARD_BR 4
25 401-46933 Y_UNDER_OIL_GUARD 2
26 401-28154 LOW_HEAD_SCREW_M4 4
27 400-81751 B_COVER_SCREW 8

- -
20.X-YCOMPONENTS(3)
A
9
4 3
1 4
8 1 3
7
5
4
3
1
3 9
6
2
9
3 5
3 4
3 5
3 4
4 3
1 9
1 8
4 1
4 0
4 2
3 9
3 7
2 5
2 2
2 1
3 6
1 9
1 8
1 4
8 1 3
4
1
7
3
5
6
2
1 7
1 5
1 6
2 4
2 4
2 3
1 1
3 2
3 3
3 0
1 2
3 1
2 6
4 4
2 8
2 7
2 7
3 1
2 0
3 8
1 2
3 0
3 2
3 3
1 1
1 0
2 9
2 9
1 0
B
B
A
4 5