3732445-5G_VT-S500_MaintenanceManual(C).pdf - 第21页
1.2 各部 分名称 1-5 z 显示器(触摸屏) 用于显示拍摄的图像、菜单、各种信 息等。面板下方的按钮可用来调 整亮度等。 也可以在触摸屏上操作画面。 显示器的倾斜可以调整。请双手握住 显示器下侧后向上提起。 安全要点 更换显示器朝向时,请小心不要夹住 手指。 z 操作板 用于开、关电源及发生异常时蜂鸣器 复位。 z 信号灯 信号灯的状态分别用为红、黄、绿三 种颜色的灯表示,灯的表示方法 在应用模式中进行设定。 可用于磁铁固定时的位…

第 1 章 概要
1-4
1.2 各部分名称
本章节就装置的外观及各部分名称进行说明。
1.2.1 装置外观名称
めい
紧急停止开关
后盖
显示器
(
触摸屏
)
信号灯
操作板
正面门
总开关
机柜门
紧急停止开关
机柜锁

1.2 各部分名称
1-5
z 显示器(触摸屏)
用于显示拍摄的图像、菜单、各种信息等。面板下方的按钮可用来调整亮度等。
也可以在触摸屏上操作画面。
显示器的倾斜可以调整。请双手握住显示器下侧后向上提起。
安全要点
更换显示器朝向时,请小心不要夹住手指。
z 操作板
用于开、关电源及发生异常时蜂鸣器复位。
z 信号灯
信号灯的状态分别用为红、黄、绿三种颜色的灯表示,灯的表示方法在应用模式中进行设定。
可用于磁铁固定时的位置微调。
z 紧急停止开关
用于紧急情况时、使装置停止运行。在操作板与装置背面各有一个。按下紧急停止开关后,照明
熄灭、驱动系统停止工作。
恢复运行时,顺时针旋转紧急停止开关释放开关后、点击触摸屏中的“恢复”键恢复运行。
z 正面门
开关正面门时需两手握住把手解锁。
并且,装置配备有门锁结构、确保检查过程中门不会打开。
使用注意
解除门锁打开正面门后、连锁装置开始工作。
运行中,除取出基板等必要情况之外请勿打开。
使用注意
装置在正常运行中、即使用双手握住把手也不能解除门锁。
只有在出现提醒请确认装置内是否残留有基板或异物的对话框、以及按下紧急停止开关
后才能解除门锁。
z 机柜门
PC、UPS、气压调节器放置在其中。开关门需要专用的钥匙。
z 总开关
检测到过电流后切断装置电源。

第 1 章 概要
1-6
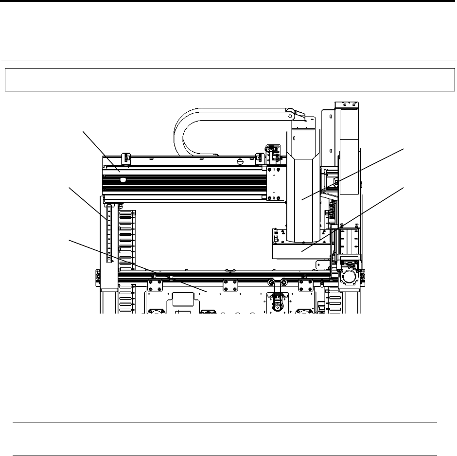
1.2.2 正面门内部名称
z 照明
向基本投射彩色高亮度照明光。
z 摄像头
拍摄基板图像。
使用上の注意
出厂时已经对装置进行校准,请勿触摸摄像头及镜头。
触摸镜头或相机后,可能会影响检查性能。
z X轴
使摄像头、照明向 X 轴方向(装置横向)移动。
z Y轴
使摄像头、照明向 Y 轴方向(装置纵向)移动。
z 输送机
输送机用于基板的搬入搬出。
决定基板的搬入位置。
传输机有单轨型、双轨型两种。
摄像头
X 轴
Y 轴
输送机
照明