3732445-5G_VT-S500_MaintenanceManual(C).pdf - 第45页
第 3 章 安装・ 转 移 3-4 3.2 电源连接 将解 释 如何 连 接 设备 的 电 源。 警 告 可能发生严重触电事故。 请务必连接地线。 注 意 偶尔会发生触电危险 。 在通电情况下,不要插、拔电线、连 接器。 注 意 偶尔会发生烧伤危险 。 在通电情况下,不要插、拔电线、连 接器。 使用注意 请 使用供电规格内的额定电压、电源 线。 使用注意 将电源线连接至总开关接线排时,请 使用 2.8N · m 的紧固扭力进行紧固, 以…

3.1 安装・转移
3-3
3.1.2 搬入搬出口外盖
为了确保本装置的安装使用,请按下图所示、在搬入搬出口安装外盖。
本章节说明的内容为搬入搬出口外盖安装范例。搬入搬出口外盖规格(尺寸范围等)请参照 S500 一般
规格说明书。
安全要点
为了确保本装置的安全使用,以防手指不慎进入装置的搬入搬出口,请在装置上下游所
安装的传输机等连接部位安装与其相应的外盖。
以下就搬入搬出口外盖安装方法进行说明。
安装搬入搬出口外盖时,请使用本装置搬入搬出口的铝制框架凹槽。
将内置螺母从开口部(参照下图)嵌入铝制框架凹槽,然后将用于安装搬入搬出口外盖的托架固定于螺
母上。
使用注意
本装置安装上所需搬入搬出口的外盖请用户自行讨论决定,并自行制作安装外盖所需的
托架。
在前侧、后侧两面安装用于搬入搬出口外盖安装的托架后,将搬入搬出口外盖固定于该托架上。
搬入搬出口外盖事例
330mm 以上
内置螺母
托架范例
外盖安装孔

第 3 章 安装・转移
3-4
3.2 电源连接
将解释如何连接设备的电源。
警 告
可能发生严重触电事故。
请务必连接地线。
注 意
偶尔会发生触电危险。
在通电情况下,不要插、拔电线、连接器。
注 意
偶尔会发生烧伤危险。
在通电情况下,不要插、拔电线、连接器。
使用注意
请
使用供电规格内的额定电压、电源线。
使用注意
将电源线连接至总开关接线排时,请使用
2.8N
·
m
的紧固扭力进行紧固,
以防电源线发生接触不良现象。
z 供电电源
电源电压 200-240V (铭牌中有记载)
频率 50/60Hz (铭牌中有记载)
电源容量 1.6kVA (铭牌中有记载)

3.2 电源连接
3-5
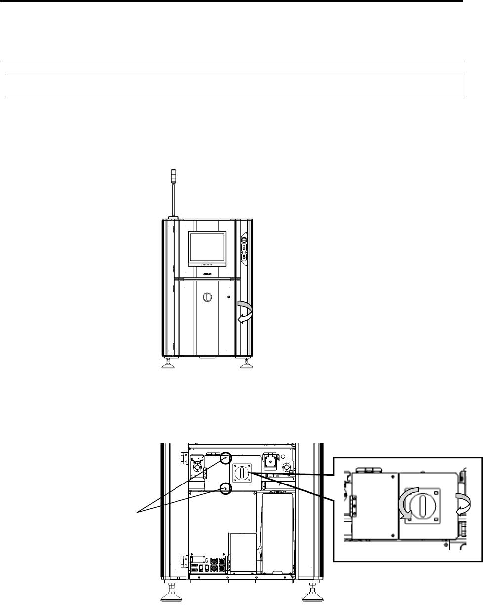
3.2.1 电源连接步骤
为本装置接通电源时,请确认总开关是否处于 OFF 状态、供电电压是否与铭牌中记载的电压一
致。
1.
打开机柜。
请使用专用钥匙打开机柜。
2.
打开总开关外盖。
拆下用于固定总开关外盖的螺钉。(下图①)
将总开关旋转至 RESET(下图②),听到咔嚓声后,
在保持开关当前状态的同时打开总开关外盖(下图③)。
③
②
①
总开关外盖
固定螺钉