N7205A106B04[201502].pdf - 第99页
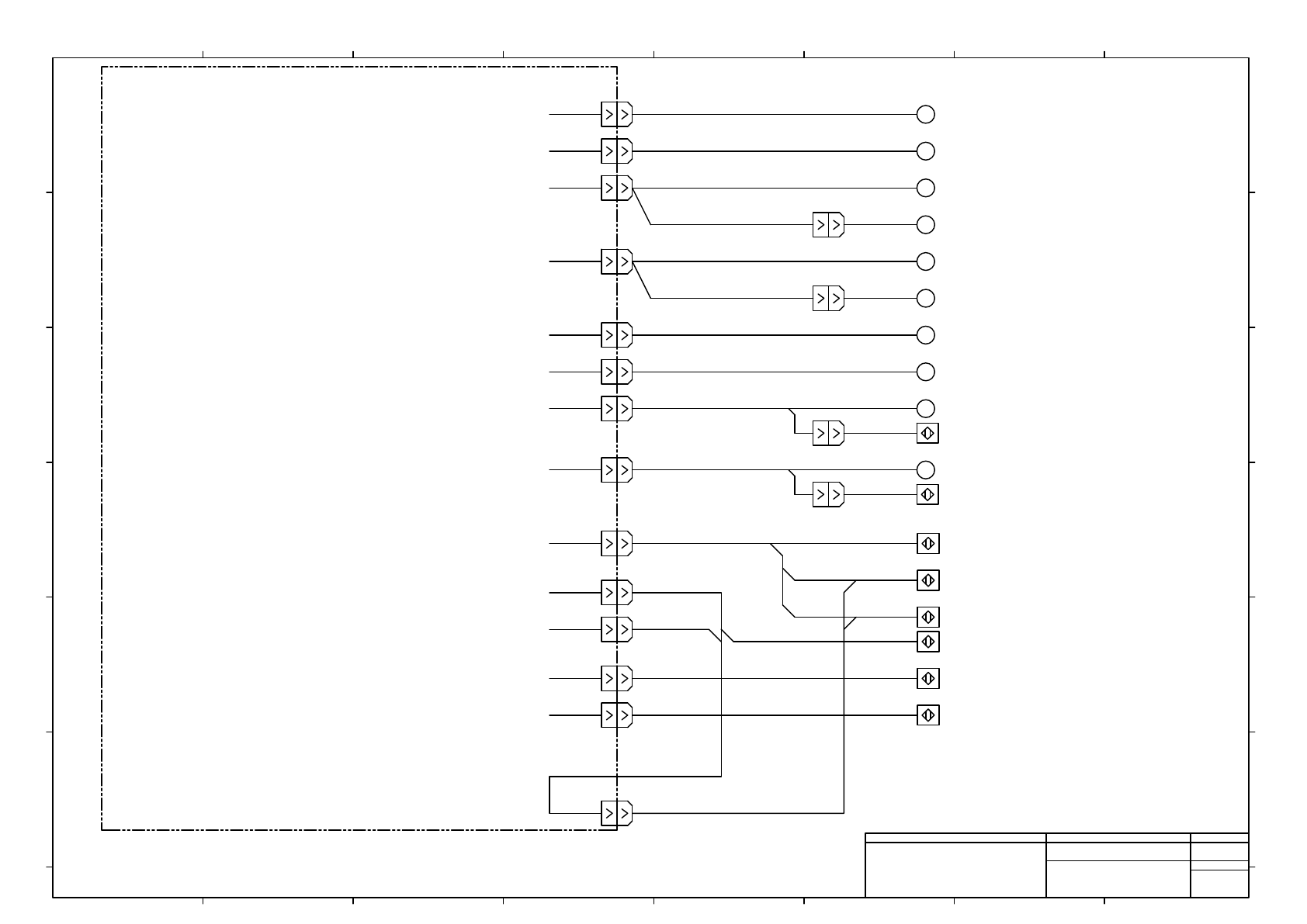
N610153347**:Main Body wiring:NPM-D2 1M603R M -M607 L1 Width Adjustment motor B1C00,B1C01,B1C02,B1C03 M -M638 L2 Width Adjustment motor B1D00,B1D01 M -M602 L1 Mount Position Conveyor motor 1M607R 1M638R 1M602R M -M603 L1…

N610153347**:Main Body wiring:NPM-D2
1M603R
M
-M607 L1 Width Adjustment motor
B1C00,B1C01,B1C02,B1C03
M
-M638 L2 Width Adjustment motor
B1D00,B1D01
M
-M602 L1 Mount Position Conveyor motor
1M607R
1M638R
1M602R
M
-M603 L1 Right Conveyor motor
M
-M601 L1 Left Conveyor motor1
1M601R
M
-M634 L2 Left Conveyor motor1
1M634R
M
-M636 L2 Right Conveyor motor
1M636R
M
-M635 L2 Mount Position Conveyor motor
1M635R
B1120R
B1130R
B1115R
B1117R
B1120,B1121
B1136,B1113,B1122,B1115
B1133,B1132
B1134,B1112,B1124,B1117
B1127,B1131
B1131R
M
-M609 L1 Left Conveyor motor2
M
-M63C L2 Left Conveyor motor2
1B1130P
1B1130R
B1130,B1126
1
1
1
1
2
2
2
Panasonic Factory Solutions Co.,Ltd. パナソニック ファクトリーソリューションズ株式会社
Name
Drawing No.
Loc. No.
F4K1020-05A
1
2 3 4 5 6 7 8
A
B
C
D
E
F
1 2 3 4 5 6 7 8
A
B
C
D
E
F
Page. No.
PC Dual Conveyor Wiring:NPM-D2
(Block diagram1)
N610152998+002AD
P002
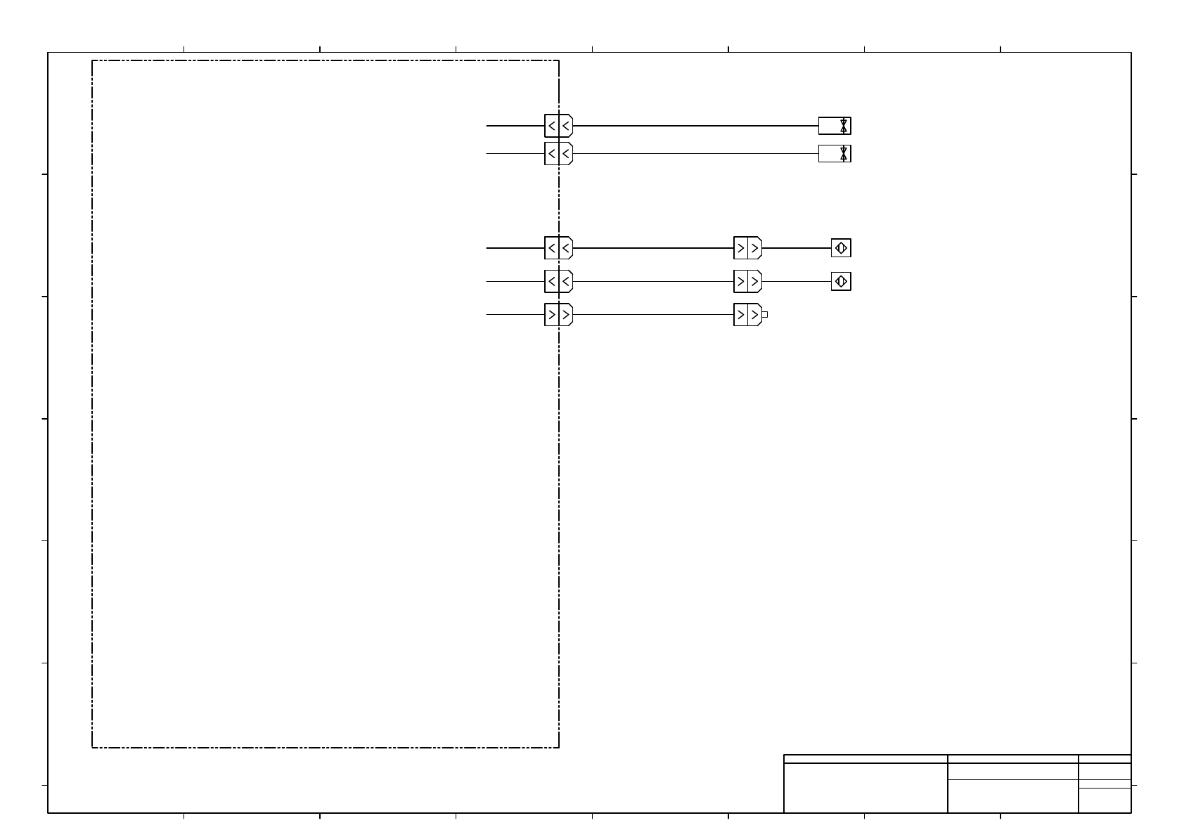
N610159580**:Main Body wiring:NPM-D3
3
3
1M603P
1M607P
1M638P
1M602P
1M601P
1M634P
1M636P
1M635P
B1120P
B1130P
B1115P
B1117P
B1131P

R4134P
R4136P
R4134,R4135
R4136,R4137
Transfer spec
1B1223R
1B1235P
1B1244P
B1235,B1236
B1244,B1245
2
Panasonic Factory Solutions Co.,Ltd. パナソニック ファクトリーソリューションズ株式会社
Name
Drawing No.
Loc. No.
F4K1020-05A
1
2 3 4 5 6 7 8
A
B
C
D
E
F
1 2 3 4 5 6 7 8
A
B
C
D
E
F
Page. No.
PC Dual Conveyor Wiring:NPM-D2
(Block diagram2)
N610152998+003AD
P003
N610153347**:Main Body wiring:NPM-D2
1
N610159580**:Main Body wiring:NPM-D3
3
3
R4134R
R4136R
1B1235R
1B1244R
1B1223P