PTS-FIFEEDER-19..pdf - 第101页
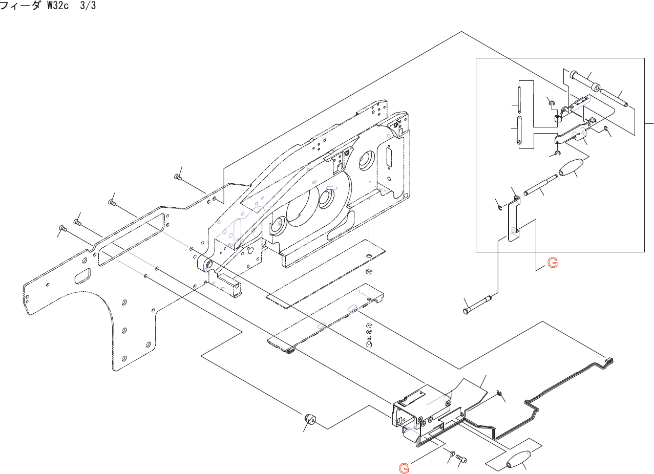
FEEDER W32 c 3/3 フィ ーダ W3 2c 3 /3 AB10329 No. Drg.No. & Cod e No. QT Y Description Ra ting Re marks 番号 図番 & コード番号 個数 品名 規格 備考 1 AA8GL 0 4 1 SE NSOR センサ 2 K5357L 1 SC REW , HEX SOCKET C O UNTER SUNK 小ネジ 六角 穴皿 M03…

G
G
2
5
32
33
3
4
18
19
13
22
15
16
17
20
21
14
11
22
23
31
1
9
8
12
AB10329
FEEDER W32c 3/3
100
PTS-FIFEEDER-19

FEEDER W32c 3/3
フィーダ W32c 3/3
AB10329
No.
Drg.No. & Code No.
QTY
Description
Rating
Remarks
番号
図番
&
コード番号
個数
品名
規格
備考
1
AA8GL04
1
SENSOR
センサ
2
K5357L
1
SCREW, HEX SOCKET COUNTERSUNK
小ネジ 六角穴皿
M03X006(3
カ
シロ
)
3
H54251
1
BOLT, HEX SOCKET
ボルト 六角穴
M03X006(3
カ
シロ
)
4
W1106C
1
WASHER, LOCK
ワッシャ スプリング
3M/M(3
カ
シロ
)
5
K65003
1
SCREW, HEX SOCKET COUNTERSUNK
小ネジ 六角穴皿
M03X005(3
カ
シロ
)
8
PM87182
1
PIN
ピン
9
K5357L
1
SCREW, HEX SOCKET COUNTERSUNK
小ネジ 六角穴皿
M03X006(3
カ
シロ
)
11
2ADLFC001700
1
BKT, ROLLER
BKT ローラ
12
K65003
2
SCREW, HEX SOCKET COUNTERSUNK
小ネジ 六角穴皿
M03X005(3
カ
シロ
)
13
2MDLFC002900
1
BKT, ROLLER
BKT ローラ
14
PJ03983
1
ROLLER
ローラ
15
PM90412
1
PIN
ピン
16
S1003N
1
CIR-CLIP
サークリップ
ST-EW-2.5(3
カ
シロ
)
17
S1003D
1
CIR-CLIP
サークリップ
ST-EW-2(3
カ
シロ
)
18
PJ04522
1
ROLLER
ローラ
19
PM44111
1
PIN
ピン
20
PJ01095
1
ROLLER
ローラ
21
PM44141
1
PIN
ピン
22
S61924
2
CIR-CLIP, E-TYPE
サークリップ E形
E-1.5 (3
カ
シロ
)
23
PB063F0
1
BKT, SUPPORT
BKT 支え
31
PM90421
1
PIN
ピン
32
PJ03983
1
ROLLER
ローラ
33
S1003N
1
CIR-CLIP
サークリップ
ST-EW-2.5(3
カ
シロ
)
101
PTS-FIFEEDER-19

21
5
6
15
5
5
6
11
12
22
3
14
4
16
14
15
15
16
7
22
9
10
8
1
2
4
4
4
4
REEL HOLDER W32c 15inch
AA85315
102
PTS-FIFEEDER-19