HDF Chinese.pdf - 第16页
HDF 2003 年1月1日 12 2) 识别记号的规格 基板识别摄象机的视野范围为 □ 7.5 毫米,因此识别记号必需在此视野范围内。 ( 记号尺寸的确认允许值在表示尺寸的± 20 %以内 ) ■ 基板记号的位置 • 基板记号的个数 2 个 基板记号的设定 位置请设定在基板 的某一条对角线上的 边角部附近。 ■ 推荐的记号 为单边1 .0 毫米的 正方形。 ( …

HDF 2003 年1月1日
11
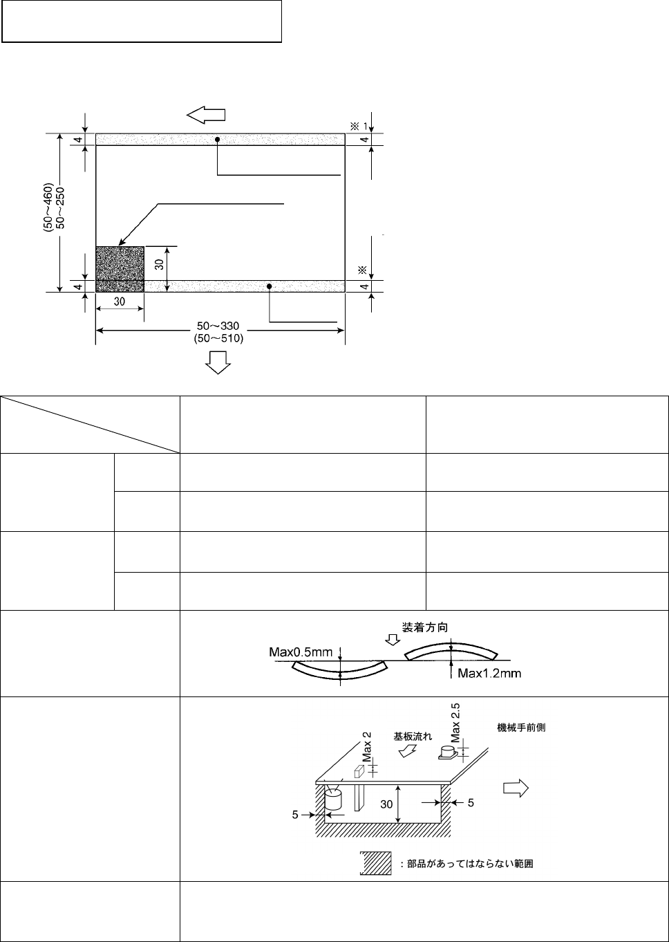
1)印制电路板的规格概要
NM-DC10(M) NM-DC15(XL)
Max 330×250mm 510×460mm
能够使用的基板
Min 50×50mm 50×50mm
Max 330×242mm 510×452mm
能够涂布的基板
Min 50×42mm 50×42mm
基板允许翘曲精度
涂布前的基板状态
基板的厚度 0.5~4.0毫米(基板夹持方式)
※带有切口的基板,由于切口位置和大小的不同,可能会造成基板检测传感器·限制器的误动作,请预
先联系通知本公司。
5.印制电路板的设计标准
※1 可能会有不同的涂胶嘴
(请参照第 20 页)
切口的最大尺寸
元器件的次品记号没有到位
基板流动方向
42~242
(42~452)
能够涂布的范围
元器件没有到位
的范围
设备前方一侧
()外为M
()内为XL
装载方向
基板流动
设备前方一侧
元器件没有到位的范围

HDF 2003 年1月1日
12
2)识别记号的规格
基板识别摄象机的视野范围为
□
7.5毫米,因此识别记号必需在此视野范围内。
(记号尺寸的确认允许值在表示尺寸的±20%以内)
■ 基板记号的位置
•
基板记号的个数2个
基板记号的设定位置请设定在基板的某一条对角线上的边角部附近。
■ 推荐的记号
为单边1.0毫米的正方形。(实心)
■ 识别记号凡例
•
形状∶正方形、正三角形、园形、菱形
・
也有其他的使用方法,欢迎垂询。
(注)1.推荐的记号为单边1.0毫米的正方形,公差为±0.1毫米。
2.涂焊料(焊料整平器)时,要求做到焊料涂层厚度记号全面
均匀,且表面平坦。
3.焊料涂层厚度规定为20μm以下。
4.记号边角的R规定为≤0.2毫米。
A尺寸(2~1毫米)B尺寸(0.2毫米)C尺寸(0.5~1.0毫米)
处理∶a.铜箔(也可以是实心的)
b.焊料涂层(有时识别会随焊料前面形状的变化而变得困难。)
注意∶a.不得在记号中心±1.5 毫米(3 毫米正方形)周围位置内装设固体电
阻和图形。
b.陶瓷基板需要另外商洽。
基板记号
焊料涂层
铜箔
记 号

HDF 2003 年1月1日
13
•
涂胶嘴偏芯校正的测量结果,当涂胶嘴的旋转角度超过±2°时,则再不得使用。
•
涂胶嘴偏芯校正的测量结果,当涂胶嘴的X·Y方向中的某一方向超过±1毫米时,则再不得使用。
基板矫正时,当基板本身的矫正角和偏芯角之和超过±3°时,由于θ轴的极限误差
而使设备停止运转。
6.涂胶嘴偏芯校正功能
通过修正涂胶嘴的偏芯,能够把涂胶嘴调换前后的涂布位置偏离控制在最小的范围内。
(有时,由于特殊涂胶嘴形状的原因而不能对应地加以修正。请另外商洽。)
特 点
自动地校正各
个涂胶嘴
试验性涂布
(打十字)
微调
(手动输入)