CM212-M.pdf - 第242页
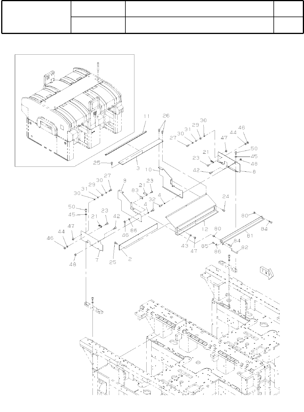
29-A BRカバー (フィーダ) BR COVER(FEEDER) パーツレイアウト Ki t N o . キット 品番 Kit N am e キット名称 N610024212AA セクションNo. PARTS LAYOUT Section No. - - S109 ( KN610024212AA-17-1 )

Ref
No.
Remarks
R
1
Q'ty
28-B
ARカバー (フィーダ)
AR COVER(FEEDER)
イラスト
No.
Part No.
品 名品番 数量
R
2
パーツリスト
Kit N
o
.
キット品
番
Kit Name
キット名称
N610023638AA
Part Name
備 考
セクションNo.
PARTS LIST
Section No.
R
3
COVER
1
1 N210026338AF
S
COVER
1
12 N210027713AA
BRACKET
1
13 N210027715AA
COVER
1
14 N210043328AA
BRACKET
1
15 N210064060AA
PULL
1
17 KXF0DX62A00 AP-829-2
SCREW
2
25 N510018258AA
Cross recessed Truss head machine screw M4X10-4.8 A2S (Trivalent)
SCREW
12
33 N510018282AA
Cross recessed Truss head machine screw M4X8-4.8 A2J (Trivalent)
BOLT
2
34 N510001804AA SRBS-M4X25
WASHER
8
35 N510011899AA NN-0816-10
SPACER
8
36 N510019916AA CB-503E
SPACER
4
37 N510019894AA ASF-440E
GAS-SPRING
2
38 KXF0E1VCA00
S
KSF90-10M
SCREW
8
39 N510018303AA
Cross recessed Truss head machine screw M5X8-4.8 A2S (Trivalent)
WASHER
4
42 N510018497AA
Round finish plain washer 4 10H A2J (Trivalent)
WASHER
6
44 N510020100AA Thick washer for M5
NUT
2
46 N510017855AA
Hexagon nut Type-1 Best class M4-6H-4T A2J (Trivalent)
WASHER
8
50 N510018499AA
Round finish plain washer 5 10H A2J (Trivalent)
BOLT
2
52 N510017346AA
Hexagon socket head cap screw M4X12-10.9 A2J (Trivalent)
WASHER
12
53 N510013724AA TM-147-2V
COVER
1
56 N210064063AA
COVER
1
57 N210043289AA
BOLT
4
59 KXF09KJAA00 MSB10-10
WASHER
8
60 N510018506AA
Round finish plain washer (JIS B 1256:1978) 10 10H A2J (Trivalent)
NUT
2
63 N510017877AA
Hexagon nut Type-1 Best class M8-6H-4T A2J (Trivalent)
BAR
1
65 N210049616AA
STOPPER
1
66 N210049617AB
BRACKET
1
67 N210049615AC
SPACER
2
68 N510020966AA CB-512E
BOLT
8
69 N510017395AA
Hexagon socket head cap screw M5X16-10.9 A2J (Trivalent)
BOLT
2
70 N510017399AA
Hexagon socket head cap screw M5X25-10.9 A2J (Trivalent)
FRAME
1
71 N610049251AD
S
NUT-PLATE
1
72 N210066061AA
PLATE
1
73 N210066062AA
GROMMET
2
74 N510055131AA C-30-RK-10-EP-UL-Black
BOLT
2
75 N510017247AA
Hexagon socket head cap screw M2.5X8-10.9 A2J (Trivalent)
TRIM
2
76 N9866224-B98 62-24-B-5-Aluminium
SCREW
4
77 N510018291AA
Cross recessed Truss head machine screw M5X16-4.8 A2S (Trivalent)
NUT
2
85 N510017840AA
Hexagon nut Type-1 Best class M2.5-6H-4T A2J (Trivalent)
WASHER
2
86 N510018490AA
Round finish plain washer (JIS B 1256:1978) 2.5 10H A2J (Trivalent)
S108
--
( KN610023638AA-17-2 )

29-A
BRカバー (フィーダ)
BR COVER(FEEDER)
パーツレイアウト
Ki
t
N
o
.
キット
品番
Kit Name
キット名称
N610024212AA
セクションNo.
PARTS LAYOUT
Section No.
--
S109
( KN610024212AA-17-1 )

Ref
No.
Remarks
R
1
Q'ty
29-A
BRカバー (フィーダ)
BR COVER(FEEDER)
イラスト
No.
Part No.
品 名品番 数量
R
2
パーツリスト
Kit N
o
.
キット品
番
Kit Name
キット名称
N610024212AA
Part Name
備 考
セクションNo.
PARTS LIST
Section No.
R
3
COVER
1
2 N210045327AA
COVER
1
3 N210045328AA
COLLAR
2
4 KXFB058VA01
BRACKET
1
7 N210045329AB
S
BRACKET
1
8 N210045330AA
COVER
1
9 N210045331AB
COVER
1
10 N210056306AA
COVER
1
11 N210045333AA
COVER
1
12 N210045334AA
MAGNET
3
21 KXF0CS8AA00 C-54-2-black
SCREW
6
23 N510018233AA
Cross recessed Truss head machine screw M3X10-4.8 A2S (Trivalent)
SCREW
4
24 N510018280AA
Cross recessed Truss head machine screw M4X6-4.8 A2S (Trivalent)
SCREW
7
25 N510018283AA
Cross recessed Truss head machine screw M4X8-4.8 A2S (Trivalent)
SCREW
4
26 N510018258AA
Cross recessed Truss head machine screw M4X10-4.8 A2S (Trivalent)
SCREW
2
27 N510018266AA
Cross recessed Truss head machine screw M4X16-4.8 A2S (Trivalent)
WASHER
2
29 KXF0CXEAA00 URWH12-8-5
WASHER
4
30 N510018469AA
Iron round plain washer4X10X1.0 A2J (Trivalent)
SPACER
2
31 N510017097AA CB-405E
BOLT
2
32 KXF0DYG5A00 GUTB4-5-10
BOLT
2
42 N510017424AA
Hexagon socket head cap screw M6X10-10.9 A2J (Trivalent)
BOLT
2
42 N510017425AA
Hexagon socket head cap screw M6X10-10.9 A2S (Trivalent)
WASHER
6
43 N510018497AA
Round finish plain washer 4 10H A2J (Trivalent)
WASHER
4
44 N510020098AA Thick washer for M3
WASHER
4
45 N510020100AA Thick washer for M5
NUT
6
46 N510017849AA
Hexagon nut Type-1 Best class M3-6H-4T A2J (Trivalent)
NUT
8
47 N510017855AA
Hexagon nut Type-1 Best class M4-6H-4T A2J (Trivalent)
NUT
2
48 N510017867AA
Hexagon nut Type-1 Best class M6-6H-4T A2J (Trivalent)
BOLT
4
50 N510017390AA
Hexagon socket head cap screw M5X12-10.9 A2J (Trivalent)
COLLAR
1
80 N210071617AA
BRACKET
1
81 N210075829AA
DOG
1
82 N210075609AA
BRACKET
1
83 N210118913AA
SCREW
2
84 N510018266AA
Cross recessed Truss head machine screw M4X16-4.8 A2S (Trivalent)
BOLT
2
85 N510017337AA
Hexagon socket head cap screw M3X6-10.9 A2J (Trivalent)
WASHER
4
86 N510018494AA
Round finish plain washer 3 10H A2J (Trivalent)
S110
--
( KN610024212AA-17-1 )