NPM-D电路.pdf - 第72页
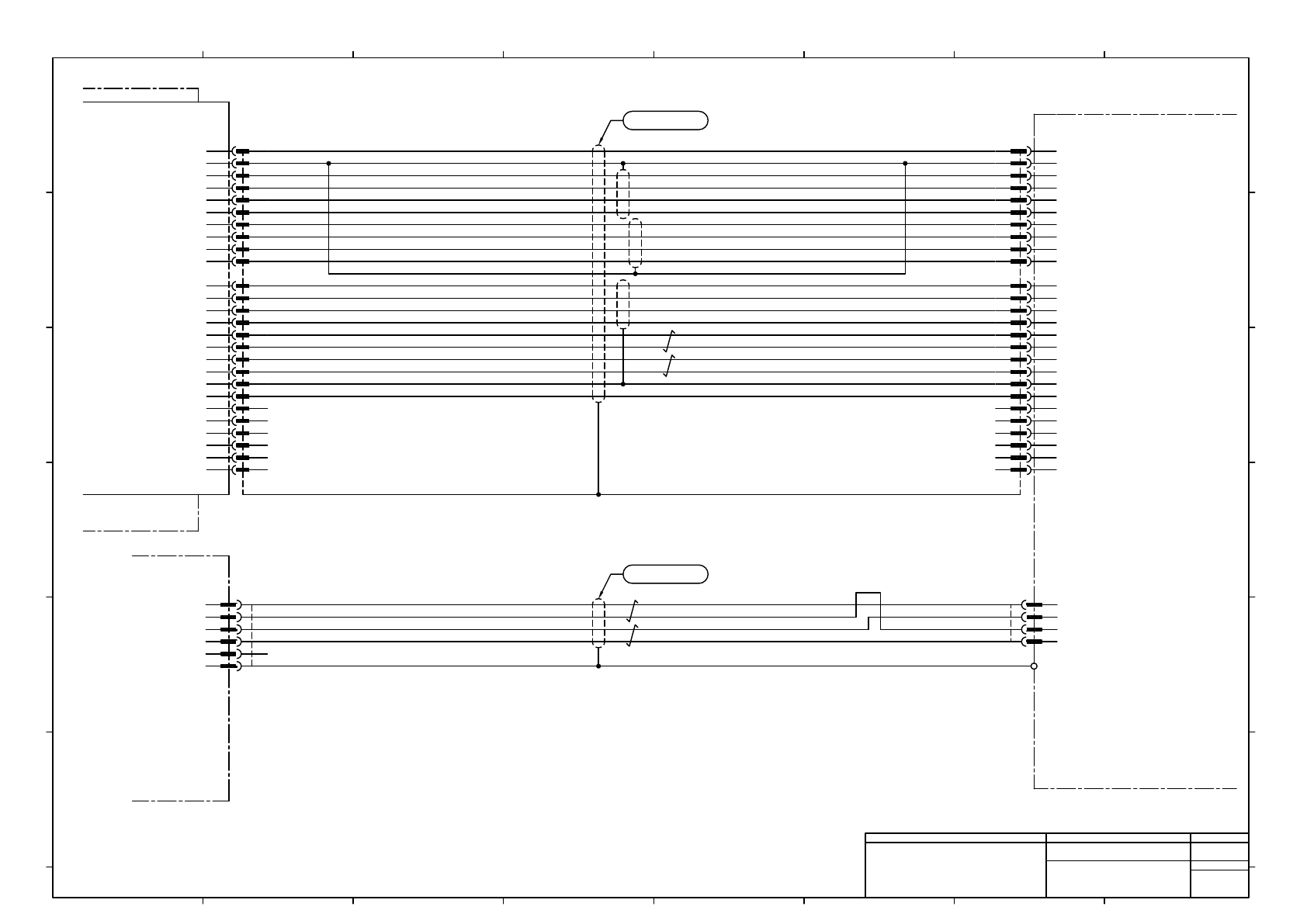
-A02 Power Unit 1 LC1 P24 G24 1 2 3 4 5 6 P24 G24 N.C FG FGA45 1.25-4 JST -A45 CN1 P24 G24 P24 G24 1 3 2 4 BK/WH BK RD/WH RD N610156559AC Multi Recognition Camera (Front) MOLEX CN1RA45 5557-04R-210 4 3 2 1 MOLEX LC1A02 5…

X4
CN3
-A46
-K503
MCDHT3520NL3
Panasonic (Motor)
-K504
MEDHT7364NL3
Panasonic (Motor)
Driver
Cooling
Fan2
(Rear)
-K321
PNF0B4
CN-FANC
ILK Board #1
-A02
Power Unit 1
M
-
n
-G102
109L0624H4J04
RD
YE
BK
SANYO DENKI
N610157836AD
24VOUT
N.C
1
2
3
24GND
ENC_A1_P
ENC_A1_N
1
8
3
10
2
9
ENC_B1_P
ENC_B1_N
GND
NC
GND
ENC_A2_P
4
11
5
12
7
14
ENC_A2_N
ENC_B2_P
ENC_B2_N
GND
NC
6
13
RESERVED
RESERVED
GND
17
20
21
22
16
18
19
I-COM
6
9
SHELL : FG
X4
RESERVED
RESERVED
GND
17
20
21
22
16
18
19
I-COM
6
9
SHELL : FG
BK
BK/WH
2464C(BPF)VVP AWG#24×1P-B
2464C(BPF)VSVP AWG#24×3P-B
GN/WH
GN
BK/WH
BK
RD/WH
RD
OA+
OB+
OA-
OB-
OA+
OB+
OA-
OB-
SI-MON1
SI-MON1
NC
2464C(BPF)VVP AWG#24×1P-B
BK
BK/WH
10314-52A0-008
JST
CNFANC
PAP-03V-S
3
2
1
AMP
G102R
177899-1
3
2
1
Sumitomo 3M
CN3A46
10114-3000PE
1
8
3
10
2
9
4
11
5
12
7
14
6
13
AMP
G102P
177907-1
3
2
1
Sumitomo 3M
X4K503
10126-3000PE
16
22
21
19
20
18
17
9
6
RX-Axis
Motor Driver
Multi Recognition Camera
(Rear)
RY-Axis
Motor Driver
Note1) Connector Pin arrangement is not sequential.
Note1)
Note1)
4
3
2464-1061/ⅡA(PF) LF 1P×24AWG
4
2464-1061/ⅡA(PF) LF 1P×24AWG
4
2464-1061/ⅡA-SBX(PF) LF 3P×24AWG
4
4
Panasonic Factory Solutions Co.,Ltd. パナソニック ファクトリーソリューションズ株式会社
Name
Drawing No.
Loc. No.
F4K1020-05A
1
2 3 4 5 6 7 8
A
B
C
D
E
F
1 2 3 4 5 6 7 8
A
B
C
D
E
F
Page. No.
Main Body Wiring : NPM-D3
(Encoder Connection RX,RY Axis)
N610159580+022AF
P022
5
5

-A02
Power Unit 1
LC1
P24
G24
1
2
3
4
5
6
P24
G24
N.C
FG
FGA45
1.25-4
JST
-A45
CN1
P24
G24
P24
G24
1
3
2
4
BK/WH
BK
RD/WH
RD
N610156559AC
Multi Recognition Camera
(Front)
MOLEX
CN1RA45
5557-04R-210
4
3
2
1
MOLEX
LC1A02
5557-06R-210
6
5
4
3
2
1
2464C(BPF)VSVP AWG#22×2P-B
-K303
PPRCAH
-A01
CPU Box
Capture Board
CN2
N510040486AA
SHIELD
GND/12V
GND
X0-
X0+
X1-
X1+
X2-
X2+
XCLK-
XCLK+
X3-
X3+
SERTC+
SERTC-
CC1-
CC1+
SERTFG-
SERTFG+
GND
GND/12V
CC2+
CC2-
CC3-
CC3+
CC4+
CC4-
1
14
25
12
24
11
23
10
22
9
21
8
20
7
18
5
19
6
13
26
17
4
16
15
3
2
GND/12V
GND
X0-
X0+
X1-
X1+
X2-
X2+
XCLK-
XCLK+
X3-
X3+
SERTC+
SERTC-
CC1-
CC1+
SERTFG-
SERTFG+
GND
GND/12V
1
14
2
15
3
16
4
17
5
18
6
19
7
20
9
22
8
21
13
26
10
23
11
12
24
25
LB
DRAIN
BN
YE
BN
GN
WH
BN
GN
RD
DRAIN
WH
BN
GN
BU
WH
BN
DRAIN
BN
GN
YE
CAML-E-1000
HONDA
CN2K303
HDR-E26MG+
1
14
25
12
24
11
23
10
22
9
21
8
20
7
18
5
19
6
13
26
17
4
16
3
15
2
HDR-E26LPH
HONDA
CN2A45
HDR-E26MG+
25
12
24
11
23
10
26
13
21
8
22
9
20
7
19
6
18
5
17
4
16
3
15
2
14
1
HDR-E26LPJ+
CC2+
CC2-
CC3-
CC3+
CC4+
CC4-
CN2
Note1) Connector Pin arrangement is not sequential.
Note1)
Note1)
1
2464-1061/ⅡA-SBX(PF) LF 2P×22AWG
2
2
Panasonic Factory Solutions Co.,Ltd. パナソニック ファクトリーソリューションズ株式会社
Name
Drawing No.
Loc. No.
F4K1020-05A
1
2 3 4 5 6 7 8
A
B
C
D
E
F
1 2 3 4 5 6 7 8
A
B
C
D
E
F
Page. No.
Main Body Wiring : NPM-D3
(Multi Recognition Camera Front)
N610159580+023AC
P023

-A02
Power Unit 1
LC2
P24
G24
1
2
3
4
5
6
P24
G24
N.C
FG
FGA46
1.25-4
JST
CN1
P24
G24
P24
G24
1
3
2
4
BK/WH
BK
RD/WH
RD
N610156560AC
Multi Recognition Camera
(Rear)
MOLEX
CN1RA46
5557-04R-210
4
3
2
1
MOLEX
LC2A02
5557-06R-210
6
5
4
3
2
1
2464C(BPF)VSVP AWG#22×2P-B
-K303
PPRCAH
-A01
CPU Box
Capture Board
CN3
N510055184AA
SHIELD
GND/12V
GND
X0-
X0+
X1-
X1+
X2-
X2+
XCLK-
XCLK+
X3-
X3+
SERTC+
SERTC-
CC1-
CC1+
SERTFG-
SERTFG+
GND
GND/12V
CC2+
CC2-
CC3-
CC3+
CC4+
CC4-
1
14
25
12
24
11
23
10
22
9
21
8
20
7
18
5
19
6
13
26
17
4
16
15
3
2
GND/12V
GND
X0-
X0+
X1-
X1+
X2-
X2+
XCLK-
XCLK+
X3-
X3+
SERTC+
SERTC-
CC1-
CC1+
SERTFG-
SERTFG+
GND
GND/12V
1
14
2
15
3
16
4
17
5
18
6
19
7
20
9
22
8
21
13
26
10
23
11
12
24
25
LB
DRAIN
BN
YE
BN
GN
WH
BN
GN
RD
DRAIN
WH
BN
GN
BU
WH
BN
DRAIN
BN
GN
YE
CAML-E-2000
HONDA
CN3K303
HDR-E26MG+
1
14
25
12
24
11
23
10
22
9
21
8
20
7
18
5
19
6
13
26
17
4
16
3
15
2
HDR-E26LPH
HONDA
CN2A46
HDR-E26MG+
25
12
24
11
23
10
26
13
21
8
22
9
20
7
19
6
18
5
17
4
16
3
15
2
14
1
HDR-E26LPJ+
CC2+
CC2-
CC3-
CC3+
CC4+
CC4-
CN2
Note1) Connector Pin arrangement is not sequential.
Note1) Note1)
1
-A46
Panasonic Factory Solutions Co.,Ltd. パナソニック ファクトリーソリューションズ株式会社
Name
Drawing No.
Loc. No.
F4K1020-05A
1
2 3 4 5 6 7 8
A
B
C
D
E
F
1 2 3 4 5 6 7 8
A
B
C
D
E
F
Page. No.
Main Body Wiring : NPM-D3
(Multi Recognition Camera Rear)
N610159580+024AC
P024
2464-1061/ⅡA-SBX(PF) LF 2P×22AWG
2
2