RX-8_SPE_JP.pdf - 第20页
16 シングル 搬送仕様装置(流れ方向 R → L ) 50 ~ 450mm 40mm 40mm 3mm 3mm 8mm 8mm 40mm 50 ~ 350mm 50 ~ 350mm 40mm

15
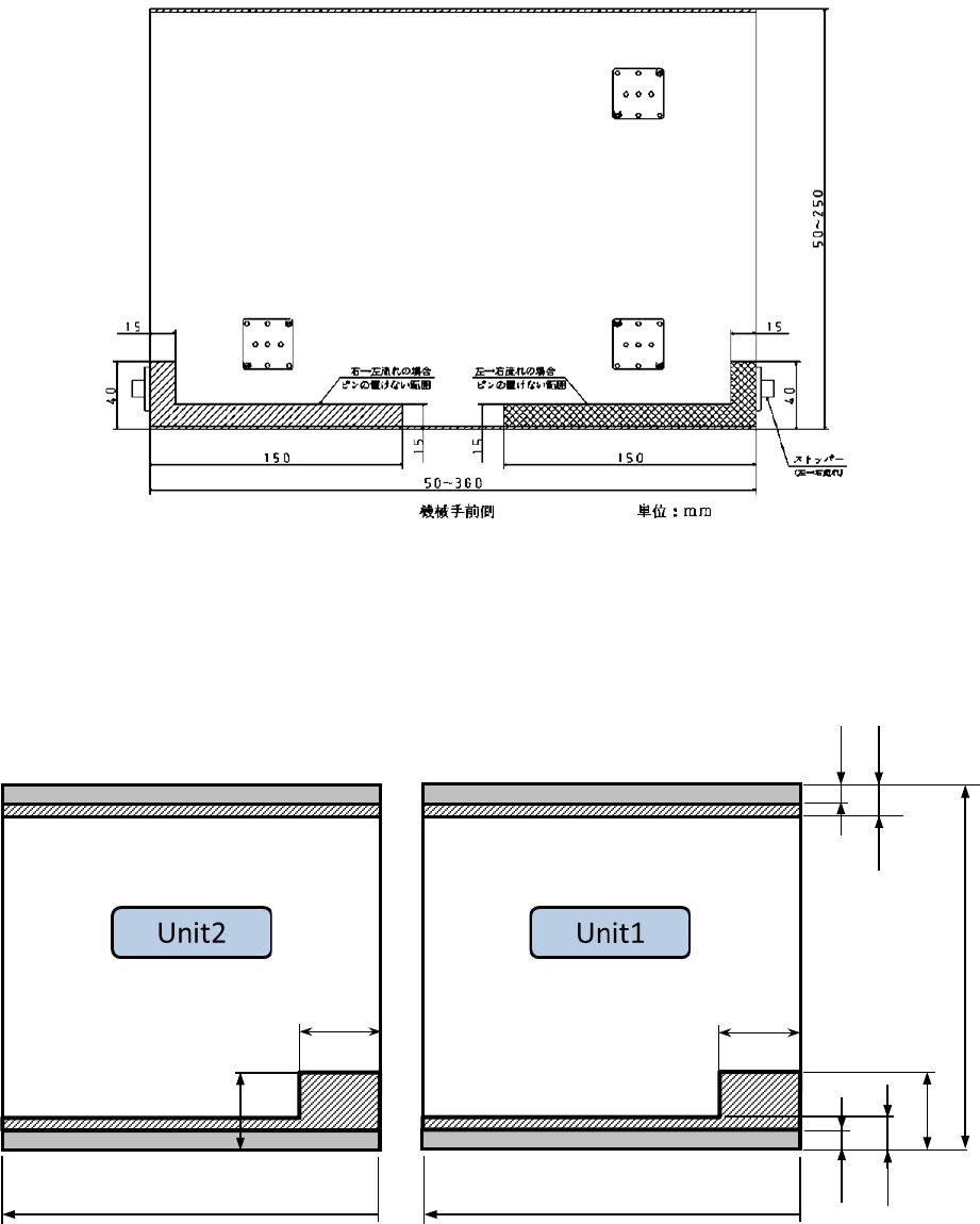
■RX-8 使用時にバックアップピンの置けない範囲
■RX-8 バックアップピンの置けない範囲
シングル搬送仕様装置(流れ方向 L→R)
シ ン グ ル 仕様:50
~
450mm
40mm
40m
3mm
3mm
8mm
8mm
40mm
40m
50
~
350mm
50
~
350mm

16
シングル搬送仕様装置(流れ方向 R→L)
50
~
450mm
40mm
40mm
3mm
3mm
8mm
8mm
40mm
50
~
350mm
50
~
350mm
40mm

17
4-7-3 基板そり許容範囲
4-7-4 基板上面及び裏面搭載可能範囲
次の図に示すように、プリント基板の両端から 3mm の範囲は部品を取り付けできません。
また、裏面取り付け部品の最大高さは 26mm です。
部品搭載方向