松下印刷机SP18P-L规格说明书.pdf - 第20页
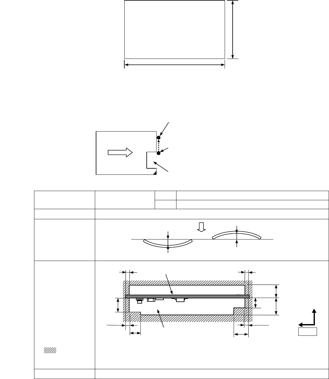
SP18P-L 2006.0601 - 14 - 6.2 印刷基板规格概要 ■ 基板切口标准 ・ 基板止动器接触位置有切口时,偏移止动器停止位置进 行对应。 ・ 传感器检测部的容许间隙宽度为 3 mm 。 [ 下图表示左 → 右流向、前面基准 ( 标准 ) 时的设定。其他条件 ( 选购件 ) 时也以此为准。 ] Min. 50 mm × 50 mm 能够使用的基板尺 寸 能够使用的基板尺 寸 Max. 510 mm × 4 60 mm …

SP18P-L 2006.0601
- 13 -
3
M
尺寸规格
(
选购件
): 550 mm × 650 mm
纵向长/
600 mm × 550 mm
横向长
(
单位
: mm)
名称
①张力膜・网眼
②粘着部分
(
宽
: 25 mm)
③金属・网眼
④基板外形
⑤基准
⑥丝网面
※
网板框材质
:
铝铸造物、铝制管
∗∗
Remarks
∗∗
•
【
M
尺寸规格】选择选购件时,可以使用
2
种类的网板。
(
M
尺寸规格时,夹钳器、清洁装置等是M尺寸专用元件。)
•
请将基板的中心位于符号
处进行制版。网眼、金属组件都在相同位置。
•
网眼规格,全面为网眼。
•
金属组件规格是,将
410 mm × 460 mm
的金属板作为上图位置。
•
请注意模板尺寸。
Y
方向的网板粘贴用银标签请贴在基板尺寸
+
单侧
75 mm
范围外。
(
若有银标签,根据对印
刷品质的影响需要偏移印刷范围。
)
•
使用比
100 µm
薄的网板时,请与本公司联络。
•
其他基准
(
端面等
)
请另行与本公司联络。
40
650 (550)
450
275 (300)
325 (275)
60
(10)
60
(10)
40
25 25
550
(
600
)
440
40
15 (40)
15 (40)
40
25
25
①
②
③
④
⑤
⑥
识别标记
在贯通孔或者下面设置标记
(
必须在基板区域内)
操作员侧
30
能够安装厚度
20
~
42
Min. 50
~
Max. 250
Min. 50
~
Max. 330
中心/中心基准
(
)内的数值是
600mm × 550mm
框的数值

SP18P-L 2006.0601
- 14 -
6.2
印刷基板规格概要
■ 基板切口标准
・ 基板止动器接触位置有切口时,偏移止动器停止位置进行对应。
・ 传感器检测部的容许间隙宽度为
3 mm
。
[
下图表示左
→
右流向、前面基准
(
标准
)
时的设定。其他条件
(
选购件
)
时也以此为准。
]
Min. 50 mm × 50 mm
能够使用的基板尺
寸
能够使用的基板尺
寸
Max. 510 mm × 460 mm
基板厚度
0.3 mm
~
4.0 mm
基板弯曲容许值
基板搬送空间
※
不允许有突起
物的范围
※
与
SP10P/11P-MA, SP20/22/28
的支撑关系有安装互换性。
・ 随客户的规格
[
标准外规格
]
不同,有时也存在无互换性,请与本公司联络。
・ 与
SP10P-M/L/LA
也有无安装互换性的情况,请与本公司联络。
基板重量
3
㎏以下(包括托盘板重量)
Max. 1.0 mm
Max. 1.0 mm
印刷方向
50 mm
~
510 mm
50 mm
~
460 mm
变更位置例
标准基板止动器位置
(
基板宽度的
1/2
)
切口区域在止动器位置时,
需要输入偏移值
基板流向
固定侧
3 mm
基板
搬送时的空区
3 mm
4 mm
从传送带
Max. 6.5 mm
25 mm
4 mm
10 mm
21 mm
15 mm
21 mm

SP18P-L 2006.0601
- 15 -
6.3
识别标记
基板的识别标记,在基板的对角位置需要
2
点。
■ 基板识别标记规格
标记形状
尺寸
○
φ0.5 mm
~
φ1.6 mm
△(正三角形) 一边的长度
0.5 mm
~
1.6 mm
□ 纵横
0.5 mm
~
1.6 mm
纵横
0.5 mm
~
1.6 mm
标准标记形状和尺寸
所谓尺寸的纵横,指标记所外接的四角形的尺寸
标记的材质和
电路图形
基板的识别补正,根据与标记和电路图形
(
导电体图形
)
的位置关系而定。因此,
对补正精度来讲,标记必须与电路图形的工程、材质相同。
标记材质和
基板质地的画像条件
基本上,标记识别依靠照明的反射光的强度来进行,因此标记的材质和基板质地
需要具有一定的对比度。
此反差,会因电镀状态
•
氧化状态
•
表面高度
•
偏差
•
镜面性
•
保护物质
•
干扰光而有
相当的变化,因此需要事先进行对象标记的评价。
标记尺寸和背景
标记的背景,需要与标记所相异的一定尺寸以上的不干涉区域。
不干涉区域
标记
a
≧
0.2 mm
以上
标记不一定必须为黑色。
a
a
aa