KE-2050_KE-2050R_KE-2055R_KE-2060_KE-2060R-Rev14.PDFA__OCR.pdf - 第117页
- 11 2 - NO TE( 注 記 ) # 01....F OR EN EN 用 REF .NO N O T E PA RT NO D E S C R I P T I O N 品 名 Q ty 1 400-00560 F L OOR TROLL EY SUB U N I T フロアトロリーサブユニット 1 2 400-00562 T R OLLEY BO TT OM ASSY トロリーボトム組 (1) 3 400-01723 T R…

- 111 -
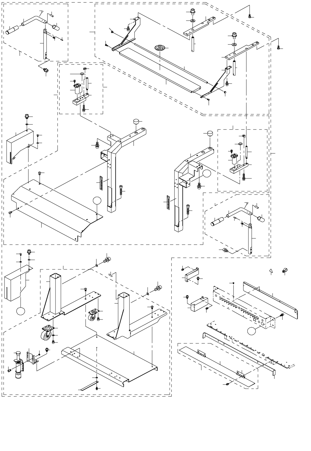
56.FLOOR TROLLEY UNIT COMPONENTS
(FOR REPLACING OVERALL CHANGER TABLE WITHOUT EARTH WIRE)
フロアートロリーユニット関係(アース線なし 一括交換台用)
3
4
5
6
6
8
9
7
10
11
12
13
14
16
15
19
21
22
22
21
23
23
20
24
24
25
25
25
25
26
27
27
28
28
29
32
32
31
37
30
34
34
30
33
35
33
35
36
36
38
81
38
81
17
41
42
43
45
44
42
43
44
46
47
47
49
49
48
50
51
51
52
39
58
60
65
66
67
69
70
68
71
72
74
74
73
75
75
76
77
80
78
79
80
79
78
54
55
56
59
61
63
63
53
62
57
18
31
A
A
64
40
86
85
84
83
82
97
2
B
B
85
1
88
87
89
89
90
90
91
96
94
93
92
95
-
9
i
-
KT

- 112 -
NOTE( 注記 ) #01....FOR EN EN 用
REF.NO NOTE PART NO D E S C R I P T I O N
品 名
Qty
1 400-00560 FLOOR TROLLEY SUB UNIT
フロアトロリーサブユニット
1
2 400-00562 TROLLEY BOTTOM ASSY トロリーボトム組 (1)
3 400-01723 TROLLEY FRAME BL
トロリーフレーム BL
(1)
4 400-01724 TROLLEY FRAME BR
トロリーフレーム BR
(1)
5 400-01725 TROLLEY BASE PLATE
トロリーベースプレート
(1)
6 SM-3061252-TN SCREW M6 L=12
丸ねじ M 6 L =12
(6)
7 400-01747 TROLLEY CASTER (75MM) トロリーキャスター(75 MM) (2)
8 WP-0612516-SD WASHER 6.1X15.2X2.5
平座金 6.1 X 15.2 X 2.5
(8)
9 SM-6060802-TN BOLT
六角穴ボルト
(8)
10 400-01746 TROLLEY CASTER (50MM)
トロリーキャスター(50 MM)
(2)
11 SM-6060802-TN BOLT
六角穴ボルト
(8)
12 E2711-721-000 TROLLEY STOPPER トロリーストッパー (2)
13 E2710-721-000 STOPPER ATTACHMENT
ストッパーアタッチメント
(2)
14 SM-6060802-TN BOLT
六角穴ボルト
(8)
15 SL-6061242-TN BOLT
座金付き六角穴ボルト
(8)
16 NM-6060003-SC NUT M6
六角ナット M 6
(8)
17 400-00563 TROLLEY UPPER ASSY トロリーアッパー組 (1)
18 400-01726 TROLLEY FRAME L
トロリーフレーム L
(1)
19 400-01629 RATED FP2060(EN)
定格テイカク FP 2060(EN)
(1)
20 400-01727 TROLLEY FRAME R
トロリーフレーム R
(1)
21 SM-6125052-TR SCREW
六角穴ボルト M 12 L =50
(2)
22 NM-6120003-SC NUT M12 六角ナット M 12 3種 (4)
23 400-01730 SCALE MARKS SEAL
メモリシール
(2)
24 400-01729 TROLLEY FRONT STAY
トロリーフロントステイ
(2)
25 SL-6061692-TN BOLT
座金付き六角穴ボルト
(8)
26 400-01728 TROLLEY UPPER PLATE
トロリーアッパープレート
(1)
27 SM-3061252-TN SCREW M6 L=12 丸ねじ M 6 L =12 (6)
28 400-01731 TROLLEY RUBBER B
トロリーラバー B
(4)
29 400-01735 TROLLEY STOPPER PLATE
トロリーストッパープレート
(1)
30 SL-6082092-TN BOLT
座金付き六角穴ボルト
(4)
31 400-01748 TROLLEY SUB GUIDE
トロリーサブガイド
(2)
32 SL-6063092-TN SCREW M6 L=30 座金付き六角穴ボルト M6L=30 (2)
33 E2703-721-000 TROLLEY SHAFT
トロリーシャフト
(2)
34 S1021-710-000 ST RUBBER FOOT
ST ゴム足
(2)
35 SB-8160005-00 BEARING
ころがり軸受
(2)
36 SL-6041042-TN BOLT
座金付き六角穴ボルト
(8)
37 400-53180 TROLLEY STOPPER PLATE L
トロリーストッパプレート L
(1)
38 SL-6102042-TN SCREW 座金付き六角穴ボルト (4)
39 400-00564 TROLLEY SLIDE ASSY
トロリースライド組
(1)
40 400-01732 BANK PLATE L
バンクプレート L
(1)
41 400-01733 BANK PLATE R
バンクプレート R
(1)
42 E2761-721-000 BUSH SUPPORT
ブッシュサポート
(2)
43 SL-6062542-TN SCREW 座金付き六角穴ボルト (4)
44 E2206-725-000 BU SHAFT L
BU シャフト L
(2)
45 400-01736 FS BRACKET L
FS ブラケット L
(1)
46 400-01737 FS BRACKET R
FS ブラケット R
(1)
47 SL-6061692-TN BOLT
座金付き六角穴ボルト
(4)
48 400-01739 FS PLATE FS プレート (1)
49 SM-0040601-SC SCREW M4X0.7 L=6
トラス小ねじ M 4 X 0.7 L =6
(4)
50 400-01738 FS TAPE GUIDE
FS テープガイド
(1)
51 400-68308 SET SCREW M4 L=8
化粧ねじ M4x8
(2)
52 E5721-729-000 LABEL
荷重禁止シール
(1)
53 400-00599 TROLLEY HANDLE L ASSY トロリーハンドル L 組 (1)
54 400-01744 TROLLEY HANDLE
トロリーハンドル
(1)
55 E2641-729-000 HANDLE CLIP
ハンドルグリップ
(1)
56 E2635-729-000 HANDLE SLIDER
ハンドルスライダ
(1)
57 400-01743 HANDLE SHAFT
ハンドルシャフト
(1)
58 SL-6082092-TN BOLT 座金付き六角穴ボルト (2)
59 400-01745 HANDLE PIN
ハンドルピン
(1)
60 400-01742 HANDLE PLATE
ハンドルプレート
(1)
61 SM-8030602-TP SCREW M3X0.5 L=6
止めねじ M 3 X 0.5 L =6
(1)
62 SM-6030602-TN HEX SCREW M3 X 6
六角穴ボルト M 3 X 0.5 L =6
(1)
63 SL-6040642-TN BOLT 座金付き六角穴ボルト (2)
64 400-00600 TROLLEY HANDLE R ASSY
トロリーハンドル R 組
(1)
65 400-01744 TROLLEY HANDLE
トロリーハンドル
(1)
66 E2641-729-000 HANDLE CLIP
ハンドルグリップ
(1)
67 E2635-729-000 HANDLE SLIDER
ハンドルスライダ
(1)
68 400-01743 HANDLE SHAFT ハンドルシャフト (1)
69 SL-6082092-TN BOLT
座金付き六角穴ボルト
(2)
70 400-01745 HANDLE PIN
ハンドルピン
(1)
71 400-01742 HANDLE PLATE
ハンドルプレート
(1)
72 SM-8030602-TP SCREW M3X0.5 L=6
止めねじ M 3 X 0.5 L =6
(1)
73 SM-6030602-TN HEX SCREW M3 X 6 六角穴ボルト M 3 X 0.5 L =6 (1)
74 SL-6040642-TN BOLT 座金付き六角穴ボルト (2)
75 SL-6051092-TN BOLT
座金付き六角穴ボルト
(12)
76 400-01740 TROLLEY COVER AL
トロリーカバー AL
(1)
77 400-01741 TROLLEY COVER AR
トロリーカバー AR
(1)
78 SM-0040601-SC SCREW M4X0.7 L=6
トラス小ねじ M 4 X 0.7 L =6
(4)
79 WP-0841601-SC WASHER 8.4X17.4X1.6 平座金みがき丸 M 8 (2)
80 SL-6081242-TN BOLT
座金付き六角穴ボルト
(2)
81 WP-1052001-SC WASHER 10
平座金みがき丸 M 10
(4)
82 SM-4030601-SC SCREW M3 X 6
なべ小ねじ M 3 X 0.5 L =6
2
83 CM-3002000-03 ATTENTION LABEL
指けが注意シール(31.5)
2
84 HX-0015000-0K CABLE CLIP ケ−ブル クリップ 1
85 400-01734 SCREW
段ねじ
4
86 SL-6051492-TN BOLT
座金付き六角穴ボルト
4
87
#01
E1173-725-000 PLATE STAND COVER L
プレートスタンドカバー L
1
88
#01
E1174-725-000 PLATE STAND COVER R
プレートスタンドカバー R
1
89 SL-6040892-TN BOLT 座金付き六角穴ボルト 2
90 SL-6051092-TN BOLT
座金付き六角穴ボルト
2
91 E4981-700-000 LABEL
EPR 0 M 用 ブランク ラベル
1
92
#01
400-01749 BANK FLAP ASSY
バンクフラップ組
1
93 400-18388 BUTT HINGE
平型蝶番
(2)
94 400-18389 BANK FLAP バンクフラップ (1)
95
#01
400-01750 BANK COVER
バンクカバー
1
96
#01
SL-6040892-TN BOLT
座金付き六角穴ボルト
4
97 E2737-721-000 BRACKET COVER
ブラケットカバー
1

- 113 -
57.FLOOR TROLLEY UNIT COMPONENTS
(FOR REPLACING OVERALL CHANGER TABLE WITH EARTH WIRE)
フロアートロリーユニット関係(アース線付き 一括交換台用)
3
4
5
6
6
8
9
7
10
11
12
13
15
16
14
23
23
24
24
22
25
26
26
27
27
37
31
39
38
29
44
41
33
44
40
42
32
34
35
43
46
45
46
45
49
51
52
53
53
55
55
54
56
57
57
58
71
72
76
73
75
76
75
62
63
64
65
21
30
A
A
48
82
80
79
78
92
2
B
B
84
83
85
85
86
86
91
89
88
87
90
17
19
18
28
36
50
50
59
60
59
60
66
67
68
69
70
64
63
62
66
68
69
67
65
74
73
74
77
81
81
61
20
61
1
70
47
\
■
Ui
r
?
<
/
Ni
u
Q
-
v
\
!
\
v
-
nTK
«
|
n
«
U
)
V
^
4
6
~
Q
-
-
dJ