SM310 Troubleshooting Guide(Chi, Ver4).pdf - 第13页
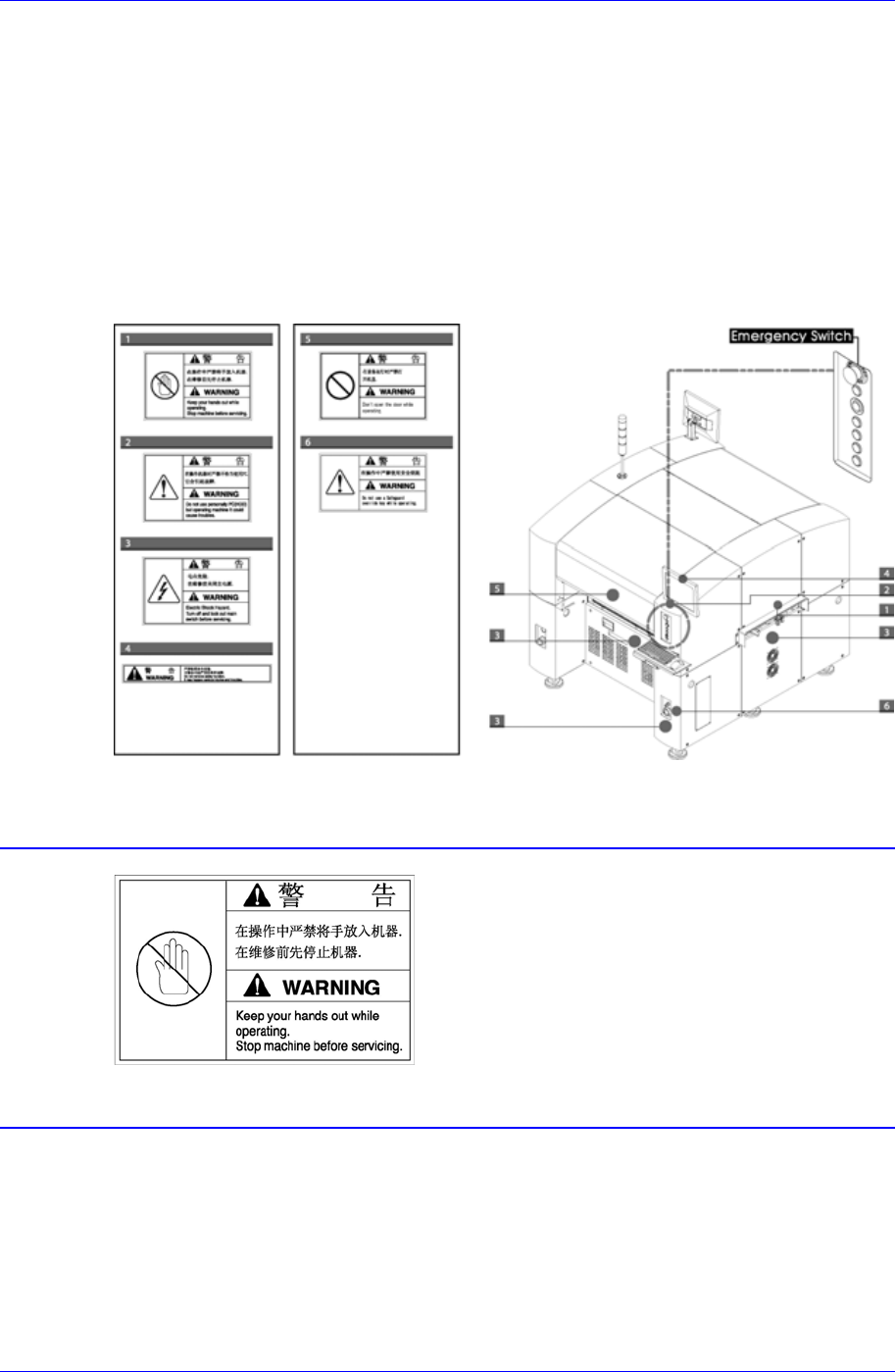
前言 iii 安全注意事項 (Safety Precaution) 如下图所示,设备在各指定的位置上贴有标签。 应按照各标签上的指令安全操作设 备。如果某个标签掉下来或有毁损,应对照下面 的数字将新表签贴在适当的位置。 关于订购新标签或其它任何问题,改善或建议, 请联系本公司营业部门或本公司指 定的C/S 中心( STS )。 设备前面 设备前面贴有以下标签 图 0-1. 设备前面的安全标 签 运行中禁止手触摸 . 贴有此标签的位置…

Samsung Component Placer SM310 Troubleshooting Guide
ii
有关安全问题
为了正确,安全地使用本设备,必须遵守本说明书中记载的有关安全的规则及指示
事项。
本设备的操作上,共同遵守的基本事项如下。
装备操作人员必须适当地接受安全操作教育。
检测设备或更换部件、维修时必须切断电源。
本书中没有记载的有关保修或维修的工作应由本公司的顾客服务中心的人
员来执行。不应该用顾客独自的判断来进行这些工作。否则可能会引起意
想不到的事故。
本设备的运转当中,不许把身体的一部分(手,头部等)放入设备可动部
位的动作范围内。否则会容易受伤。
为了尽可能减轻意外事故的受害程度,在示教或调整机器时,手要一直放
在操作面板或示教盒的 EMG 按钮(紧急停止按钮)上,以便于能随时停止机
器。
不要在可燃性气体或严重污染的环境条件下使用机器。
在本说明书中记载的关于安全的注意事项如下。
危 险
如果出现此信号后不按指令操作,将发生操作人员严
重伤亡事故。必须确保按指令操作。
警 告
如果出现此信号后不按指令操作,将发生操作人员严
重受伤事故。必须确保按指令操作。
注 意
如果出现此信号后不按指令操作,设备硬件,软件及
数据将受到破坏,或发生操作人员受伤事故。必须确
保按指令操作。

前言
iii
安全注意事項(Safety Precaution)
如下图所示,设备在各指定的位置上贴有标签。应按照各标签上的指令安全操作设
备。如果某个标签掉下来或有毁损,应对照下面的数字将新表签贴在适当的位置。
关于订购新标签或其它任何问题,改善或建议,请联系本公司营业部门或本公司指
定的C/S 中心(STS)。
设备前面
设备前面贴有以下标签
图
0-1.
设备前面的安全标签
运行中禁止手触摸.
贴有此标签的位置设置有移动部件,在运行
时如果分解移动部件或将盖子打开使身体某
部分伸入到设备内部是非常危险的。
服务前中止设备运行
在维护和修理设备或在纠正出错操作前要先
中止设备运行。

Samsung Component Placer SM310 Troubleshooting Guide
iv
除了用在设备运转以外,禁止电脑或硬盘用
于其它用途。否则,可能导致设备运转上的
严重后果。
盖子内侧及周围连单元部在高电压要注意电
击危险在维护和修理设备操作时一定要先切
断主电源。
请不要移掉安全装置,否则可能导致
严重的伤亡事故。
运行中禁止手触摸
贴有此标签的位置设置有移动体,在运行时
如果分解移动体或将盖子打开,身体某部分
伸入到设备内部是非常危险的。
驾驶时请不要使用 Safeguard override
key。只有指定的负责人可以使用 Safeguar
d override key。请慎重使用设备。