CM232-M.pdf - 第191页
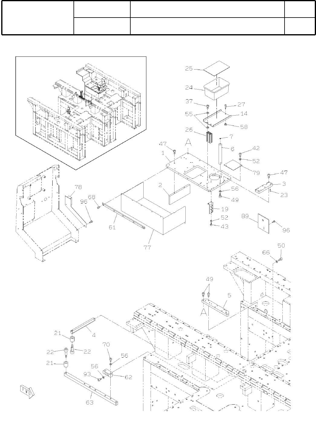
Ref No. Remark s R 1 Q'ty 15-A リア 側 ダイレクトト レイフィーダ対応 Tray Feeder:Rear Side イラスト No. Part No. 品 名 品番 数量 R 2 パーツリスト Kit N o . キット品 番 Kit Name キット名称 N610100323AA Part Name 備 考 セクションNo. PARTS LIST Section No. R 3 PLATE 1…

15-A
リア
側
ダイレクトトレイフィーダ対応
Tray Feeder:Rear Side
パーツレイアウト
Ki
t
N
o
.
キット
品番
Kit Name
キット名称
N610100323AA
セクションNo.
PARTS LAYOUT
Section No.
--
S55
( KN610100323AA-03-1 )

Ref
No.
Remarks
R
1
Q'ty
15-A
リア
側
ダイレクトトレイフィーダ対応
Tray Feeder:Rear Side
イラスト
No.
Part No.
品 名品番 数量
R
2
パーツリスト
Kit N
o
.
キット品
番
Kit Name
キット名称
N610100323AA
Part Name
備 考
セクションNo.
PARTS LIST
Section No.
R
3
PLATE
1
1 N210122757AA
PLATE
1
2 N210024106AB
PLATE
1
3 N210024133AB
BAR
1
4 N210023980AC
PLATE
1
5 N210045326AA
SHAFT
1
6 KXFB02GCB01
TARGET
1
7 KXFB03KAA01
BRACKET
1
14 N210021375AA
BRACKET
1
19 KXFB03RQA00
URETHANE
2
21 KXF0CUMAA00 A30-30
BOLT
2
22 KXF0CUNAA00 MSB13-35
PIN
4
23 KXF02Y8AA00 MS4-20
TRAY
1
24 KXF0CGAAA00 195391A-62
SHEET
1
25 KXF0DKNAA00 Hanenite sponge sheet(DA 0DKNA)
FRAME
1
26 N510001361AA SFF-244 L=77
BOLT
1
27 KXF02ZGAA00 MSB6.5-15
BOLT
2
37 N510017461AA
Hexagon socket head cap screw M6X95-10.9 A2J (Trivalent)
BOLT
2
42 N510017381AA
Hexagon socket head cap screw M4X8-10.9 A2J (Trivalent)
BOLT
2
43 N510017344AA
Hexagon socket head cap screw M4X10-10.9 A2J (Trivalent)
BOLT
8
47 N510017437AA
Hexagon socket head cap screw M6X25-10.9 A2J (Trivalent)
BOLT
7
49 N510017473AA
Hexagon socket head cap screw M8X25-10.9 A2J (Trivalent)
BOLT
1
50 N510017167AA
Hexagon socket head cap screw M10X30-10.9 A2J (Trivalent)
WASHER
4
52 N510018497AA
Round finish plain washer 4 10H A2J (Trivalent)
WASHER
4
55 N510020101AA Thick washer for M6
WASHER
5
56 N510020102AA Thick washer for M8
NUT
1
58 N510017862AA
Hexagon nut Type-1 Best class M5-6H-4T A2J (Trivalent)
PLATE
1
61 N210045336AA
BLOCK
1
62 N210039598AB
BAR
1
63 N210039965AA
WASHER
1
66 N510015620AA ZTQ10-5
SCREW
8
68 N510018258AA
Cross recessed Truss head machine screw M4X10-4.8 A2S (Trivalent)
BOLT
2
70 N510017476AA
Hexagon socket head cap screw M8X35-10.9 A2J (Trivalent)
COVER
1
77 N210122758AA
COVER
1
78 N210045349AA
COVER
1
79 N210046755AA
PLATE
1
89 N210050749AA
BOLT
2
93 N510017475AA
Hexagon socket head cap screw M8X30-10.9 A2J (Trivalent)
SCREW
4
96 N510018257AA
Cross recessed Truss head machine screw M4X10-4.8 A2J (Trivalent)
S56
--
( KN610100323AA-03-1 )

15-B
リア
側
ダイレクトトレイフィーダ対応
Tray Feeder:Rear Side
パーツレイアウト
Ki
t
N
o
.
キット
品番
Kit Name
キット名称
N610100323AA
セクションNo.
PARTS LAYOUT
Section No.
--
S57
( KN610100323AA-03-2 )