CM232-M.pdf - 第52页
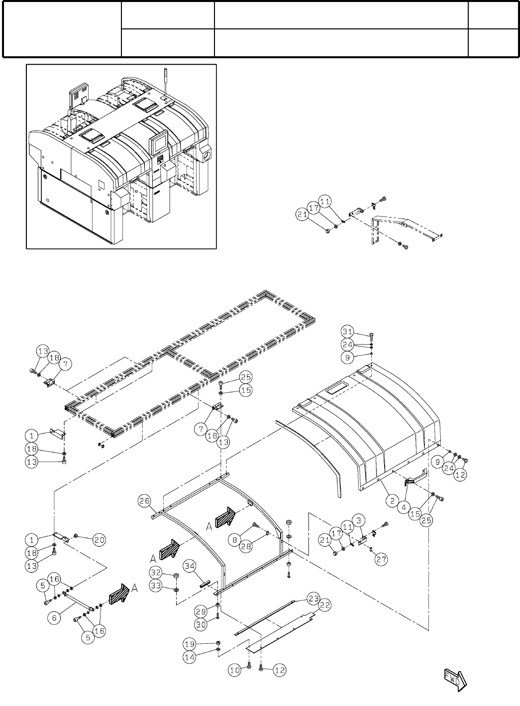
4-F 全 体 カバー W hole Cover パーツレイアウト Kit No. キット品 番 Kit N a me キット名称 N610090855AA セクションN o. PARTS LAYOUT Section No. - - M39 ( KN610090855AA-13-6 )

Ref
No.
Remarks
R
1
Q'ty
4-E
全
体
カバー
Whole Cover
イラスト
No.
Part No.
品 名品番 数量
R
2
パーツリスト
Kit N
o
.
キット品
番
Kit Name
キット名称
N610090855AA
Part Name
備 考
セクションNo.
PARTS LIST
Section No.
R
3
BRACKET
4
1 N210027705AA
COVER
1
2 N210165850AA
S
BRACKET
1
3 N210063799AA
PULL
1
4 KXF0DX62A00 AP-829-2
BOLT
4
5 N510020762AA MMSB10-10
GAS-SPRING
2
6 N510013496AA
S
KSF90-15M
HINGE
4
7 N510011843AA B-2-B-11
BOLT
2
8 N510001804AA SRBS-M4X25
SPACER
8
9 N510019916AA CB-503E
SCREW
2
10 N510018258AA
Cross recessed Truss head machine screw M4X10-4.8 A2S (Trivalent)
NUT
2
11 KXF0DX63A00 SQN4-28-16
SCREW
8
12 N510018303AA
Cross recessed Truss head machine screw M5X8-4.8 A2S(Trivalent)
BOLT
16
13 N510017390AA
Hexagon socket head cap screw M5X12-10.9 A2J (Trivalent)
WASHER
2
14 N510018497AA
Round finish plain washer 4 10H A2J (Trivalent)
WASHER
6
15 N510018499AA
Round finish plain washer 5 10H A2J (Trivalent)
WASHER
8
16 N510018506AA
Round finish plain washer (JIS B 1256:1978) 10 10H A2J (Trivalent)
WASHER
4
17 N510020099AA Thick washer for M4
WASHER
18
18 N510020100AA Thick washer for M5
NUT
2
19 N510017855AA
Hexagon nut Type-1 Best class M4-6H-4T A2J (Trivalent)
NUT
2
20 N510017877AA
Hexagon nut Type-1 Best class M8-6H-4T A2J (Trivalent)
NUT
4
21 N510022614AA Domed cap nut Type-3 M4-4T A2J (Trivalent)
COVER
1
22 N210064063AA
COVER
1
23 N210043289AA
WASHER
16
24 N510011899AA NN-0816-10
BOLT
6
25 N510017395AA
Hexagon socket head cap screw M5X16-10.9 A2J (Trivalent)
FRAME
1
26 N610049031AF
NUT-PLATE
1
27 N210066061AA
PLATE
1
28 N210066062AA
RUBBER-LEG
2
29 N980C30R-123 C-30-RK-10-UL
SCREW
2
30 N510053335AA
Cross recessed Pan head machine screw M2.5X8-4.8 A2J (Trivalent)
SCREW
4
31 N510018291AA
Cross recessed Truss head machine screw M5X16-4.8 A2S (Trivalent)
NUT
2
32 N510017840AA
Hexagon nut Type-1 Best class M2.5-6H-4T A2J (Trivalent)
WASHER
2
33 N510018490AA
Round finish plain washer (JIS B 1256:1978) 2.5 10H A2J (Trivalent)
PACKING
1
34 N510016439AA 209-1301
M38
--
( KN610090855AA-13-5 )

4-F
全
体
カバー
Whole Cover
パーツレイアウト
Kit No.
キット品
番
Kit Name
キット名称
N610090855AA
セクションNo.
PARTS LAYOUT
Section No.
--
M39
( KN610090855AA-13-6 )

Ref
No.
Remarks
R
1
Q'ty
4-F
全
体
カバー
Whole Cover
イラスト
No.
Part No.
品 名品番 数量
R
2
パーツリスト
Kit N
o
.
キット品
番
Kit Name
キット名称
N610090855AA
Part Name
備 考
セクションNo.
PARTS LIST
Section No.
R
3
BRACKET
4
1 N210027705AA
COVER
1
2 N210165850AA
S
BRACKET
1
3 N210063799AA
PULL
1
4 KXF0DX62A00 AP-829-2
BOLT
4
5 N510020762AA MMSB10-10
GAS-SPRING
2
6 N510013496AA
S
KSF90-15M
HINGE
4
7 N510011843AA B-2-B-11
BOLT
2
8 N510001804AA SRBS-M4X25
SPACER
8
9 N510019916AA CB-503E
SCREW
2
10 N510018258AA
Cross recessed Truss head machine screw M4X10-4.8 A2S (Trivalent)
NUT
2
11 KXF0DX63A00 SQN4-28-16
SCREW
8
12 N510018303AA
Cross recessed Truss head machine screw M5X8-4.8 A2S(Trivalent)
BOLT
16
13 N510017390AA
Hexagon socket head cap screw M5X12-10.9 A2J (Trivalent)
WASHER
2
14 N510018497AA
Round finish plain washer 4 10H A2J (Trivalent)
WASHER
6
15 N510018499AA
Round finish plain washer 5 10H A2J (Trivalent)
WASHER
8
16 N510018506AA
Round finish plain washer (JIS B 1256:1978) 10 10H A2J (Trivalent)
WASHER
4
17 N510020099AA Thick washer for M4
WASHER
18
18 N510020100AA Thick washer for M5
NUT
2
19 N510017855AA
Hexagon nut Type-1 Best class M4-6H-4T A2J (Trivalent)
NUT
2
20 N510017877AA
Hexagon nut Type-1 Best class M8-6H-4T A2J (Trivalent)
NUT
4
21 N510022614AA Domed cap nut Type-3 M4-4T A2J (Trivalent)
COVER
1
22 N210064063AA
COVER
1
23 N210043289AA
WASHER
16
24 N510011899AA NN-0816-10
BOLT
6
25 N510017395AA
Hexagon socket head cap screw M5X16-10.9 A2J (Trivalent)
FRAME
1
26 N610049031AF
NUT-PLATE
1
27 N210066061AA
PLATE
1
28 N210066062AA
RUBBER-LEG
2
29 N980C30R-123 C-30-RK-10-UL
SCREW
2
30 N510053335AA
Cross recessed Pan head machine screw M2.5X8-4.8 A2J (Trivalent)
SCREW
4
31 N510018291AA
Cross recessed Truss head machine screw M5X16-4.8 A2S (Trivalent)
NUT
2
32 N510017840AA
Hexagon nut Type-1 Best class M2.5-6H-4T A2J (Trivalent)
WASHER
2
33 N510018490AA
Round finish plain washer (JIS B 1256:1978) 2.5 10H A2J (Trivalent)
PACKING
1
34 N510016439AA 209-1301
M40
--
( KN610090855AA-13-6 )