CM232-M.pdf - 第218页
22 コンベア開口 部 PHユニ ット Co nve yer op en in g PH u nit パーツレイアウト Ki t N o . キット 品番 Kit N a me キット名称 N6 10 099 63 1AA セクションNo. PARTS LAYOUT Section No. - - S83 ( KN610099631AA-00 )

Ref
No.
Remarks
R
1
Q'ty
21-B
部品排出
コンベアM
Chip Discharge Conveyor M
イラスト
No.
Part No.
品 名品番 数量
R
2
パーツリスト
Kit N
o
.
キット品
番
Kit Name
キット名称
N610016666AA
Part Name
備 考
セクションNo.
PARTS LIST
Section No.
R
3
PULLEY
1
5 KXFB02TFA00
SHAFT
1
7 KXFB02THA00
PLATE
1
8 N210027614AA
BOX
1
11 N210044910AB
STOPPER
1
12 N210027615AA
STOPPER
1
16 KXFB02TVA00
GEAR
1
24 N610016700AA
GEAR
1
25 N610016702AA
GEAR
1
26 N610016703AA
MOTOR
1
27 N510010003AA
S
DU11H713S-01
BELT
1
28 N510011775AA NS41UDS0/2BK 50WX1257L(Electrical endless)
BEARING
4
30 KXF03FYAA00 SFB34-8
GROMMET
1
33 KXF007TAA00 C-30-SG-32A
RUBBER-CUSHION
2
34 KXF01E1AA00 C-30-CS-3
C-RING
1
35 KXF04CRAA00 STW-10
CLIP
3
39 KXF0BLPAA00 TA1S8-M
GEAR
1
41 KXF0DHEAA00 S1S25A=0810(DA 0DHEA)
GROMMET
1
42 KXF0DH9AA00 C-30-NG-79-G(DA 0DH9A)
BOLT
2
43 N510017341AA
Hexagon socket head cap screw M3X8-10.9 A2J (Trivalent)
BOLT
4
44 N510017305AA
Hexagon socket head cap screw M3X10-10.9 A2J (Trivalent)
BOLT
4
47 N510017376AA
Hexagon socket head cap screw M4X6-10.9 A2J(Trivalent)
BOLT
2
48 N510017381AA
Hexagon socket head cap screw M4X8-10.9 A2J (Trivalent)
BOLT
8
49 N510017351AA
Hexagon socket head cap screw M4X16-10.9 A2J (Trivalent)
BOLT
2
53 N510017395AA
Hexagon socket head cap screw M5X16-10.9 A2J (Trivalent)
WASHER
2
58 N510020098AA Thick washer for M3
WASHER
2
60 N510018327AA Spring lock washer No.2 3 S A2J (Trivalent)
WASHER
20
61 N510018330AA Spring lock washer No.2 4 S A2J (Trivalent)
SCREW
5
68 N510018277AA
Cross recessed Truss head machine screw M4X5-4.8 A2J (Trivalent)
SCREW
2
70 XXE5D8FT
Hexagon socket set screw M5X8 Cup point Steel Black oxide finish
BOLT
8
71 N510017372AA
Hexagon socket head cap screw M4X5-10.9 A2J (Trivalent)
S82
--
( KN610016666AA-07-2 )

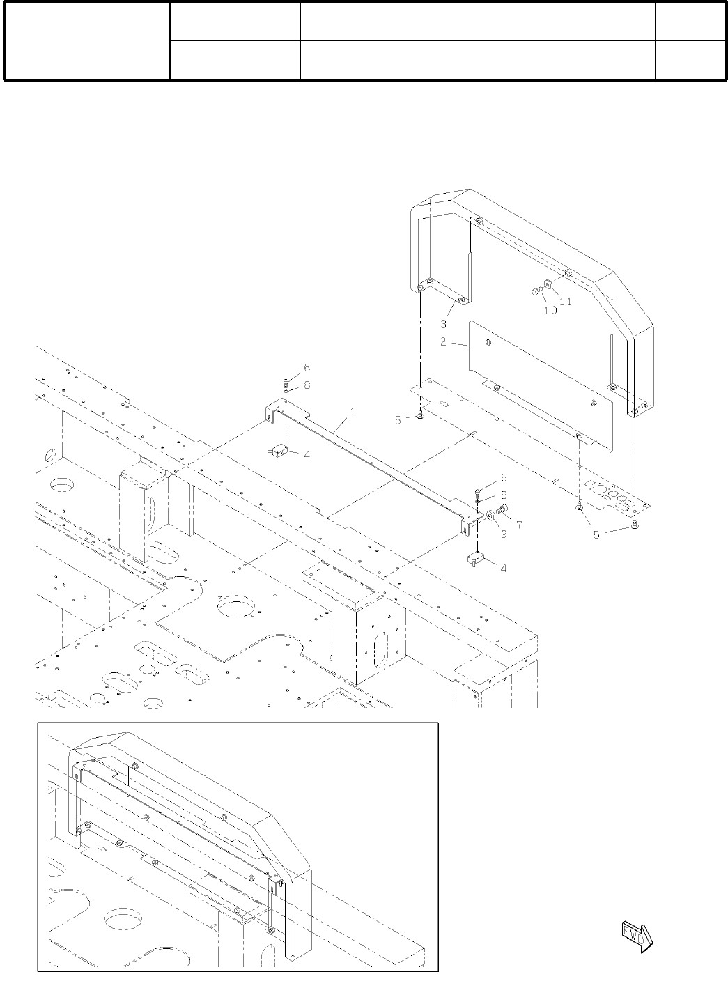
22
コンベア開口
部
PHユニット
Conveyer opening PH unit
パーツレイアウト
Ki
t
N
o
.
キット
品番
Kit Name
キット名称
N610099631AA
セクションNo.
PARTS LAYOUT
Section No.
--
S83
( KN610099631AA-00 )

Ref
No.
Remarks
R
1
Q't
y
22
コンベア
開
口
部
PHユニット
Conveyer opening PH unit
イラスト
No.
Part No.
品 名品番 数量
R
2
パーツリスト
Kit No.
キット品
番
Kit Name
キット名称
N610099631AA
Part Name
備 考
セクションNo.
PARTS LIST
Section No.
R
3
BRACKET
1
1 N210037447AA
COVER
1
2 N210024503AA
COVER
1
3 N210120979AA
SENSOR(270mm800mm)
1
4 N610013591AA
S
SCREW
8
5 N510018282AA
Cross recessed Truss head machine screw M4X8-4.8 A2J (Trivalent)
BOLT
4
6 N510017341AA
Hexagon socket head cap screw M3X8-10.9 A2J (Trivalent)
BOLT
2
7 N510017386AA
Hexagon socket head cap screw M5X10-10.9 A2J (Trivalent)
WASHER
4
8 N510018478AA
Small round-plain washer 3 10H A2J (Trivalent)
WASHER
2
9 N510020100AA Thick washer for M5
BOLT
2
10 N510017428AA
Hexagon socket head cap screw M6X12-10.9 A2J (Trivalent)
WASHER
2
11 N510020101AA Thick washer for M6
S84