4. SM411F_Introduction(Kor_Ver5).pdf - 第106页
6-28 Samsung Compon ent Placer SM411/411N Introdu ction Embossed T ape 의 경우 , 부품 테이프 의 규격을 참조하여 적절하게 흡착점 의 Z 값 을 설정하십시오 .

6-27
Module Function
의 상면)입니다.
그러므로, 흡착 위치에서 Z축 높이는 부품의 크기와 전송 테이프의 두께에 따라
달라집니다.
1:
테이프가이드
2:
테이프
3:
프레임
1:
테이프
가이드
2:
프레임
테이프 피더의 종류에 따라 흡착점의 Z값이 다양하게 적용됩니다 . 또한, 부품
공급 테이프의 종류에 따라서도 그 값이 다른데, Embossed Tape의 경우 Paper
Tape 의 경우보다 높이를 더 낮게 설정해야 합니다.
G
Z=0
Paper Tape Embossed Tape
Z>0
Z<0

6-28
Samsung Component Placer SM411/411N Introduction
Embossed Tape의 경우, 부품 테이프의 규격을 참조하여 적절하게 흡착점의 Z값
을 설정하십시오.

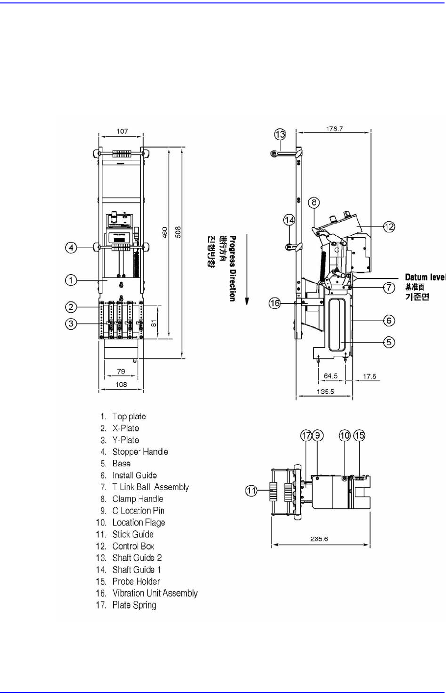
6-29
Module Function
6.11.3. Vibration stick feeder
다단 Vibration Stick Feeder 는 Stick으로 공급되는 SOP, SOJ, PLCC 등의 부품을
Vibrator 의 진동에 의해 경사진 Stick을 따라 직진 이송시키는 장치입니다. Stick을
가로로 정렬시켜 부품을 공급하며, 레인 수는 4개까지 가능합니다.
그림
6.22 Vibration stick feeder