FX-3-Rev13(k-).pdf - 第59页
- 54 - NOTE( 注記 ) *INSTALLATI ON POSITION AND DIRECTION VARY IF THE PWB TR ANS FER REFERENCE IS DIFFERENT . 基板搬送基準が異なると取付位置、方向が変わります。 REF.NO NOTE PART NO D E S C R I P T I O N 品 名 Qty 1 400-46898 RAIL STAND A レールスタンド A 2…

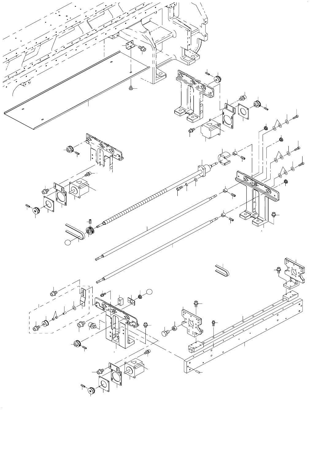
- 53 -
27.PWB CONVEYOR COMPONENTS (3)(TYPE L)
基板搬送関係(3)(L 仕様)
4
5
9
10
19
12
13
15
17
16
11
2
20
18
66
67
68
24
25
26
27
28
7
30
29
34
31
32
33
35
36
37
42
40
39
38
41
43
49
46
47
50
51
1
52
53
54
55
63
57
58
61
64
65
65
64
66
67
68
44
21
22
23
69
70
69
70
18
5
4
A
A
3
3
71
72
73
74
76
76
75
56
75
56
59
45
14
48
62
60
77
77
6
8

- 54 -
NOTE( 注記 ) *INSTALLATION POSITION AND DIRECTION VARY IF THE PWB TRANSFER
REFERENCE IS DIFFERENT.
基板搬送基準が異なると取付位置、方向が変わります。
REF.NO NOTE PART NO D E S C R I P T I O N
品 名
Qty
1 400-46898 RAIL STAND A
レールスタンド A
2
2 400-46899 RAIL STAND B
レールスタンド B
2
3 SL-6083092-TN SCREW
座金付き六角穴ボルト
8
4 400-46900 MOVABLE RAIL STAND
可動レールスタンド
4
5 SL-6041692-TN SCREW
座金付き六角穴ボルト M 4 L =16
16
6 401-22960 GUIDE_BAR
ガイドバー
2
7 SL-6063592-TN SCREW
座金付き六角穴ボルト M 6 L =35
8
8 PH-0600202-S0 PIN 6X20
平行ピン 6 X 20
4
9 400-46902 LINEAR WAY-B
リニアウェイ− B
2
10 SM-6031602-TN SCREW M3 L=16
六角穴ボルト
16
11 400-46905 RAIL STAND SPACER
レールスタンドスペーサ
2
12 SL-6063592-TN SCREW
座金付き六角穴ボルト M 6 L =35
4
13 400-46944 SCREW SHAFT
スクリュウシャフト
2
14 400-46943 SCREW NUT SPACER
スクリューナットスペーサ
2
15 SM-6045052-TN SCREW M4 L=50
六角穴ボルト M 4 L =50
8
16 WP-0430801-SC WASHER 4.3X9X0.8
平座金 4.3X9X0.8
8
17 WS-0410002-KN SPRING WASHER
ばね座金 M 4
8
18 SB-1080002-00 SIDE BEARING
サイドベアリング
4
19 E2012-721-000 ADJUST PLATE
アジャストプレート
2
20 SL-6031492-TN SCREW
座金付き六角穴ボルト
4
21 WP-0320500-SF WASHER 3.2X7X0.5
平座金小形丸 M 3
8
22 WP-0330516-SC WASHER 3.3X8X0.5
平座金 3.3X8X0.5
4
23 SM-6030602-TN HEX SCREW M3 X 6
六角穴ボルト M 3 X 0.5 L =6
4
24 E2141-721-000 STOPPER COLLAR
ストッパカラー
2
25 SM-8040302-TP SETSCREW
止めねじ
4
26 E4561-729-000 TIMING PULLEY A (30)
幅調タイミングプーリ A(30)
2
27 SM-8040602-TP SCREW M4X0.7 L=6
止めねじ
4
28 E4734-729-000 TIMING BELT S (30E)
幅調タイミングベルト S(30 E)
1
29 400-46877 IDLER BRACKET ASM
アイドラブラケット組
2
30 400-46955 IDLER BRACKET
アイドラブラケット
(1)
31 E4563-729-000 WIDTH ADJUST IDLER PULLEY (30)
幅調アイドラプ−リ(30)
(1)
32 E2017-715-000 M LINER BUSH
M ライナブッシュ
(2)
33 E2018-715-000 PULLEY SLEEVE
プーリ スリーブ
(1)
34 SL-6052592-TN BOLT
座金付き六角穴ボルト
(1)
35 WP-0531001-SC WASHER
平座金みがき丸 M 5
(1)
36 SL-6051292-TN BOLT
座金付き六角穴ボルト
4
37 400-46997 IDLER PLATE
アイドラプレート
1
38 E4563-729-000 WIDTH ADJUST IDLER PULLEY (30)
幅調アイドラプーリ(30)
1
39 E2017-715-000 M LINER BUSH
M ライナブッシュ
2
40 E2018-715-000 PULLEY SLEEVE
プーリ スリーブ
1
41 SL-6052592-TN BOLT
座金付き六角穴ボルト
1
42 WP-0531001-SC WASHER
平座金みがき丸 M 5
1
43 SL-6051292-TN BOLT
座金付き六角穴ボルト
2
44 E4561-729-000 TIMING PULLEY A (30)
幅調タイミングプーリ A(30)
2
45 SM-8040602-TP SCREW M4X0.7 L=6
止めねじ
4
46 400-00870 MOTOR PULLEY C
モータプーリ C
5
47 SM-8030602-TP SCREW M3X0.5 L=6
止めねじ M 3 X 0.5 L =6
10
48 E2051-721-000 DRIVE BELT
ドライブベルト
5
49 400-46956 CONVEYOR MOTOR BRACKET
コンベアモータブラケット
1
50 400-00869 MOTOR ADJUST PLATE
モータアジャストプレート
1
51 SL-6051292-TN BOLT
座金付き六角穴ボルト
2
52 400-48074 CENTER MOTOR ASM
センタモータ組
1
53 SL-6041242-TN BOLT
座金付き六角穴ボルト
4
54 400-00870 MOTOR PULLEY C
モータプーリ C
1
55 SM-8030602-TP SCREW M3X0.5 L=6
止めねじ M 3 X 0.5 L =6
3
56 SL-6051292-TN BOLT
座金付き六角穴ボルト
2
57 400-46956 CONVEYOR MOTOR BRACKET
コンベアモータブラケット
1
58 400-00869 MOTOR ADJUST PLATE
モータアジャストプレート
1
59 SL-6051292-TN BOLT
座金付き六角穴ボルト
2
60 400-48075 JOINT MOTOR ASM
ジョイントモータ組
1
61 SL-6041242-TN BOLT
座金付き六角穴ボルト
4
62 400-00870 MOTOR PULLEY C
モータプーリ C
1
63 SM-8030602-TP SCREW M3X0.5 L=6
止めねじ M 3 X 0.5 L =6
3
64 400-46941 DRIVE SHAFT
ドライブシャフト
1
65 SB-1080002-00 SIDE BEARING
サイドベアリング
2
66 WP-0320500-SF WASHER 3.2X7X0.5
平座金小形丸 M 3
4
67 WP-0330516-SC WASHER 3.3X8X0.5
平座金 3.3X8X0.5
4
68 SM-6030602-TN HEX SCREW M3 X 6
六角穴ボルト M 3 X 0.5 L =6
2
69 E2141-721-000 STOPPER COLLAR
ストッパカラー
1
70 SM-8040302-TP SETSCREW
止めねじ
2
71 400-46924 JOINT PULLEY BELT
ジョイントプーリベルト
1
72 SM-9061613-SC SCREW M6 L=16
六角ボルト M 6 L =16
2
73 NM-6060001-SC NUT M6
六角ナット M 6 1種
2
74 400-76695 JOINT GUARD
ジョイントガード
1
75 SM-3040652-TN SCREW M4 L=6
丸ねじ M 4 L =6
4
76 400-76696 JOINT GUARD SUPPORT
ジョイントガードサポート
2
77 CM-3003000-02 LABEL2 (25)
高温注意シール2(25)
2

- 55 -
28.PWB CONVEYOR COMPONENTS (3)(TYPE XL)
基板搬送関係(3)(XL 仕様)
5
6
10
19
12
13
15
17
16
11
2
38
20
18
66
67
39
24
25
26
27
28
7
29
34
31
32
33
35
36
1
37
46
47
62
63
57
60
58
61
64
65
65
64
66
67
39
21
22
23
40
41
40
41
18
5
4
A
A
3
3
42
43
44
30
8
9
50
49
52
46
47
53
70
71
72
73
47
59
46
51
56
47
46
68
69
4
55
54
45
48
14
74
74
74