KE-3010A_KE-3020VA_KE-3020VRA-Rev15PDFA.pdf - 第87页
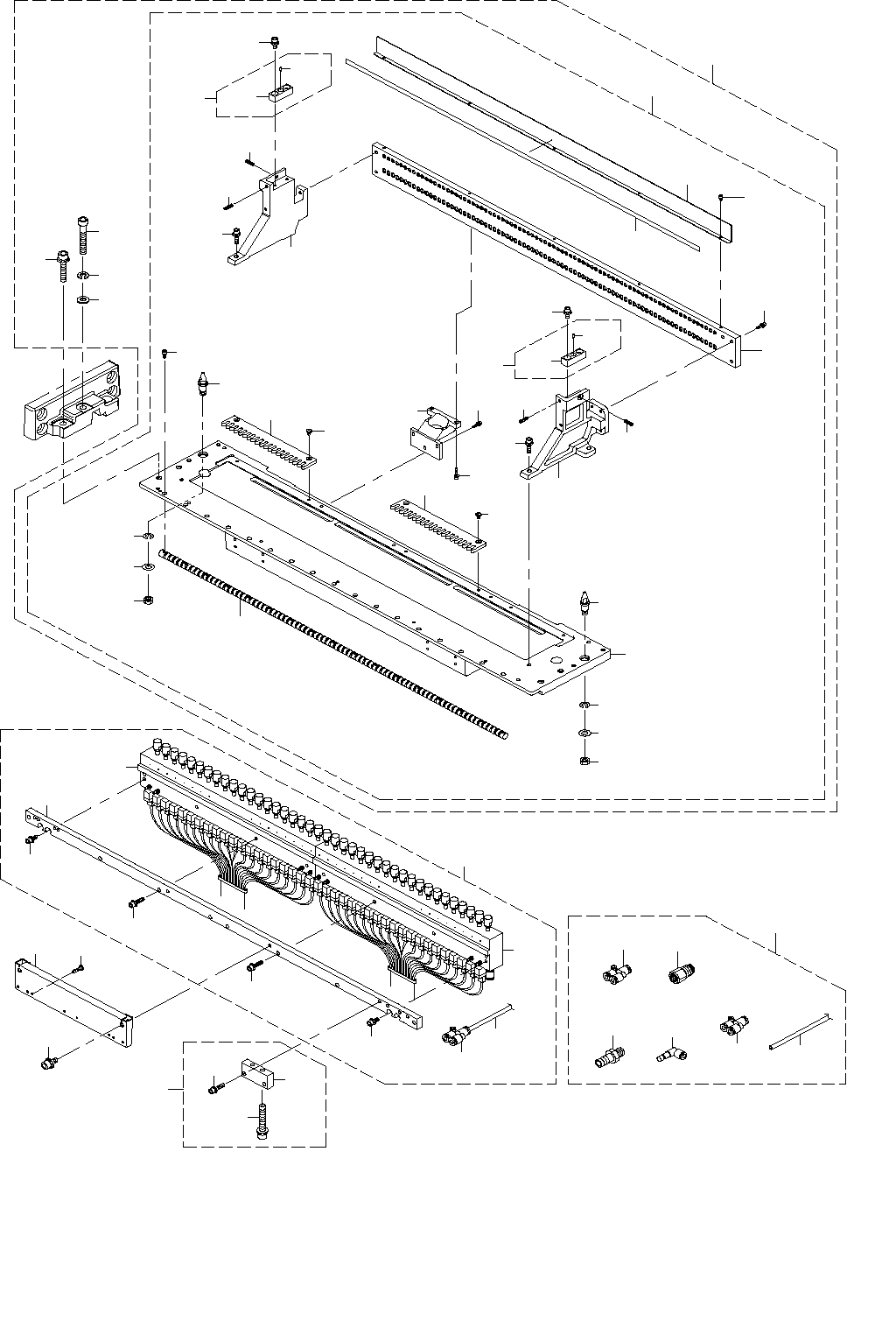
- 80 - REF.NO NOTE PART NO D E S C R I P T I O N 品 名 Qty 1 401-14461 BANK UNIT FMSRMS バンクユニットFMSR MS 1 2 401-47411 BANK_SUPPORT_UNIT バンクサポート組 (1) 3 401-09098 BANK SUP A バンクサポートA (2) 4 SL-6104042-TN SCREW M10 L=40 座金付き六角穴…

- 79 -
40.FEEDER BANK COMPONENTS(2)(FOR 3010A,3020VA,3020VRA)
フィーダバンク関係(2)(3010 A,3020 VA,3020 VRA 用)
53
62
66
67
65
68
64
63
56
57
58
50
49
60
59
61
55
47
54
54
48
48
51
52
7
6
5
4
8
16
17
46
45
10
9
2
12
13
14
5
4
11
3
42
37
33
24
23
21
40
34
34
39
26
25
27
18
41
29
36
20
35
41
29
32
31
38
30
22
40
43
19
44
43
19
44
28
34
34
25
39
27
26
15
1

- 80 -
REF.NO NOTE PART NO D E S C R I P T I O N
品 名
Qty
1 401-14461 BANK UNIT FMSRMS
バンクユニットFMSRMS
1
2 401-47411 BANK_SUPPORT_UNIT
バンクサポート組
(1)
3 401-09098 BANK SUP A
バンクサポートA
(2)
4 SL-6104042-TN SCREW M10 L=40
座金付き六角穴ボルト M10 L=40
(8)
5 WP-1052001-SC WASHER 10
平座金みがき丸 M10
(8)
6 401-47412 BANK_SUP_B_L_ASM
バンクサポートB_L組
(2)
7 401-47415 BANK_SUP_B_R_ASM
バンクサポートB_R組
(1)
8 E2623-721-000 BANK LOCATE BUSH B
バンクロケートブッシュB
(1)
9 401-47415 BANK_SUP_B_R_ASM
バンクサポートB_R組
(2)
10 401-47416 BANK_SUP_B_R
バンクサポートB_R
(1)
11 E2623-721-000 BANK LOCATE BUSH B
バンクロケートブッシュB
(1)
12 SL-6083092-TN SCREW M8 L=30
座金付き六角穴ボルト M8 L=30
(8)
13 HX-0029400-00 FIXED BASE
固定ベース
(4)
14 SM-4040801-SC SCREW M4X0.7 L=8
なべ小ねじ M4X0.7 L=8
(4)
15 401-14142 M FIXED BANK UNIT
M固定バンクユニット
(2)
16 WP-0841601-SC WASHER M8
平座金みがき丸 M8
(2)
17 WS-0820002-KN SPRING WASHER M8
ばね座金 M8
(2)
18 E2501-729-AA0 FEEDER BANK ASM
フィーダバンク組
(1)
19 WS-0820002-KN SPRING WASHER M8
ばね座金 M8
(2)
20 E2501-729-0B0 FEEDER BANK (30) COMPL.
フィーダバンク結合
(1)
21 E2502-729-000 PLATE STAND L
プレートスタンドL
(1)
22 E2503-729-000 PLATE STAND R
プレートスタンドR
(1)
23 E2515-729-000 FIXING PLATE
フィクシングプレート
(1)
24 E2516-729-000 NUMBER PLATE
ナンバプレート
(1)
25 E2505-729-0A0 MARK ASM.
マーク組
(2)
26 E2601-725-000 MARK
マーク
(1)
27 E2505-729-000 MARK BASE
マークベース
(1)
28 E2504-729-000 LOCK SHAFT
ロックシャフト
(1)
29 E2513-729-000 FIXING PLATE B
フィクシングプレートB
(4)
30 E2608-721-000 PLATE SUPPORT
プレートサポート
(4)
31 E2609-721-000 BANK LOCATE PIN A
バンクロケートピンA
(1)
32 E2610-721-000 BANK LOCATE PIN B
バンクロケートピンB
(1)
33 400-98252 POSITION LABEL
ポジションラベル
(1)
34 SM-8041402-TP SCREW M4X0.7 L=14
止めねじ M4X0.7 L=14
(4)
35 SM-6040802-TN SCREW M4X0.7 L=8
六角穴ボルト M4X0.7 L=8
(17)
36 SL-6031292-TN SCREW M3 L=12
座金付き六角穴ボルト M3 L=12
(12)
37 SL-6041292-TN SCREW M4 L=12
座金付き六角穴ボルト M4 L=12
(5)
38 SL-6041692-TN SCREW M4 L=16
座金付き六角穴ボルト M4 L=16
(8)
39 SL-6041292-TN SCREW M4 L=12
座金付き六角穴ボルト M4 L=12
(4)
40 SL-6052092-TN SCREW M5 L=20
座金付き六角穴ボルト M5 L=20
(4)
41 SM-4040655-SN SCREW M4X0.7 L=6
なべ小ねじ M4 L=6
(8)
42 SM-6030552-KS SCREW
平ねじ M3 L=5
(9)
43 NM-6080003-SC NUT M8X1.25 TYPE3
六角ナット M8X1.25 3種
(2)
44 WP-0841601-SC WASHER M8
平座金みがき丸 M8
(2)
45 SM-6085002-TN SCREW
六角穴ボルト
(2)
46 SL-6084092-TN SCREW M8 L=40
座金付き六角穴ボルト M8 L=40
(2)
47 400-93831 DRIVE CYLINDER UNIT
ドライブシリンダユニット
(2)
48 SL-6052592-TN SCREW M5 L=25
座金付き六角穴ボルト M5 L=25
(6)
49 PJ-3080600-03 UNION Y
ユニオンワイ
(1)
50 BT-0600400-EC URETHANE TUBE BLUE 6X4
ポリウレタン チューブ 青 6X4
(0.8)
51 400-93843 DRIVER SUPPORT
ドライバサポート
(1)
52 400-00575 DRIVE CYLINDER L
ドライブシリンダL
(1)
53 400-00576 DRIVE CYLINDER R
ドライブシリンダR
(1)
54 SL-6051292-TN SCREW M5 L=12
座金付き六角穴ボルト M5 L=12
(2)
55 E2634-721-0A0 DRIVER BRACKET SUPPORT A ASM.
ドライバブラケットサポートA組
(2)
56 E2634-721-000 DRIVER BRACKET SUPPORT A
ドライバブラケットサポートA
(2)
57 SL-6052092-TN SCREW M5 L=20
座金付き六角穴ボルト M5 L=20
(4)
58 SL-6053592-TN SCREW M5 L=35
座金付き六角穴ボルト M5 L=35
(4)
59 400-26804 DS CONNECTOR BRACKET
DSコネクタブラケット
(2)
60 SM-4861001-SC SCREW M2.6 L=10
なべ小ねじ M2.6 L=10
(8)
61 SL-6051092-TN SCREW M5 L=10
座金付き六角穴ボルト M5 L=10
(2)
62 400-93832 DC AIR PARTS
ドライブシリンダエアパーツ
(2)
63 PJ-3040600-01 REDUCER ELBOW
レデューサエルボ
(1)
64 PJ-3080600-03 UNION Y
ユニオンワイ
(1)
65 BT-0600400-EC URETHANE TUBE BLUE 6X4
ポリウレタン チューブ 青 6X4
(4)
66 PJ-3080600-03 UNION Y
ユニオンワイ
(2)
67 PJ-3010651-06 FEMALE UNION
メスユニオン
(1)
68 E2904-700-000 SOCKET
ソケット
(1)

- 81 -
41.FEEDER BANK COMPONENTS(3)(FOR 3010ACL)
フィーダバンク関係(3)(3010 ACL 用)
53
8
12
13
11
14
10
9
2
3
4
50
49
6
5
7
1
47
54
54
48
48
51
52
16
17
46
45
42
37
33
24
23
21
40
34
34
39
26
25
27
18
41
29
36
35
41
29
32
31
38
30
22
40
43
19
44
43
19
44
28
34
34
25
39
27
26
15
20