00193891-0702_AI_LP_Barcode_DE+EN.pdf - 第205页
Distributor f. PCB barcode scanner 00372356-xx Barcode scanner top Barcode scanner bottom Conveyor control (ao) 00329219-xx TSP100 03021617-xx Pin 1 X3 ao Pin 1 Please note X3 connector polarity! X23 HS50 wiring for sing…

Lw1
Connector 1
Connector 2
Dimensions / cable type
Cable W1 dimensions
Basic length acc. to parts list
Assembled overall length / tolerance
Inscription label
Cable type:
Option:
Material number:
Lw1
L3w1
L in mm
Stripped length
L1w1
L2w1
L1w1 L3w1
L2w1
Dimension / connector designation / labeling
The arrow always points to the upper left corner of the inscription label.
For details concerning the inscription and design of the labels,
please refer to the inscription guidelines for cable sets which you will find included in the parts list.
Wire connection technology
A: Wire end ferrule
C: Crimp contact
C/So: Crimp contact, socket
C/CO: Crimp contact, connector
F: Flat pin bushing
L: Soldered joint
CR: Cable lugs (ring-type)
CP: Cable lugs (pin)
CF: Cable lugs (fork-type)
SA: Screen assembly
Unitronic LIYCY, 6x0.25mm²
03016827-xx
30
100
3000/+50
3100
30
bk
Screen with connector 2/pin 5
and connector 3/pin 6 connected.
Solder onto screen
Fit screen to SUB-D
Casing with contact sleeve
A6107
Connector 1
w1
Connector 1, connector 2
Orientation of the cable exit
Connector 3
Connector 2
Connector 3
Shrink-fit sleeve
upto and in the connector casing
Coding pin (for connector 1)
w1
w1
Sheath end shrink-fitted,
Length for shrink-fitted sleeve approx. 20mm
bk
beneath the shrink-fit sleeve
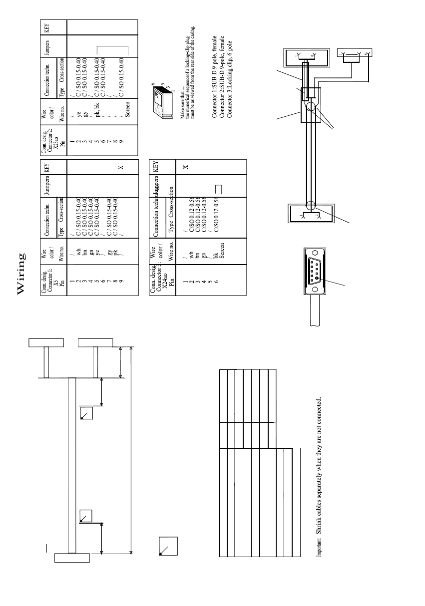
2 PCB barcode scanner assembly instructions SIPLACE
2.9 Electrical drawings 10/2009 Edition
204
2
Fig. 2.9 - 5 Cable: distributor for the S-27 / D1 / D2 PCB barcode scanners (03016827-010102FD3

Distributor f. PCB barcode scanner 00372356-xx
Barcode scanner
top
Barcode scanner
bottom
Conveyor control
(ao) 00329219-xx TSP100
03021617-xx
Pin 1
X3 ao
Pin 1
Please note X3 connector polarity!
X23
HS50 wiring for single conveyor with TSP100 conveyor control (00329219-xx):
If no barcode scanner is connected to X1 ... X4,
03022264-01
Extension kit
Frame
Distributor grounding terminal
make sure to set the associated switch contact 1 ... 4 at S1 to ON.
SIPLACE 2 PCB barcode scanner assembly instructions
10/2009 Edition 2.9 Electrical drawings
205
2
Fig. 2.9 - 6 Wiring for HS-50 SC with TSP 100 (00329219-xx) (03016491-010201)

Control assy, PCB conveyor (00349837-xx)
Conveyor control
(ao) 00353442-xx/00349302-xx
Distributor f. PCB barcode scanner
00372356-xx
Barcode scanner
top
Barcode scanner
bottom
S1
03016825-xx
If no barcode scanner is connected to X1 ... X4,
*)
*)
HS50 wiring for single conveyor with TSP200 conveyor control (00353442-xx):
03022264-01
Extension kit
Frame
Distributor grounding terminal
make sure to set the associated switch contact 1 ... 4 at S1 to ON.
2 PCB barcode scanner assembly instructions SIPLACE
2.9 Electrical drawings 10/2009 Edition
206
2
Fig. 2.9 - 7 Wiring for HS-50 SC with conveyor control TSP200 (00353442-xx) (03016491-010201)