MEC-SFABCC-003S0SmartFAB搬运单元(带切割&弯脚功能)机械手册.pdf - 第27页
MEC-SFABCC-003S0 2. 预防保养 SmartFAB 搬运单元 ( 带切割 & 弯脚功能 ) 机械手册 19 2.6 每 12000 小时的作业 2.6.1 向搬运轨道的加油 备注 ) 加油量是指对于 1 根丝杆的必要加油量。 加油方法 1. 进行机器的关机操作、将主开关 OFF 。 2. 使用清洁布擦去宽度更换用滚珠丝 杆上的污垢。 3. 将 3 .75cc 的 NS7 或者 Multemp SR L 涂敷在刷子…

2. 预防保养 MEC-SFABCC-003S0
18
SmartFAB 搬运单元 ( 带切割 & 弯脚功能 ) 机械手册
2.5 每 1 年 (8000 小时 ) 的作业
2.5.1 向切割&弯脚轴槽部的加油
加油方法
1. 进行机器的关机操作、使主开关 OFF。
2. 从机器上取下气源投入口的盖板。
3. 使气源投入口的操作杆 OFF,停止外部供应气源。将气源供应管端的插口从气源投入口
取下。再次将气源投入口的操作杆 ON,使气源配管内减压。
4. 注入润滑油 (1)。
5. 使用清洁布擦去溢出的多余润滑油。
6. 用手使单元上下动作 (2)、让润滑油循环。
润滑油 加油处 加油量
(cc)
Daphne EponexNo.2( 出光 ) 切割&弯脚轴槽部 0.1
1
2
39MEC-0006-a
Byw6H9B6
Byw6H9B6
Downloaded at 2015/10/08 22:10:230 by 3NEC4804 DL#QoTxIbpm

MEC-SFABCC-003S0 2. 预防保养
SmartFAB 搬运单元 ( 带切割 & 弯脚功能 ) 机械手册 19
2.6 每 12000 小时的作业
2.6.1 向搬运轨道的加油
备注 ) 加油量是指对于 1 根丝杆的必要加油量。
加油方法
1. 进行机器的关机操作、将主开关 OFF。
2. 使用清洁布擦去宽度更换用滚珠丝杆上的污垢。
3. 将 3.75cc 的 NS7 或者 Multemp SRL 涂敷在刷子上。
4. 使用刷子将润滑油均匀地涂敷在变幅滚珠丝杆上。对 2 根变幅滚珠丝杆 (1) 加油。
5. 用手将从属侧搬运轨道移动 1 个往复全行程,让润滑油循环。
6. 使用清洁布擦去从滚珠丝杆上溢出的润滑油。
润滑油 加油处 加油量 (cc)
NS7(NSK) 或者 Multemp SRL( 協同油脂 ) 变幅滚珠丝杆 3.75
1
39MEC-0007-a
Byw6H9B6
Byw6H9B6
Downloaded at 2015/10/08 22:10:230 by 3NEC4804 DL#QoTxIbpm

2. 预防保养 MEC-SFABCC-003S0
20
SmartFAB 搬运单元 ( 带切割 & 弯脚功能 ) 机械手册
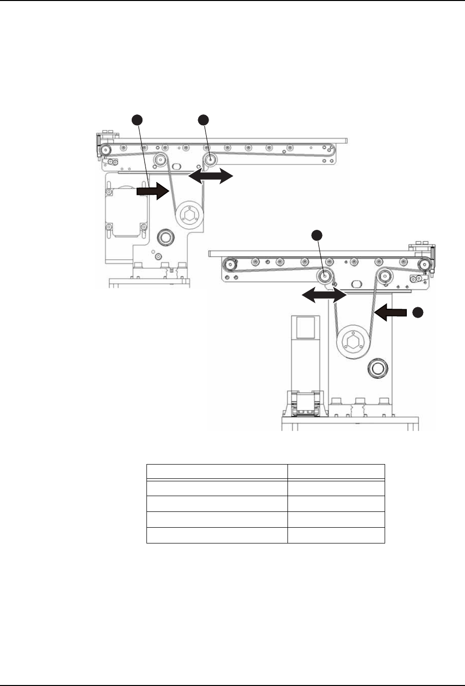
2.6.2 搬运轨道传送皮带张力的检查
1. 请准备张力计。
2. 将张力计对准测定处 (1) 测定搬运轨道传送皮带的张力。张力值超出规定值时,松开张
力轮 (2) 后左右移动进行调整。
备注 ) 搬运轨道传送皮带会随着运转时间的增大而延长。张力超出公差值时请重新进行调整。
3. 使张力轮处于规定转矩 (2.0 N·m) 并拧紧。
公差值张力 (Hz)
基准侧搬运皮带 L 260±25
基准侧搬运皮带 R 260±25
从属侧搬运皮带 L 260±25
从属侧搬运皮带 R 260±25
39MEC-0008
1
1
2
2
Side R
Side L
Byw6H9B6
Byw6H9B6
Downloaded at 2015/10/08 22:10:230 by 3NEC4804 DL#QoTxIbpm