NPM-W2S.pdf - 第130页
NPM-W2S 2018.0416 - 124 - ( 单位 : mm) ■ 单式托盘供料器连接时 ■ 双式托盘供料器连接时 单式托盘供料器 13 站供料器座 交换台车 前 侧 单轨传送带规格 双轨传送带规格 前 侧 板传送基准 基板传送基准 ( 前侧轨道 ) 基板传送基准 ( 后侧轨道 ) ) Air 电源 双式托盘供料器 交换台车 前 侧 单轨传送带规格 双轨传送带规格 前 侧 板传送基准 基板传送基准 ( 前侧轨道 ) 基板传送基…

NPM-W2S 2018.0416
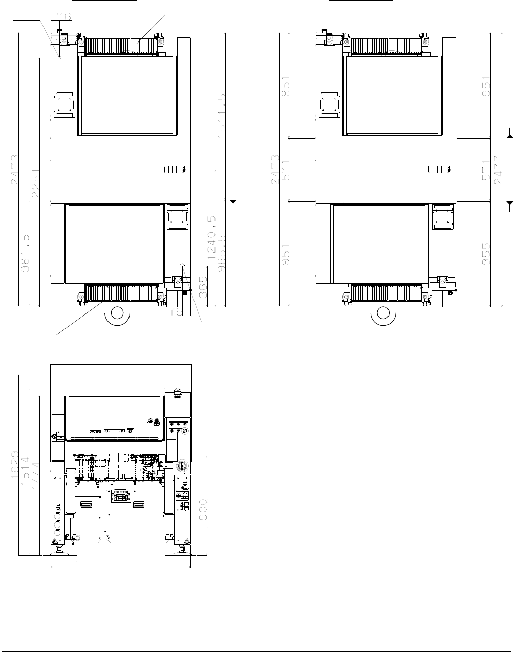
- 123 -
13.
尺寸图
(单位: mm)
■ 交换台车连接时
Remarks
上述示图的缩小比例与实际机器在严格上讲,并不完全一致。
在研讨生产线构成和尺寸时,请另行索取资料。
本机下部如有设置通风道等时,请确保与主体间空隙保持 40 mm 以上。
单轨传送带规格 双轨传送带规格
电源
Air
基板传送基准
基板传送基准
(前侧轨道)
基板传送基准
(后侧轨道)
前 侧
前 侧
交换台车
交换台车
基板传送高度
1,280 (传送带长度)
1
,
265
(
罩
外形
)
Air
电源

NPM-W2S 2018.0416
- 124 -
(单位: mm)
■ 单式托盘供料器连接时
■ 双式托盘供料器连接时
单式托盘供料器
13 站供料器座
交换台车
前 侧
单轨传送带规格 双轨传送带规格
前 侧
板传送基准
基板传送基准
(前侧轨道)
基板传送基准
(后侧轨道)
)
Air
电源
双式托盘供料器
交换台车
前 侧
单轨传送带规格 双轨传送带规格
前 侧
板传送基准
基板传送基准
(前侧轨道)
基板传送基准
(后侧轨道)
Air
电源

NPM-W2S 2018.0416
- 125 -
(
単位
: mm)
■ 交换台车连接时(含堆叠杆状供料器)
※ 为了取出和设置供料器,需要以下空间。
・从尾端顺序取出或设置的情况,如上图所示,需要
400 mm
的空间。
・若要从两侧都邻接供料器的位置取出中间的供料器,需要供料器全长的距离,因此需要最多
1 600mm
的空间。
400
400
865
4224
851