NPM-W2S.pdf - 第73页
NPM-W2S 2018.0416 - 67 - 6. 其他标准规格 6.1 程序功能 数据编制都是在数据编制系统 NPM-DGS 进行。在 NPM- DGS 作成的生产数据,通过 FA 电脑下载于设备。 但是,部分数据修正也可在机器主体 上进行。 在设备主体修正的数据以及校正内容 被保存,可以再利用。 ※ NPM-DGS 用 的硬件,请客户准备。 (NPM-DGS 是其他产品 。 ) 有关 NPM-DGS 的详细情况,请参照别册 的「…

NPM-W2S 2018.0416
- 66 -
5.12 留言板
触摸屏在超过一定时间
※
1
没有任何操作时,可以显示客户设定的图像
※
2
。
可将操作员教育指导图像,换班时的交接信息等,设定为显示图像。
有效利用操作屏,并可在生产中进行操作员的教育指导。
※1 时间可由客户从触摸屏针对不同设备分别设定。
※2 图像可经由 LNB,针对不同设备分别设定。
■ 功能概要
显示图像张数
每个设备,最多可设定 10 张图像。
另外,设备在生产中也可进行设定。
错误画面优先显示
在显示留言板的设定图像时,如果有错误发生,自动从留言板图像切换至错误显示画面。
5.13 装头诊断
通过诊断贴装头,预防故障发生,确保设备安定运行。
■ 功能概要
空气泄漏检查
在密闭状态下测定阀 ON/OFF 时的流量。
流量传感器归零检查
测定流量传感器的偏差。
空气堵塞检查
在释放状态下测定阀 ON/OFF 时的流量。
Z 轴、θ 轴动作检查
测定 Z 轴、θ 轴马达,在高速和低速运转时的扭矩。

NPM-W2S 2018.0416
- 67 -
6. 其他标准规格
6.1 程序功能
数据编制都是在数据编制系统 NPM-DGS 进行。在 NPM-DGS 作成的生产数据,通过 FA 电脑下载于设备。
但是,部分数据修正也可在机器主体上进行。
在设备主体修正的数据以及校正内容被保存,可以再利用。
※ NPM-DGS 用的硬件,请客户准备。(NPM-DGS 是其他产品。)
有关 NPM-DGS 的详细情况,请参照别册的「NPM-DGS 规格说明书」。
6.2 信号塔
信号灯的颜色和亮灯标准
信号灯
颜色
分 类 亮灯标准
红色 紧急停止错误
・ 马达等的轴异常
・ 空气压力下降
・ 基板支撑部异常
・ 贴装头故障
・ 编带故障 等
黄色 中途停止错误
・ 吸着错误
・ 贴装错误
・ 基板传送错误
・ 元件用完
・ 吸嘴更换错误 等
绿色 运转中
自动运转等动力为 ON 时
(但是,红色和黄色闪烁时熄灯)
蓝色或者
红色
连接的设备中,成为瓶颈的设备(循环时间最长的设备)蓝色灯亮。
另外,按紧急停止开关,红色灯亮。
※ 亮灯规格,可以变更设定。
设备设定
PCB 数据
元件数据
最佳化
生产数据
标准
:
横置
距离地面
1,514 mm
红
黄
绿
(
蓝色或者红色
)
红
黄
绿
距离地面
1,629 mm
也可以纵置。
高度从地面起是
1,629 mm
。
(
蓝色或者红色
)
数据编制系统 NPM-DGS
网板 Gerber 数据
(锡膏检查时)

NPM-W2S 2018.0416
- 68 -
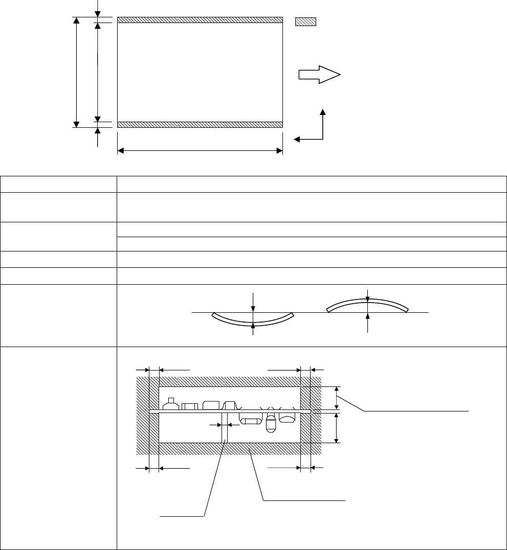
7. 印刷基板设计基准
7.1 印刷基板规格概要
■ 单轨传送带规格
项 目 规 格
基板尺寸
50 × 50 mm ~ 750 × 550 mm
※ 基板为 L 350 mm 以下时,可以夹钳 2 张基板。
贴装/ 检查可能范围
50 × 44 mm ~ 750 × 544 mm
※ 有关点胶范围的详细情况请参照「4.4 有关点胶范围的限制」。
基板厚度
0.3 mm ~ 8.0 mm
基板重量 3.0 kg以下
※1
基板弯曲容许
基板断面
贴装前基板状态
※1 基板重量(包括载体重量)超过 3.0 kg 的情况时,请另行联络。
※2 使用支撑销自动更换功能的情况时,支撑销形状、销的配置条件等有异。
详细请参阅「9. 选购件: 支撑销的自动更换」。
※ 有关陶瓷基板的对应请另行联络。
禁止有元件的范围
16
吸嘴贴装头
: 6.5 mm
12
吸嘴贴装头
: 6.5 mm
8
吸嘴贴装头
: 12 mm
3
吸嘴贴装头
: 30 mm
支撑销
※
2
(
设置在与反面元件距离隔开
2 mm
以上的位置。
)
28 mm
3 mm
3 mm
3 mm
φ
3
3 mm
Max. 0.5 mm
Max. 0.5 mm
Y
X
固定侧
禁止有元件
(
或者锡膏等
)
的范围
3 mm
50 mm ~ 750 mm
3 mm
50 mm ~ 550 mm
44 mm ~ 544 mm
流向