劲拓回流焊用户手册(标准机).pdf - 第79页
附图 T E A 系列无铅回流焊机用户手册 - 75 - 附图

其他主要事项 TEA系列无铅回流焊机用户手册
- 74 -
7.
机器工作时
UPS
应处于常开状态。
8.
经常检查
UPS
是否正常工作;
9.
温度设置不要低于室温,以避免机器信号灯塔红灯常亮;
10.
机器经过移动后,须对各部进行检查;
11.
机器应保持平稳,不得有倾斜或不稳定的现象。通过调整机器下部六个脚杯,保证运输链处于水平状态,防
止
PCB
板在运输过程中发生位移;
12.
操作时,请注意高温,避免烫伤;
13.
检查
PCB
运输链条传动是否正常,保证其无挤压、受卡现象,保证链条与各链轮啮合良好,无脱落现象;
14.
本机采用自动运输链润滑方式,必须采用高温润滑油,需定期检查油杯中的油量并及时补充;机器
运行时
多余的润滑油会滴入接油槽,请定期检查并及时清理;
15.
本机采用双电动丝杆开启炉体,需每月检查各转轴处的开口销固定情况,检查上下限位开关的有效性
并保
证各活动部件足够的润滑。
16.
保证机器前部的调宽链条与各链轮啮合良好,无脱落现象
17.
保证运输网链没有从下部的滚筒上脱落;
7.2 部分参数设置
限流保护器设定值为:运输限流为 0.64A,调宽限流为 0.64A,升降致动器限流为 4A。
温馨提醒:
温区温度长期设在 300 度使用,会缩短炉体相关配件的使用寿命,如:高温马达、发热
丝、密封胶条等。

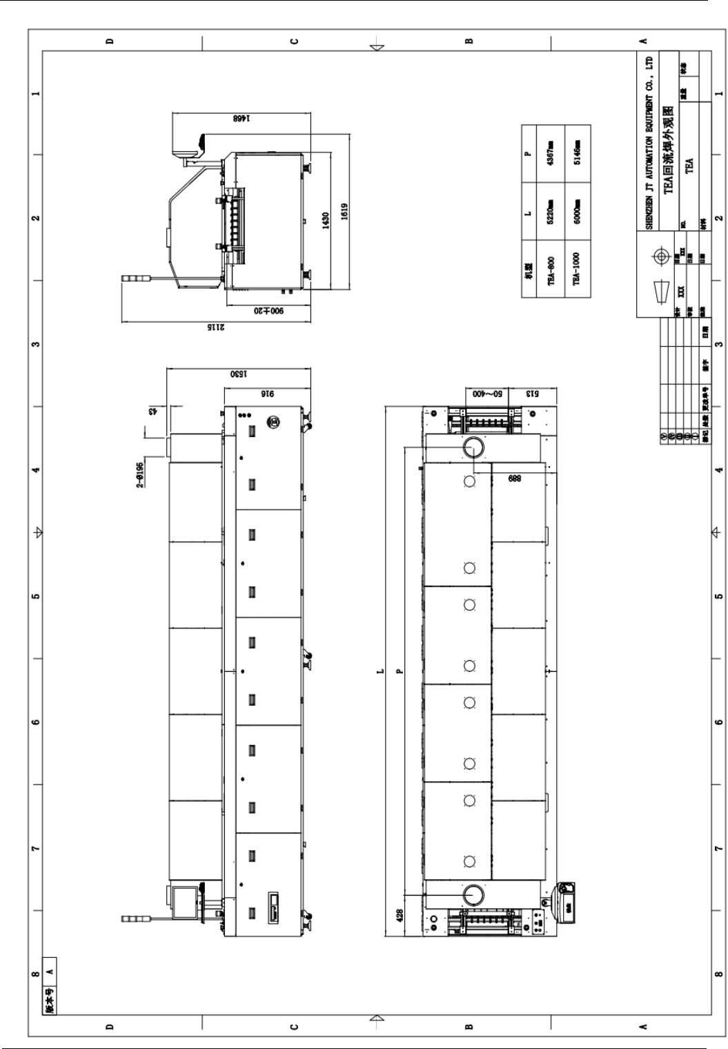
附图 TEA系列无铅回流焊机用户手册
- 75 -
附图

TEA系列无铅回流焊机用户手册 附图
8.1 设备外观示意图
- 76 -