SM481_Introduction(Chi_Ver1).pdf - 第101页
6-27 Module Function 6.10.3. 振动杆式喂料器 ( Vibration stick feeder ) 多数 vibration stick feeder 是把通过 Stick 来供应的 SOP , SOJ, PLCC 等部品, 用震动器 的震动沿着直线方向移送的装备 。 它通过横向排列 St ic k 的方法 来供应部品, 可以排 列 4 条 Stick 。 图 6.19 振动杆式喂料器 (Vibration …

6-26
Samsung Component Placer SM481 Introduction
1:
卷带导向器
2:
卷带导
3:
机架
1: Tape Guide
2: Frame
根据Tape Feeder种类不同吸附点的Z值可取不同值。另外,因不同的部件供给
Tape 种类该值可取不同值,Embossed Tape的高度应该低于Paper Tape高度。
Embossed Tape时,请参照部件Tape 规格,适当地设置吸附点的Z值。
G
Z=0
Paper Tape Embossed Tape
Z>0
Z<0

6-27
Module Function
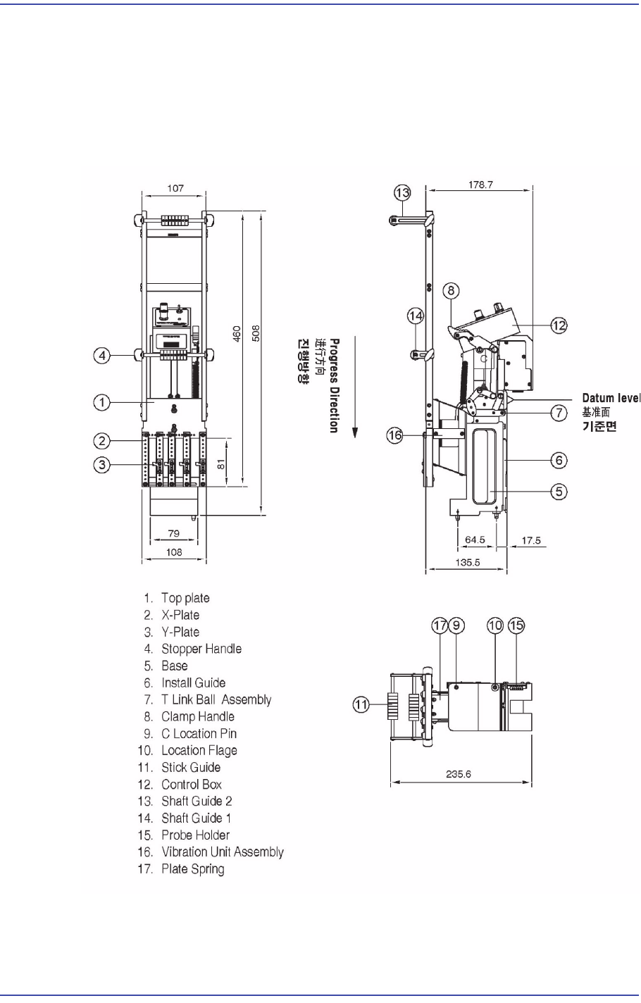
6.10.3. 振动杆式喂料器(Vibration stick feeder)
多数vibration stick feeder是把通过Stick来供应的 SOP, SOJ, PLCC等部品,用震动器
的震动沿着直线方向移送的装备。它通过横向排列Stick 的方法来供应部品,可以排
列4条Stick。
图
6.19
振动杆式喂料器
(Vibration stick feeder)

6-28
Samsung Component Placer SM481 Introduction
6.11. 压缩气动部分
空压一般设置为0.45 ~ 0.55 Mpa使用,通过设备后面下端的Air Filter 供给。
供给空气的一部分使用于运行设置在Feeder Base的SM给料器,一部分使用于驱动
ANC,另外一部分使用于贴装头发生真空,其余一部分使用于运行输送器的各
Stopper 及Backup Table。
图
6.20
压缩气动部分
1: Head Air Ass'y
2: Manifold
3: Air Filter
4: Main Manifold
5: Air Valve
6: Air Gauge
7: Vacuum pump
注 意 如果压力低于适当标准,设备可能会无规律运行。一般来说,合
适的气压为0.45 ~ 0.55 Mpa。
警 告 设备修理维护时气压和电源未切断可能导致人员严重受伤。设备
修理维护时一定要切断气压和电源。