JM-20-Rev05.pdf - 第11页
- 6 - NOTE( 注記 ) #01....FOR EN EN 用 #02....OPTIONAL PARTS オプション部品 #03....FOR 200V 200 V 用 #04....FOR 400V 400 V 用 REF.NO NOTE PART NO D E S C R I P T I O N 品 名 Qty 1 PS-0500202-KP SPRING PIN 5X2 0 スプリングピン 5.0 X20 2 2 401…

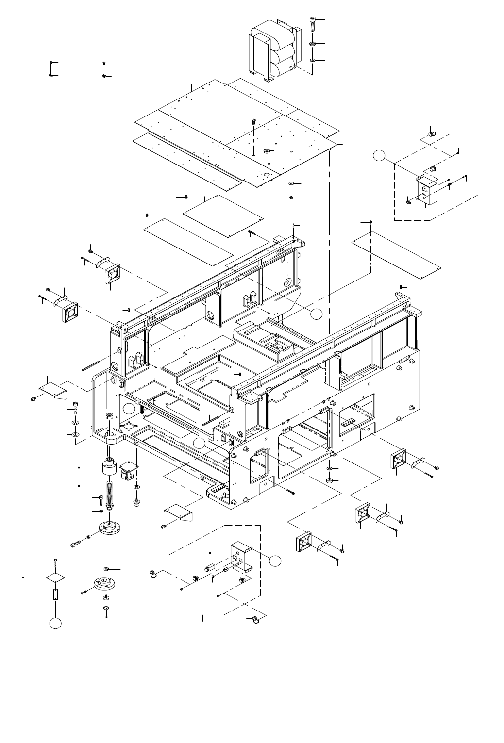
- 5 -
3. BASE FRAME COMPONENTS(3)(TYPE XL)
ベースフレーム関係(3)(XL 仕様)
26
25
25
22
21
20
22
21
20
46
14
13
14
10
11
9
44
12
6
13
7
19
48
16
47
50
49
15
17
35
40
37
18
28
32 33
30
31
29
29
27
46
34
42
38
39
36
41
18
18
21
25
22
20
20
21
22
25
25
22
21
20
2
2
3
4
4
4
5
24
24
5
C
A
23
23
8
18
51
58
68
63
54
55
52
53
72
73
59
61
65
56
57
64
66
67
60
62
69
70
70
71
B
B
C
A
1
1
45
43

- 6 -
NOTE( 注記 ) #01....FOR EN EN 用
#02....OPTIONAL PARTS オプション部品
#03....FOR 200V 200 V 用
#04....FOR 400V 400 V 用
REF.NO NOTE PART NO D E S C R I P T I O N
品 名
Qty
1 PS-0500202-KP SPRING PIN 5X20
スプリングピン 5.0X20
2
2 401-36709 BANK_PLATE
バンクプレート
2
3 401-36710 BU_PLATE
BUプレート
1
4 SL-6040892-TN SCREW M4 L=8
座金付き六角穴ボルト M4 L=8
12
5 401-36711 FU_COVER_BR
FUカバーブラケット
2
6 E1035-729-000 ADJUSTER FOOT
アジャストフット
4
7 400-00519 BASEFRAME NUT
ベースフレームナット
4
8 E1044-729-000-A ADJUST NUT
アジャストナット36
4
9 400-00403 ADJUST BOLT
アジャストボルト
4
10 SM-6126002-TN SCREW M12 L=60
六角穴ボルト M12 L=60
12
11 WS-1220002-KN SPRING WASHER
ばね座金
12
12 WP-1302501-SC WASHER 13X24X2.5
平座金 13X24X2.5
12
13 SM-6083002-TN SCREW M8 L=30
六角穴ボルト M8 L=30
24
14 NM-6080002-SC NUT M8
六角ナット M8 2種
12
15
#02
400-13307 FP PUSHER
FPプッシャ
12
16
#02
NM-6080001-SC NUT M8X1.25
六角ナット M8 1種
12
17
#01
HK-0429900-7A CAP
キャップ
1
18 PS-0400122-KP SPRING PIN TYPE W 4X12
スプリングピン W形 4X12
4
19
#01
400-00535 BASEFRAME NUT(EN)
ベースフレームナット(EN)
4
20 401-08337 FAN BR
ファンブラケット
5
21 401-33768 DC FAN
DCファン
5
22 SL-4033091-SC SCREW M3 L=30
なべ小ねじセムス M3X0.5 L=30
10
23 401-36712 FU_COVER_POST
FUカバーポスト
2
24 SL-6061292-TN SCREW M6 L=12
座金付き六角穴ボルト M6 L=12
8
25 SL-3061232-TN SCREW M6 L=12
座金付きボタンボルト M6 L=12
10
26 401-37042 IF_PANEL_ASSY
IFパネル組
1
27 401-36735 IF_PANEL
IFパネル
(1)
28 401-36512 SMEMA OUT CABLE ASM
スメマOUTケーブル組
(1)
29 SL-4030881-SC SCREW M3 L=8
座金付きなべ小ねじ M3 L=8
(8)
30 HK-0651200-80 CONNECTOR
コネクタ
(1)
31 401-36511 SMEMA IN CABLE ASM
スメマINケーブル組
(1)
32
#03
401-06608 POWER LAMP 200V CABLE ASM
電源ランプ200V束線組
(1)
33
#04
401-06609 POWER LAMP 400V CABLE ASM
電源ランプ400V束線組
(1)
34
#01
HX-0066000-00 DUST COVER
ダストカバー
(1)
35 401-37043 MTS_IF_PANEL_ASSY
MTS_IFパネル組
1
36 401-36445 MTC PWR WIRE L ASM
MTC電源ワイヤーL組
(1)
37 SL-4030881-SC SCREW M3 L=8
座金付きなべ小ねじ M3 L=8
(4)
38 PJ-2300062-00 UNION
隔壁用ユニオン
(1)
39 PX-9500010-00 PLUG
止栓
(1)
40 SM-4860501-SB SCREW M2.6 L=5
なべねじ M2.6 L=5
(2)
41 401-36736 MTS_IF_PANEL
MTS_IFパネル
(1)
42 400-95126 MTC MTS I/F BR CABLE ASM
MTC MTS I/F BRケーブル組
(1)
43 SL-6042592-TN SCREW M4 L=25
座金付き六角穴ボルト M4 L=25
4
44
#01
400-00404 ADJUST BOLT(EN)
アジャストボルト(EN)
4
45 SL-6043092-TN SCREW M4 L=30
座金付き六角穴ボルト M4 L=30
4
46
#01
HK-0429901-4A CAP
キャップ
2
47
#02
E6600-729-000 ADJUST FOOT N
アジャストフットN
4
48
#02
SM-6082502-TN SCREW
六角穴ボルト
12
49
#02
400-13306 FLICTION PLATE
フリクションプレート
12
50
#02
SM-1030801-SC SCREW M3 L=8
皿小ねじ M3X0.5 L=8
36
51 400-00450 TRANS SCREW
トランスねじ
2
52 401-36719 E_BASE_PLATE_RL
E_ベースフレームRL
1
53 401-36718 E_BASE_PLATE_F
E_ベースフレームF
1
54 HX-0018800-0F CORD BUSH
コードブッシュ
1
55 401-36720 E_BASE_PLATE_RR
E_ベースフレームRR
1
56 HX-0029400-00 FIXED BASE
固定ベース
6
57 SM-4040801-SC SCREW M4X0.7 L=8
なべ小ねじ M4X0.7 L=8
6
58 401-36337 TRANSFORMER
トランス
1
59
#02
400-94543 CASTER_3020
キャスター3020
4
60
#02
400-94544 CASTER PLATE
キャスタープレート
4
61
#02
SL-6103542-TN SCREW M10 L=35
座金付き六角穴ボルト M10 L=35
16
62 400-94549 HOLE COVER
ホールカバー
4
63 400-98142 CH NUT PLATE
CHナットプレート
4
64 SL-6043092-TN SCREW M4 L=30
座金付き六角穴ボルト M4 L=30
8
65
#02
WP-1052001-SC WASHER 10
平座金みがき丸 M10
16
66 400-94475 BP WASHER
BPワッシャー
11
67 NM-6100001-SC NUT M10X1.5
六角ナット M10 1種
11
68 SM-6124502-TN SCREW M12 L=45
六角穴ボルト M12 L=45
2
69 WS-1220002-KN SPRING WASHER
ばね座金
2
70 400-94475 BP WASHER
BPワッシャー
6
71 NM-6120001-SC NUT M12X1.75 TYPE1
六角ナット M12X1.75 1種
4
72 HX-0029400-00 FIXED BASE
固定ベース
13
73 SM-4040601-SC SCREW M4X0.7 L=6
なべ小ねじ M4X0.7 L=6
13

- 7 -
4. BASE FRAME ELECTRIC APPARATUS COMPONENTS(1)
ベースフレーム電装関係(1)
12
13
7
8
4
5
2
3
6
9
10
11
14
15
17
18 20
21
22
23
1
16
24