PTS-NXT-08JE.pdf - 第355页
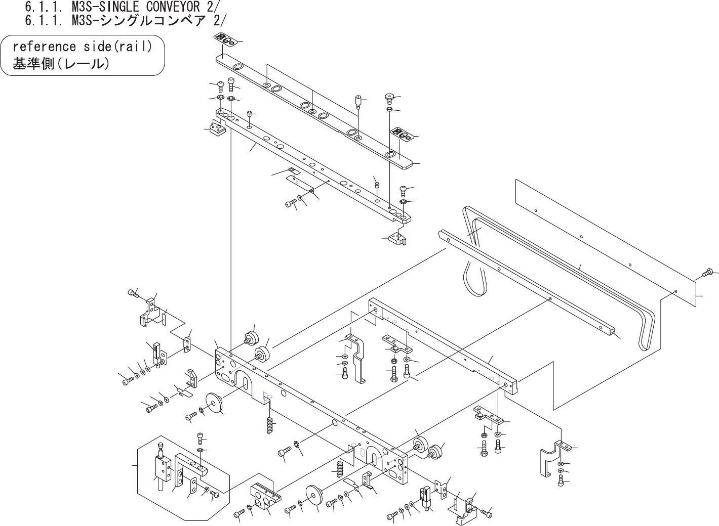
6.1.1. M3S-SINGLE CONVEYOR 2/ 6.1.1. M3S-シングルコンベア 2/ UQ01445 No. Drg.No. & Code No. QTY Description Rating Materials Remarks 番号 図番 & コード番号 個数 品名 規格 材質 備考 1 PM83091 1 PLATE, RETAINING プレート 押え FE 1.1 PM03AX0 1 PLA…

A
1,
1.1
4
7
8
6
3
2
70
45
53
50
52
51
53
50
52
51
63
64
62
56
55
54
41
39
40
27
38
46
34
35
36
33
9
24
12,
12.1
11
10
14
13
16
18
17
45
48
49
48
49
47
47
30
30.2
30.1
25
26
19,
19.1
71
71
73
74
72
75.1
75.3
75.4
75.5
75.2
30.3
27.2
27.1
27.3
63.1
55.1
50.1
50.2
15
15
23,
23.1
21
22
43
44,
44.1
43
59
60
61
61
58
69
69
68
67
66
77
76
75
44,
44.1
UQ01445
6. CONVEYOR / コンベア 18 PTS-NXT-08JE

6.1.1. M3S-SINGLE CONVEYOR 2/
6.1.1. M3S-シングルコンベア 2/
UQ01445
No. Drg.No. & Code No. QTY Description Rating
Materials
Remarks
番号 図番 & コード番号 個数 品名 規格 材質 備考
1 PM83091 1 PLATE, RETAINING プレート 押え FE
1.1 PM03AX0 1 PLATE, RETAINING プレート 押え FE Thin panel option
2 PM01723 6 BOLT ボルト FE
3 PM03470 6 COLLAR カラー FE
4 PM23703 3 PIN, REFERENCE ピン 基準 FE
6 PT01220 1 GUIDE ガイド FE
7 K5255T 2 SCREW, HEX SOCKET BUTTON 小ネジ 六角穴ボタン M03X006 FE
8 W1010A 2 WASHER, CONICAL ワッシャ 皿 M- 3-L FE
9 PT01210 1 GUIDE ガイド FE
10 K5255T 2 SCREW, HEX SOCKET BUTTON 小ネジ 六角穴ボタン M03X006 FE
11 W1010A 2 WASHER, CONICAL ワッシャ 皿 M- 3-L FE
12 PM11588 1 RAIL レール FE
12.1 PM41853 1 RAIL レール FE Thin panel option
13 H5288A 4 BOLT, HEX SOCKET ボルト 六角穴 M04X010 FE
14 W1011A 4 WASHER, CONICAL ワッシャ 皿 M- 4-L FE
15 H3170B 2 PLUNGER, BALL プランジャ ボール SBP-4 OT
16 PB11920 1 BKT BKT FE
17 H5274A 2 BOLT, HEX SOCKET ボルト 六角穴 M03X006 FE
18 W1021A 2 WASHER, LOCK ワッシャ スプリング 3M/M FE
19 PX03040 1 SEAL, BAR CODE シール バーコード PL
19.1 PX03990 1 SEAL, BAR CODE シール バーコード PL Thin panel option
21 PM09102 1 PLATE, CLAMPING プレート クランプ FE
22 K5255A 4 SCREW, HEX SOCKET BUTTON 小ネジ 六角穴ボタン M03X004 FE
23 XB01021 1 CONVEYOR, BELT コンベア ベルト OT L=960mm
23.1 XB02730 1 CONVEYOR, BELT コンベア ベルト OT Thin panel option
24 PM11620 1 GUIDE, BELT ガイド ベルト AL
25 H5287A 4 BOLT, HEX SOCKET ボルト 六角穴 M04X008 FE
26 W1011A 4 WASHER, CONICAL ワッシャ 皿 M- 4-L FE
27 PB18160 1 HOOK フック FE
27.1 H5275A 2 BOLT, HEX SOCKET ボルト 六角穴 M03X008 FE
27.2 W1021A 2 WASHER, LOCK ワッシャ スプリング 3M/M FE
27.3 W1040A 2 WASHER, FLAT ワッシャ 平 3M/MX0.5X7 FE
30 PB18150 1 HOOK フック FE
30.1 H5275A 2 BOLT, HEX SOCKET ボルト 六角穴 M03X008 FE
30.2 W1021A 2 WASHER, LOCK ワッシャ スプリング 3M/M FE
30.3 W1040A 2 WASHER, FLAT ワッシャ 平 3M/MX0.5X7 FE
33 PM12151 1 PLATE プレート FE
34 H5275A 2 BOLT, HEX SOCKET ボルト 六角穴 M03X008 FE
6. CONVEYOR / コンベア 19 PTS-NXT-08JE

6.1.1. M3S-SINGLE CONVEYOR 2/
6.1.1. M3S-シングルコンベア 2/
UQ01445
No. Drg.No. & Code No. QTY Description Rating
Materials
Remarks
番号 図番 & コード番号 個数 品名 規格 材質 備考
35 W1021A 2 WASHER, LOCK ワッシャ スプリング 3M/M FE
36 H55035 1 BOLT ボルト PUST4-15 OT
38 PM12141 1 PLATE プレート FE
39 H5275A 2 BOLT, HEX SOCKET ボルト 六角穴 M03X008 FE
40 W1021A 2 WASHER, LOCK ワッシャ スプリング 3M/M FE
41 H55035 1 BOLT ボルト PUST4-15 OT
43 ADBPP8011 2 PULLEY プーリ OT
44 AA93001 2 PULLEY プーリ OT
44.1 AA0BZ01 2 PULLEY プーリ OT Thin panel option
45 PZ14450 2 SPRING スプリング FE
46 PM11637 1 PLATE, GUIDE プレート ガイド FE
47 PM01751 2 GUIDE ガイド FE
48 H5276A 2 BOLT, HEX SOCKET ボルト 六角穴 M03X010 FE
49 W1010A 2 WASHER, CONICAL ワッシャ 皿 M- 3-L FE
50 PM97050 2 BLOCK, LOCATING ブロック 位置決め FE
50.1 PB84700 1 BKT BKT FE
50.2 PB84690 1 BKT BKT FE
51 H5275A 4 BOLT, HEX SOCKET ボルト 六角穴 M03X008 FE
52 W1021A 4 WASHER, LOCK ワッシャ スプリング 3M/M FE
53 W1041F 4 WASHER, FLAT ワッシャ 平 ゚3X6コガタヒラザガネ FE
54 PM92391 1 BKT, SENSOR BKT センサ FE
55 PT01151 1 GUIDE ガイド FE
55.1 PS02472 1 SHEET シート OT
56 H5429N 2 BOLT, HEX SOCKET ボルト 六角穴 CBS3-8 FE
58 XS01453 1 SENSOR, FIBER センサ ファイバ HPF-S333-D OT
59 H5274A 2 BOLT, HEX SOCKET ボルト 六角穴 M03X006 FE
60 W1021A 2 WASHER, LOCK ワッシャ スプリング 3M/M FE
61 W1041F 4 WASHER, FLAT ワッシャ 平 ゚3X6コガタヒラザガネ FE
62 PM92401 1 BKT, SENSOR BKT センサ FE
63 PT01161 1 GUIDE ガイド FE
63.1 PS02472 1 SHEET シート OT
64 H5429N 2 BOLT, HEX SOCKET ボルト 六角穴 CBS3-8 FE
66 XS01453 1 SENSOR, FIBER センサ ファイバ HPF-S333-D OT
67 H5274A 2 BOLT, HEX SOCKET ボルト 六角穴 M03X006 FE
68 W1021A 2 WASHER, LOCK ワッシャ スプリング 3M/M FE
69 W1041F 4 WASHER, FLAT ワッシャ 平 ゚3X6コガタヒラザガネ FE
70 PM92311 1 PLATE プレート FE
71 PZ14130 2 SEAL シール PL
6. CONVEYOR / コンベア 20 PTS-NXT-08JE