5OM-1434-003_w.pdf - 第100页

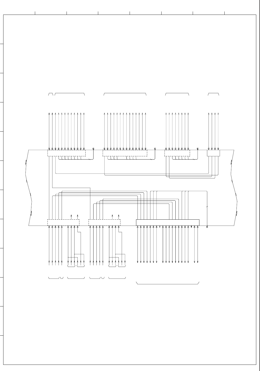
4-19 0710-001B(M858WBL--0005) 8,67/7,/%3:5/ A3 B2 A2 -X0515 10B CN15 -XB0510 -B0510 + - BL BR BK OUT1 :2 :3 :1 OUT2 PK B3 :4 A5 :1 -X20701 B5 :2 -506 24B1L -504 -533 24B2L INT_DI 5 INT_DO 7 INT_DI 3 1 -X…

100%1 / 151
4-18
0805-002A(M858WBL--0004)
8,67/7,/%3:5/
A1
A2
B1
-X0512
-512
-K33
43 44
-514
-Q222
14 13
-Q223
13 14
-Q201
ac
-Q221
13 14
A6
A7
B6
-513
-K33
43 44
-515
14 13 13 14a c 13 14
B7
-Q205
13 14
A8
-F031
43
B8
F201
F202
F203
-X11234
A1 A2
-K77
A1 A2
-K75
:2
-X11234
:1
A11
B10
A10
803802801
10B
806805804
-713
-722
-723
10B
-730
-731
24B2R
CN12
B2
-Q203
11 14
-711
-Q222 -Q223-Q201 -Q221
INT_DI 11
INT_DI 13
IO_DI 1
INT_DI 12
INT_DI 14
IO_DI 3
IO_DI 12
IO_DI 13
IO_DO 4
IO_DO 5
A4
B4
A12
B12
A13
B13
-X5303:3
-X5303:19
-X5303:5,10
A5
N.C
B5
N.C
A9
N.C
B9
N.C
B11
N.C
CN13
1
3
2
4
10B
-712(R)
-716(R)
-U05R
:5
-X0513
:6
-X0513
:A3
-X0512
:B3
-X0512
:A1
-X0512
7
-518
:8
-X0513
:A13
-X0515
:5
X7108
:4
10B
-717
CN14
2
IO_DI 2
IO_DI 6
INT_DI 17
IO_DI 7
A3
CN12
(-X0512)
B3
Q204L
Q206L
BA
-712(L)
-716(L)
-X0513
-712(L)
-716(L)
5
6
:3
-X0513
:4
IO_DI 2
IO_DI 6
1
8
9
10
N.C
N.C
CN15
(-X0515)
A14
B14
:1
-X35303
:2
A15
:3
-B5301
A13
GND(10B)
GND(10B)
24V(B2)
GND(10B)
GND(10B)
BA
-X0514
BS
[BR/04/11C]
[BR/04/11C]
[BR/04/8C]
[N-/04/3D]
[F-/01/7E]
[N-/04/4D]
N.C
N.C
-A53
-U05 I/O PCB
STLT (ILB+PWR)
-F032
43
CB⇣Ᏹ (1)-Y1 CB⇣Ᏹ (1)-Y2CB⇣Ᏹ㧔ࡆ࡯ࡓ1✚ว㧕 CB⇣Ᏹ (1)-X
CB⇣Ᏹ (2)-Y1 CB⇣Ᏹ (2)-Y2CB⇣Ᏹ㧔ࡆ࡯ࡓ2✚ว㧕 CB⇣Ᏹ (2)-X
RESERVED
1
2 3 4 5 6 7 8 9 10 11 12
A
B
C
D
E
F
G
H
Beam (1) Main Power Supply
Shutdown Detection
Beam (1) CB Error Monitor
Beam (2) Main Power Supply
Shutdown Detection
Beam (2) CB Error Moniter
Vacuum Pomp L CB Error
Fan Error
Lighting Surge Protector
Fuse Error
Feeder Base (1) Power Supply
Feeder Base (2) Power Supply
Conveyer L, Cutter CB Error
Transfer R Z Clamp
CPU1 Shutdown Directive
from FA U71
CPU1(CN8)
Backup 1 Limit Sensor (+)
4-19
0710-001B(M858WBL--0005)
8,67/7,/%3:5/
A3
B2
A2
-X0515
10B
CN15
-XB0510
-B0510
+
-
BL
BR
BK
OUT1
:2
:3
:1
OUT2
PK
B3
:4
A5
:1
-X20701
B5
:2
-506
24B1L
-504
-533
24B2L
INT_DI 5
INT_DO 7
INT_DI 3
1
-X0518
CN18
2
4
5
INT_DI 10
INT_DI 16
IO_DO 14
IO_DO 15
A1
B1
-653
-654
6
7
3
8
-511
-517
-740
-741
-653
-654
N.C
GND(10B)
A4,B4
N.C
B10
N.C
B13
N.C
B15
N.C
B10
A13-A15
B13-B15
A3
B2
A2
-X0515
10B
CN16
-XB0510
-B0510
+
-
OUT1
:2
:3
:1
OUT2
B3
:4
-507
24B1R
-505
INT_DI 6
INT_DI 4
A1
B1
-653
-654
N.C
N.C
N.C
A4
:1
-S112
B4
:2
10B
-721
A5
:3
-S112
B5
:4
-737
24B1R
-S112(L)
-H102
GA(L)
IO_DI 11
IO_DO 11
1
-X0517
CN17
2
4
5
INT_DI 9
INT_DI 15
IO_DO 12
IO_DO 13
6
7
3
8
-510
-516
-740
-741
-653
-654
-X10520:6
-X10520:7
N.C
GND(10B)
CN19
A1
-548
B1
-547
A5
10B
A10
24B1L
B5,B10
24B2L
CN20
A1
A6
A5
A10
B5,B10
CN21
A1
-546
A6
-545
A5
10B
A10
24B1L
B5,B10
24B2L
INT_DO 8
INT_DO 9
INT_DO 13
INT_DO 12
INT_DO 10
INT_DO 11
A3
B3
-X10520:1
-X10520:2
-X10520:4
-X10520:5
-X10520:6
-X10520:7
-X10520:1
-X10520:2
-X10520:4
-X10520:5
B7
A7
B6
B2
A2
B1
A2
B1
A1
(-X0523)
CN23
B2
A3
B4
A4
B3
A5
B5
A7
B6
A6
B7
A8
A9,B9
B8
A10
B10
A11
B11
A12
B12
A13
B13
(-X0524)
CN24
8
(-X0525)
CN25
8
CN15-B11
CN15-B12
CN16-B11
CN16-B12
N.C
GND(10B)
24V(B1)
24V(B2)
GND(10B)
24V(B1)
24V(B2)
GND(10B)
24V(B1)
24V(B2)
GND(10B)
GND(10B)
GND(10B)
GND(10B)
24V(B1)
24V(B1)
24V(B1)
24V(B2)
GND(10B)
-X0519
-X0520
-X0521
N.C
N.C
N.C
N.C
N.C
BL
BR
BK
PK
[D-/03/2E]
[D-/11/5D]
[D-/21/5D]
[M-/11/6B]
[M-/21/6B]
[F-/12/5F]
[F-/13/5E]
-U05 I/O PCB
STLT (ILB+PWR)
U07(STLT_IF)
To -X0701:1
To -X0701:2
-U09(1) (STLT CUT R)
To -X0938:1
To -X0939:1
-U09(2) (STLT CUT F)
To -X0938:1
To -X0939:1
-X2507
From -B3102 OUT
From -B3103 OUT
To -B0308
To -B0308
Multi-Functional
Head
OP
:1
M(1)-U25
:2
:4
:5
:6
:7
-X2507
From -B3102 OUT
From -B3103 OUT
To -B0308
To -B0308
:1
M(2)-U25
:2
:4
:5
:6
:7
1
23456789101112
A
B
C
D
E
F
G
H
Pickup Error Component
Detection (1)
Feeder Disengaged Latch
Detection (1)
Input/Output Power Supply ON
Pickup Error Component
Detection (2)
Feeder Disengaged Latch
Detection (2)
Stage Ready SW
Stage Ready SWLED
Beam (1) Emergency Stop Directive
Beam (2) Emergency Stop Directive
Nozzle U/D Interlock (M2)
Head U/D Interlock (M2)
Bad Mark Sensor Sensitivity Selector 1(M2)
Bad Mark Sensor Sensitivity Selector 2
(M2)
OP
OP
Nozzle U/D Interlock (M1)
Head U/D Interlock (M1)
Bad Mark Sensor Sensitivity Selector 1(M1)
Bad Mark Sensor Sensitivity Selector 2
(M1)
OP
OP
[F-/12/5D]
[F-/13/6D]
To -X8203:1
FB-U82 (Motion Control PCB)
CPU2-L
To -X8203:2
To -X8203:22
To -X8203:47
To -X8203:23,48
To -X8303:1
FB-U83 (Motion Control PCB)
CPU2-L
To -X8303:26
To -X8303:22
To -X8303:47
To -X8303:23,48
To -X8203:5
To -X8203:6
To -X8303:29
To -X8303:28
To -X8303:27
To -X8303:4
To -X8303:3
To -X8303:2߳
For Multi-Functional
Head
OP
For Multi-Functional
Head
OP
Head (1) Emergency Stop Directive
Head (2) Emergency Stop Directive
4-20
0710-001-(M858WBL--0006)
8,67/7,/%3:5/
-X506:4
-X506:1
-X506:2
-X506:3
-X506:5
-X506:4
-X506:1
-X506:2
-X506:3
-X506:5
B1611(A1)
B1611(A2)
B1611(B1)
B1611(B2)
-U90 (Motion Ctrl PCB)
CPU2-L
To -X9003:1
To -X9003:26
To -X9003:2
To -X9003:27
To -X9003:3
To -X9003:28
To -X9003:4
To -X9003:29
To -X9003:5
To -X9003:30
To -X9003:6
To -X9003:31
To -X9003:7
To -X9003:32
To -X9003:22
To -X9003:47
To -X9003:23,24,25
To -X9003:48,49,50
CN19
A2
B2
CN20
A2
B2
A3
B3
B6
CN21
B3
A4
B4
B8
B8
A8
B9
(-X0515)
CN15
A9
A10
A12
B11
A11
B12
B8
A8
B9
(-X0515)
CN16
A9
A10
A12
B11
A11
B12
A2
B1
A1
(-X0522)
CN22
B2
A3
B4
A4
B3
A5
B5
A7
B6
A6
B7
A8
B9
A9
B8
A10
B10
(-X0542)
CN42
6
6
GND(10B)
24V(B2)
N.C
24V(B1)
24V(B2)
N.C
A4
B4
A6
B6
A7
B7
A8
B8
A9
(-X0539)
CN39
8
8
A7
B7
A8
(-X0540)
CN40
8
8
A9
B9
(-X0541)
CN41
6
6
(-X0519)
(-X0520)
(-X0521)
1
2
3
4
(-X0526)
CN26
B1
A3
A8
GND(10B)
24V(B1)
CN23-A4
CN23-B4
GND(10B)
24V(B1)
CN23-A8
CN23-B8
B9
B8
A9
B9
A4
B4
-U05 I/O PCB
STLT (ILB+PWR)
1
23456789101112
A
B
C
D
E
F
G
H
To -X8203:3
FB-U82 (Motion Ctrl PCB)
CPU2-L
To -X8203:4
To -X8403:3
To -X8403:4
To -X8403:5
To -X8403:6
To -X8403:27
To -X8303:6
FB-U83 (Motion Ctrl PCB)
CPU2-L
To -X8303:7
To -X8303:8
To -X8303:31
To -X8203:7
To -X8203:8
To -X8203:26
To -X8203:27
To -X8203:28
To -X8203:29
To -X8203:30
To -X8203:31
To -X8203:32
To -X8403:28
To -X8403:29
To -X8403:30
To -X8303:32
To -X8303:33
To -X8403:2
To -X8303:5
To -X8303:30
Multi-Layer Tray (1)
Shuttle Tray (1)
Shuttle Tray (1)
OP
OP
Multi-Functional
Head (1)
OP
Multi-Layer Tray (2)
Shuttle Tray (2)
Shuttle Tray (2)
OP
OP
Multi-Functional
Head (2)
OP
For Multi-Layer Tray
Backup
Backup
Backup
-U19
To
-X1940:1
To
-X1939:1
To
-X1938:1
To
-X1937:1
To -X8203:33
To -X8403:31
To -X8403:32
To -X8403:33
To -X8403:7
To -X8403:8
For Multi-Layer Tray
OP
Backup
[F-/12/5D]