5OM-1434-003_w.pdf - 第55页

1-2 0710-001

100%1 / 151
1-1
⇩䏄೓
⇩䏄೓
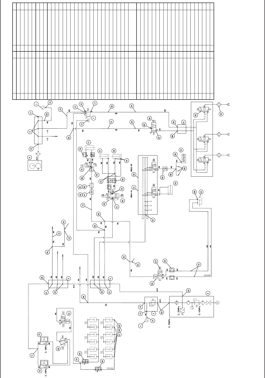
0710-001 X(M858XA---0001)
No. Name Q'ty No. Name Q'ty
1 Vacuum Gauge 1 51 Solenoid Valve Unit 1
2 Combination Unit 1 52 Solenoid Valve Unit 1
3 Regulator 1 53 Cylinder Unit 2
4 Pressure Gauge 1 54 Cylinder 2
5 Manifold 2 55 Needle 2
6 56 Barbed Elbow 2
7 Solenoid Valve 2 57 Elbow Union 2
8 Vacuum Pump 1 58 Union Y 2
9 Quick Universal Joint 3 59 Plug 6
10 Bush 1
11 Plug 1 61 Solenoid Valve Unit 1
12 Straight 3 62 Solenoid Valve Unit 1
13 Half Union 1 63 Solenoid Valve 1
14 Half Union 2 64 Cylinder 1
15 Half Union 4 65 Speed Controller 4
16 Half Union 2 66 Silencer 2
17 Half Union 2 67 Universal T 8
18 Different Union 2 68 Barbed Fitting 22
19 Elbow Union 1 69 Barbed Elbow 6
20 Elbow Union 3 70 Half Nipple 2
21 Reducer Elbow 2 71 Union Y 1
22 Reducer Elbow 1 72 Different Union Y 1
23 Street Elbow 4 73 Pressure Gauge Unit 2
24 Plug 2
25 Reducer 1
26 Union Y 7 76 Solenoid Valve 2
27 77 Cylinder 2
28 78 Speed Controller 4
29 79 Silencer 4
80 Half Union Hexagonal
Head
2
31 Bulkhead Union 2
32 Bulkhead Union 2
33 Straight 2
34 Straight 2
36 Solenoid Valve 2 86 Solenoid Valve 2
37 Cylinder 2 87 Half Union 2
38 Cylinder 2 88 Elbow Union 2
39 Speed Controller 6 89 Elbow Union 2
40 Silencer 4 90 45° Elbow Union 2
41 Universal Elbow 2 91 Rotory Joint 2
42 Universal Elbow 12 92 Solenoid Valve 24
43 Cheese 4 93 Filter 48
94
46 Modular Unit 2
47 Air Contacting Pin 2
Setting
Setting
PCB Z Clamp
PCB Z Clamp
Setting
Setting
Setting
PCB Sttoper
(Front)
Stocker1 U/D
(Housing)
Multi-Layer Tray Feeder
Infet for Pipe Connector
Transfer
(Front) Nozzle Stocker
(Front) Positioning
To Head 2
To Head 1
(Rear) Nozzle Stocker
(Rear) Positioning
Multi-Layer Tray Feeder
Infet for Pipe Connector
(Rear) Feeder Base
(Front) Feeder Base
Feeder Base
Positioning
To Head 2
To Head 1
Vacuum Pump
(Transparebet)
(Transparebet)
Connection Cable
Connection Cable
Shutter 1 Open/Close
Head 1 Nozzle 1
Nozzle 2
Nozzle 12
1-2
0710-001
2-A
0710-001
第二章
传感器及负载配置图
本章节就各部的传感器及负载配置图进行说明。
因含有一定的难度,参考时请充分注意。