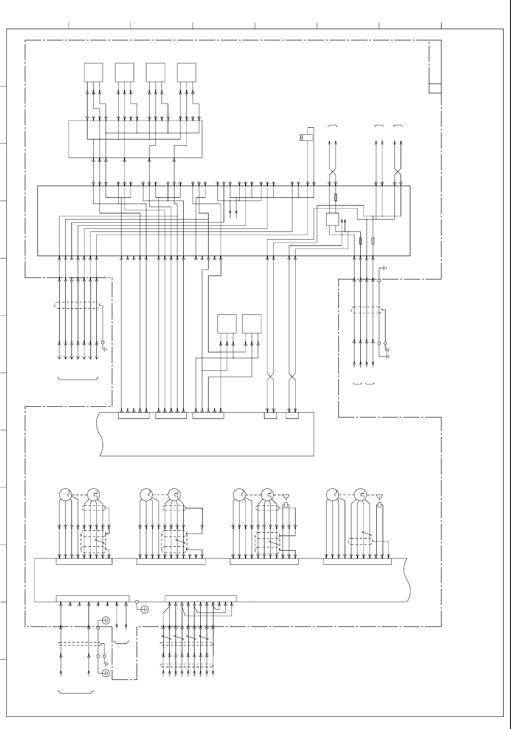
5OM-1434-003_w.pdf - 第122页
4-41 0710-001-(M858WF---0015) &38/ 124 -X0101 -X0501 TX /TX RX /RX /RX RX /TX TX :3 :5 :7 :9 -X20201 -X0901 FG TX /TX RX /RX TX /TX RX /RX :3 :5 :7 :9 :3 :5 :7 :9 :5 :3 :4 :1 :2 GND GND +V SIN B +V SIN A GND +V…

4-40
0710-001-(M858WF---0013)
&38/
FG
50
49
48
47
EMG
COM2
COM2
COM2
33
27
28
29
30
31
32
EXSTP28
EXSTP22
EXSTP23
EXSTP24
EXSTP25
EXSTP26
EXSTP27
EXSTP17
7
25
26
22
23
24
COM1
EXSTP21
EMGCOM
COM1
COM1
EXSTP18
8
EXSTP11
EXSTP13
EXSTP12
EXSTP15
EXSTP16
EXSTP14
4
6
5
2
3
1
124
CN17
-U83
-X8303
FG
/EMG2
/EMG1
/RXD2
18
17
16
1
3
2
6
4
RXD1
RXD2
TXD1
TXD2
GND
EMG1
7
11
12
13
14
GND
/TXD1
/TXD2
/RXD1
EMG2
8
-X8301 -X187C1
:15
:4
:2
:7
:9
:12
:10
:1
:SD
-X187C1
:15
:4
:2
:7
:9
:12
:10
:1
:SD
:B1
:B2
HEAD(1)1 STOP
HEAD(1)3 STOP
-X0521
BA -U05(L)
:A2
HEAD(1)2 STOP
:B6
:B7
HEAD(2)1 STOP
HEAD(2)3 STOP
:A7
HEAD(2)2 STOP
:A1
HEAD(1) STOP
:B5
24B2L
:A6
HEAD(2) STOP
:B10
24B2L
:A5
10B
:A10
24B1L
[M-/11/1C]
[M-/21/1C]
[BL/05/9G]
[BL/05/9G]
[BL/05/9F]
[BL/05/9F]
[BL/05/9F]
Motion Ctrl ID:1
PCI SLOT #2
24B2L
24B2L
24B1L
10B
12345678
A
B
C
D
E
F
*
OP
OP
To M-A31(1)
Relay Connector Panel
Relay Connector Panel
To M-A31(2)
Multi-Functional Head
Multi-Functional Head
I/O Connector
SSC Connector
BA(1)-X187C1
BA(2)-X187C1
Back Plane

4-41
0710-001-(M858WF---0015)
&38/
124
-X0101
-X0501
TX
/TX
RX
/RX
/RX
RX
/TX
TX:3
:5
:7
:9
-X20201
-X0901
FG
TX
/TX
RX
/RX
TX
/TX
RX
/RX
:3
:5
:7
:9
:3
:5
:7
:9
:5
:3
:4
:1
:2
GND
GND
+V
SIN B
+V
SIN A
GND
+V
-X41N1
:1
:2
:3
:4
:5
:6
:7
:8
124
CN18
CN19
-U85
CH1
CN2
CN1
4
2
5
3
CN4
CH2
CN3
24V
1
TdA 24V
COM A
GND
GND
COM B
2
3
4
5
6
7
8
TdB GND
24V
4
2
5
3
4
2
5
3
4
2
5
3
CH1
CN1
40
CN6
CN6
1
2
3
4
5
6
7
8
CH2
CN2
(A-LINK)
(A-LINK)
(AE-LINK)
(AE-LINK)
-X8501
-X8502
-X8503
-X8504
-X8511
1
2
CN3
24B1L
10B
DC24V
-X8513
-U85
24V
TdA 24V
COM A
GND
GND
COM B
TdB GND
24V
HLSC
RS485
[BL/03/5A]
[F-/07/3A]
[D-/21/3A]
[N-/02/8B]
[BL/01/12B]
PCI SLOT #3
PCI SLOT #4
[F-/08/3A]
-U01(R) (STLT PNL)
-X20201(CN1)
GA(R) ch2-2
BA ch1-1
-X0501(CN1)
-U05L (STLT ILB+PWR)
-U09 (STLT CUT)
-X0901(CN1)
DX(2) ch2-1
BL -A41
-X41N1(N1)
-U01(L) (STLT PNL)
-X0101(CN1)
GA(L) ch1-2
12345678
A
B
C
D
E
F
FG
FG
FG
Connector
Case
Connector
Case
Connector
Case
Connector
Case
FG
Back Plane
Connector Case
Connector Case
Connector Case
Connector Case
Connector Case
Connector Case
Satellite
Transmission+
Satellite
Transmission-
Center
Transmission+
Center
Transmission-
Satellite
Transmission+
Satellite
Transmission-
Center
Transmission+
Center
Transmission-
Satellite
Transmission+
Satellite
Transmission-
Center
Transmission+
Center
Transmission-
Satellite
Transmission+
Satellite
Transmission-
Center
Transmission+
Center
Transmission-

4-42
0710-001A(M858WM---0011)
ᅞ㺚༉偁䖓⬊䏄
SSG
SSG
3
M
3
M
SSG
SSG
3
M
3
M
-Y0902
P5
P5G
P5G
P5
<Robot Cable>
<Robot Cable>
Valv e2
Valv e1
:7
:4
:5
:6
INTLK2
INTLK1
:3
:2
:1
-A31
-U25
-X3108
-X3105
-X316C
-X316B
CN5
CN8
P24I
SGI
SGO
P24O
CN6C
LSN4
P24I
OP4
LSP4
SGI
SGI
LSP3
OP3
P24I
LSN3
CN6B
LSN2
P24I
OP2
LSP2
SGI
CN6A
2
1
2
1
3
2
4
5
1
1
3
2
4
5
5
3
4
1
2
-X316A
+
24F
10F
X2
X3
X4
X1
:2
:1
:1
:2
-
:4
:3
-
+
:2
:1
:2
:1
:2
:1
:1
:2
:3
:1
:2
X10
B03
:2
:1
:3
:3
:1
:2
B02
B05
:2
:1
:3
:3
:1
:2
B04
B01
:2
:1
:3
:4
:1
:2
:3
CN6C
:5
:5
CN6B
:3
:2
:1
:4
:4
:1
:2
:3
CN6A
:5
10F
:5
:6
:7
X7
:3
:2
:1
:4
X12
X11
:2
:1
:3
24F
-B3106
L.ON
:1
:2
X14
:1
:2
X13
:2
:1
:3
-X31P1
-A31
-X311A
7
8
2
9
10
3
1
5
P5G
P5
P48G
P48G
P48G
P48M
P48M
P48M
4
CNP1
1
2
3
GND
48V
5
7
6
8
CN1A
6
14
11
/EMG
SD
TD
/TD
/RD
EMG
RD
LG
SD
STRE
EMTRE
-X0517:6
:1
:2
:1
:2
X5
X6
L.ON
-B3103
(+)
(-)
:1
:4
:2
(+)
(-)
:1
:4
:2
10DA
48D3A
-X12501-X231P1
:1
:2
-X0517:7
-X10520
-X2507
-X256A
-X256B
-X256C
-X2505
-X2506
-X2501
-X2510
-X2511
-X2512
-X2513
-X2502
-X2504
-X2503
-X3701
-X0305
-X0517:2
-X0517:1
-X0517:5
-X0517:4
[BL/01/12E]
[M-/11/11F]
-X312D
-X312C
-X312A
-X312B
CNP2D
CNP2C
CNP2B
CNP2A
MRR
SHD
P5G
MR
P5
V
E
U
W
W
U
E
V
P5
MR
P5G
SHD
B2
MRR
B1
MRR
SHD
P5G
MR
P5
V
E
U
W
B1
B2
W
U
E
V
P5
MR
P5G
SHD
MRR
W
GY
BR
W
Y
O
G
R
BK
B2
B1
R
W
BK
G㧛Y
R
BK
Y
BL
BR
R
W
BK
G
O
W
Y
GY
BR
-M31
-M32
-M33
G
BK
W
R
GY
Y
W
O
BK
BK
BR
BK
BK
:9
:10
:2
:8
:5
:3
:6
:7
:1
:2
:7
:8
:1
:5
:6
:12
:4
:11
:2
:7
:8
:1
:5
:11
:6
:12
:3
:9
:4
-X0517:3
[BL/05/9A]
BK
R
BL
BR
BK
BL
BR
BK
<Robot Cable>
-X187C1
:9
:1
:4
:7
:12
:10
:2
:15
:SD
:2
:12
:7
:14
:4
:11
-X8301:1
:17
:FG
[F-/13/6A]
-X12507
:15
:14
:18
:16
:19
:21
:20
:17
:22
:6
:5
:7
:6
:5
:4
:1
:2
:3
-X12507
:1
:2
:6
:5
:3
:1
:2
:4
(+)
(-)
:3
BR
:4
:1
BL
-B3104
-B3105
-B3102
-B3101
W
L.ON
L.ON
D.ON
BR
:4
BK
:2
BL
:1
(+)
(-)
(+)
(-)
:1
:2
:2
:1
(-)
(+)
L.ON
B01
X1
:3
:1
:2
:4
B02
:3
:1
:2
:4
B04
:3
:1
:2
:4
B05
-U147
:4
:4
BR
BK
BL
BR
BK
BL
:4
:3
-X25B1
-X25B4
-X25B5
-X25B2
-X14701
-X147B1
-X147B4
-X147B5
-X147B2
Servo Motor AMP
Power Supply P.C.B HD
DD
-M31
NS
-M32
NL
-M33
HL
-M34
<Robot Cable>
24B1L
10B
24F
10F
:2
:1
:3
:4
-X125X1
:4
:3
-X12501
[BS/01/7D]
[BL/01/12B]
:2
:1
HH-G300(1)
U
DC5V
DC48V
-U25(CN2)
BA-U05
8
7
2
1
3
6
11
12
9
4
4
9
12
11
6
3
1
2
7
8
8
7
2
1
3
6
11
12
9
4
9
10
8
5
3
1
2
6
7
5
5
5
CPU2-L
FB-U83(ID:1)
SSCNET
1
23456789101112
A
B
C
D
E
F
G
H
Control Circuit
Power Supply
Main Circuit
Power Supply
Head U/D (+) Limit
Head U/D (-) Limit
[M-/11/2B]
[M-/12/5D]
[M-/12/5E]
To -U03
To -U37
Air Blowing
X31P1(CNP1)
To -A31
Slip Rings(J1)
LINE SENSOR AMP(CN5)
Nozzle U/D Interlock
Nozzle U/D (-) Limit
Nozzle U/D (+) Limit
Nozzle Selection
Position Detection