KE-2010-Rev10.pdf - 第118页
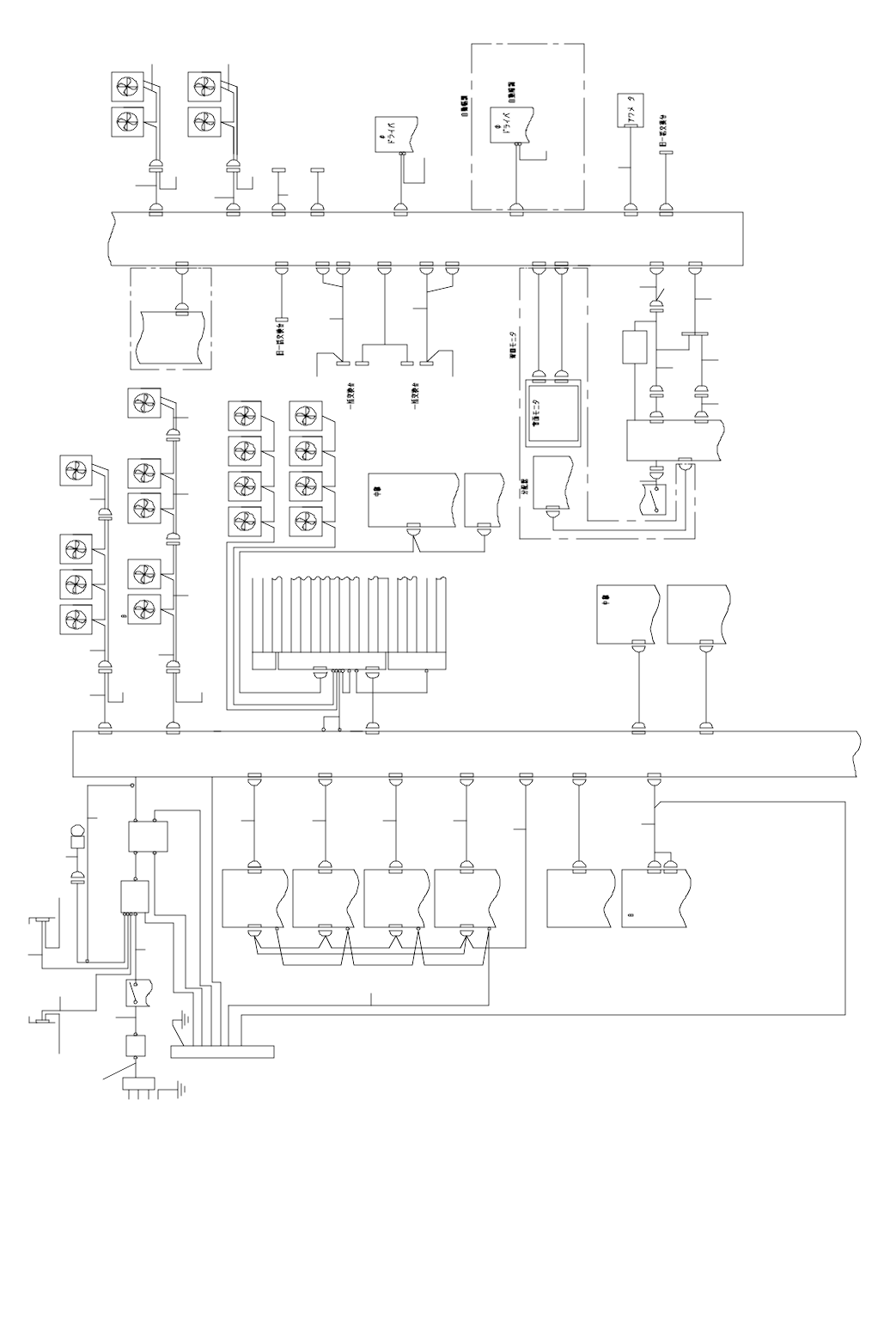
- 11 3 - 6 0 .W IR IN G DI AG RA M (2 ) WIRING DIAGRAM(2) E 9249 U V W TB1 2 NFB A C20 0V I NPU T MA IN SW 1-4 C TB 2 TB3 LF-FG AC I NPU T UNI T TF 1 PW R O N L AMP CN060 TB 2 CN07 MT C P OW ER (R ) TB 2 CN06 MT C P OW E…

- 112 -
NOTE( 注記 ) #01....FOR USE IN JAPAN 日本用
#02....FOR CE CE 用
#03....EXCEPT ZN ZN を除く
#04....FOR ZN ZN 用
REF.NO NOTE PART NO D E S C R I P T I O N
品 名
Qty
1 E9217-729-0A0 HAUR METER ASM.
アワ−メ−タ組
1
2 E9218-729-0A0 BREAKER INPUT CABLE ASM.
ブレ−カ入力ケ−ブル組
1
3
#02
E9218-729-DA0 BREAKER INPUT CABLE ASM.
ブレーカ入力ケーブル組
1
4 E9219-729-0A0 BREAKER OUTPUT CABLE ASM.
ブレ−カ出力ケ−ブル組
1
5 E9220-729-0A0 MAIN SW OUTPUT CABLE ASM.
メイン SW 出力ケ−ブル組
1
6 E9221-729-0A0 PWR ON LIGHT ASM. PWR ON ライト組 1
7 E9222-729-0A0 PWR ON LIGHT RELAY CABLE ASM.
PWR ON ライト中継ケ−ブル組
1
8
#02
E9222-729-DA0 PWR ON LIGHT RELAY CABLE ASM.
PWR ON ライト中継ケーブル組
1
9
#02
E9251-729-DA0 BASE FAN (L) RELAY CABLE ASM.
ベースファン(L)中継ケーブル組
1
10 400-63728 REAR MONITOR POWER CABLE ASM
背面モニタ電源ケーブル組
1
11
#01
E9228-729-0A0 TF1 FG CABLE ASM.
TF 1 FG ケ−ブル組
1
12 E9230-729-0A0 TB2 FG CABLE ASM.
TB 2 FG ケ−ブル組
1
13
#01
E9231-729-0A0 SECONDARY SIDE FG CABLE ASM.
TF 1 二次側 FG ケ−ブル組
1
14
#03
E9228-729-DA0 TF1 FG CABLE ASM.
TFI FG ケーブル組
1
15
#03
E9231-729-DA0 SECONDARY SIDE FG CABLE ASM.
TFI 二次側 FG ケーブル組
1
16 E9223-729-0A0 TG1 FG CABLE ASM.
TB 1 FG ケ−ブル組
1
17 E9232-729-0A0 XL DRV POWER SOURCE CABLE ASM.
XL DRV 電源ケ−ブル組
1
18 E9233-729-0A0 XR DRV POWER SOURCE CABLE ASM.
XR DRV 電源ケ−ブル組
1
19 E9234-729-0A0 YL DRV POWER SOURCE CABLE ASM. YL DRV 電源ケ−ブル組 1
20 E9235-729-0A0 YR DRV POWER SOURCE CABLE ASM.
YR DRV 電源ケ−ブル組
1
21 E9237-729-0A0 AC SERVO +15V CABLE ASM.
AC サ−ボ+15 V ケ−ブル組
1
22 E9238-729-0A0 AC SERVO FG CABLE ASM.
AC サ−ボ FG ケ−ブル組
1
23
#02
E9238-729-DA0 AC SERVO FG CABLE ASM.
AC サーボ FG ケーブル組
1
24 E9244-729-0A0 Z/THETA FAN RELAY CABLE ASM.
Z / θ ファン中継ケ−ブル組
1
25
#02
E9244-729-DA0 Z/THETA FAN RELAY CABLE ASM.
Z 10 ファン中継ケーブル組
1
26 E9245-729-0A0 Z/THETA FAN ASM.
Z / θ ファン組
1
27 E9246-729-0A0 XY FAN ASM.
XY ファン組
1
28 E9247-729-0A0 YL MOTOR FAN ASM.
YL モ−タ ファン組
1
29 E9248-729-0A0 TOP FAN RELAY CABLE ASM.
CTRL ユニツト TOP ファン中継ケ−ブル組
1
30 #02 E9248-729-DA0 TOP FAN RELAY CABLE ASM. CTRL ユニット TOP ファン中継ケーブル組 1
31 E9249-729-0A0 CTRL UNIT TOP FAN ASM.
CTRL ユニツト TOP ファン組
1
32 E9250-729-0A0 YR MOTOR FAN ASM.
YR モ−タ ファン組
1
33 E9251-729-0A0 BASE FAN(L) RELAY CABLE ASM.
ベ−スファン(L)中継ケ−ブル組
1
34 E9252-729-0A0 BASE FAN(L) ASM.
ベ−スファン(L)組
1
35 E9253-729-0A0 BASE FAN(R) RELAY CABLE ASM.
ベ−スファン(R)中継ケ−ブル組
1
36
#02
E9253-729-DA0 BASE FAN(R) RELAY CABLE ASM.
ベースファン(R)中継ケーブル組
1
37 E9254-729-0A0 BASE FAN(R) ASM.
ベ−スファン(R)組
1
38 E9255-729-0A0 BU DRV POWER SOURCE CABLE ASM.
BU DRV 電源ケ−ブル組
1
39 E9256-729-0A0 BU DRV FG CABLE ASM.
BU DRV FG ケ−ブル組
1
40
#02
E9256-729-DA0 BU DRV FG CABLE ASM.
BU DRV FG ケーブル組
1
41 E9261-729-0A0 POWER SOURCE CABLE ASM.
AC サ−ボ DC 電源ケ−ブル組
1
42
#01
E9281-729-0A0 DRV1 POWER SOURCE CABLE ASM.
Z / θ DRV 1電源ケ−ブル組
1
43 E9297-729-0A0 POWER SOURCE CABLE ASM. 画像モニタ電源ケ−ブル組 1
44 E9357-729-0A0 DC RELAY CABLE ASM.
バンク DC 中継ケ−ブル組
1
45
#02
E9298-729-DA0 MTC PWR CABLE (L) ASM.
MTC PWR ケーブル(L)組
1
46
#02
E9299-729-DA0 MTC PWR CABLE (R) ASM.
MTC PWR ケーブル(R)組
1
47 E9298-729-0A0 MTC PWR CABLE (L) ASM.
MTC PWR ケ−ブル(L)組
1
48 E9299-729-0A0 MTC PWR CABLE (R) ASM.
MTC PWR ケ−ブル(R)組
1
49 E9567-729-0A0 POWER SOURCE CABLE ASM.
旧一括交換台電源ケ−ブル組
1
50 E9568-729-0A0 POWER SOURCE CABLE ASM.
旧一括交換台電源ケ−ブル組
1
51
#02
E9359-729-DA0 RELAY CABLE (F) ASM.
カッタ電源(F)中継ケーブル組
1
52
#02
E9361-729-DA0 RELAY CABLE (R) ASM.
カッタ電源(R)中継ケーブル組
1
53 E9382-729-0A0 POWER SOURCE CABLE ASM.
オペパネ電源ケ−ブル組
1
54 E9413-729-0A0 POWER SOURCE CABLE ASM.
CENT モ−タ(L)電源ケ−ブル組
1
55 E9458-729-0A0 CONVEYOR MOTOR AC CABLE ASM.
搬送モ−タ AC ケ−ブル組
1
56 #01 E9359-729-0A0 F RELAY CABLE ASM. カッタ電源(F)中継ケ−ブル組 1
57
#01
E9361-729-0A0 R RELAY CABLE ASM.
カッタ電源(R)中継ケ−ブル組
1
58 E9563-729-0A0 VERFY POWER SOURCE CABLE ASM.
ベリファイ電源ケーブル組
1
59 E9561-729-0A0 POWER SOURCE CABLE ASM.
背面モニタ電源ケーブル組
1
60 E9257-729-0A0 DRV POWER SOURCE CABLE ASM.
自動幅調 DRV 電源ケ−ブル組
1
61 E9258-729-0A0 WIDTH ADJUST DRV FG CABLE ASM.
自動幅調 DRV FG ケ−ブル組
1
62
#04
E9524-729-HA0 DRV POWER SOURCE CABLE ASM.
自動幅調 DRV 電源ケーブル組
1
63
#04
E9258-729-HA0 WIDTH ADJUST DRV FG CABLE ASM.
自動幅調 DRV FG ケーブル組
1
64
#04
E9220-729-DA0 MAIN SW OUTPUT CABLE ASM.
メイン SW 出力ケ−ブル組
1
65 E9537-729-0A0 FG CABLE ASM.
FG 端子台(JE)FG ケーブル組
1
66
#03
E9537-729-DA0 FG CABLE ASM.
FG 端子台(RR)FG ケーブル組
1

- 113 -
60.WIRING DIAGRAM (2)
WIRING DIAGRAM(2)
E9249
U
V
W
TB1
2
NFB
A C20 0V
I NPU T
MA IN
SW
1-4C
TB2
TB3
LF-FG
AC INPU T UNIT
TF1
PW R ON
L AMP
CN060
TB2
CN07
MT C POW ER
(R )
TB 2
CN06
MT C POW ER
(R )
XL
-CN8
XL
DRIVER
CN8
2-2A
XL-CN9
XR
DRIVER
XL
-CN8 XR-CN9
2-2A
CN8 CN9
CN8
2-2A
YL-CN9
YL
DRIVER
YL
-CN8
CN9
YR
DRIVER
YR-CN9
CN9
2-2A
CN8
YR
-CN8
2-3B
CN5
XY-CN5
XY SERV O
DR IVE R CPU
Z1-CN5
Z DRIVER
(1)
3-2A
CN5
CN12
Z1-CN12
CN9
POW ER
UNI T
CN010
CN009
CN003
CN004
CN001
CN002
CN008
CN041
CN042
1-4A
CN035
CN020
CN036
TB 4
TB 5
CN064
TB 2
CN061
CO NT ROL UNIT T OP FAN YR MOTO R FAN
CN065
Z SERVO FA N
CN062
XY SERV O FAN
CO NTR OL UNIT BT M FAN(L )
CN063
YL MOTO R FAN
CO NTR OL UNIT BT M FAN(R )
CN092
VME
TB 2
CN 2
CN 3
TB
CP CI
CN093
IMG -C PU
(8-1C)
LIG HT CT RL (L)
BAS E- FEE DE R
I/O CTRL
SAF ET Y
(8-1A)
(4-1A)
(5-1A)
(6-1A)
MCM R
(3-1D)
MCM L
(3-1C)
VER FY I/ F
(1-4A)
BUS -B RIG E
(2-1A)
XMP O( SUB )
(2-1A)
XMP O( MAI N)
(7-3A)
CPU
XMP
PC B.
CN26
CN126
FD D
PW R
FD D
2-2A
7-4A
O PER AT ION
PCB.
CN601
CN713
CN1
CN13
6-1B
2-4A
CARRY
P CB.
O PT ION (C VS)
VERFY I/F
PCB .
1-3B
8-4A
J5
S9-5
1-2D
POW ER
UNI T
CN052
CN034
CN026
CN028
CN032
CN024
CN030
CN051
CN006
CN007
CN029
CN054
CN016
CN015
CN047
CN013
CN011
CN012
CN304
(5-4C)
TB2
CN505
CN502
(5-3A)
(F)
CN502
CN505
(5-3B)
(R)
TB2
(7-4A)
PS
OP TIO N( )
UPS
TB 2
CN067
25
BA SE FA N( R)
BA SE FA N( L)
TB 2
CN066
V CS MO NIT OR
(8-1D)
CN709
TB 2
CN655
(2-4A)
CE NT MO TOR (L )
DR IVE R
TB2
TB
2-5B
5
B U(L ) DRIVE R
5
2-4C
TB
TB2
OP TIO N(
)
DR IVE R
5
-
CN304
(F )
(5-4B)
CN029
16
3
15
14
20
6789
10
13
27
11
22
26
21
12
29
30
32
24
28
4
1
17
CN037
(SVGA)
VGA
7-4C
LIG HT CT RL (R)
23
18
PS
DC1 2V
CN095
CN095A
CN006
CN096
34
35
33
31
19

- 114 -
NOTE( 注記 ) #01....FOR EN EN 用
REF.NO NOTE PART NO D E S C R I P T I O N
品 名
Qty
1
#01
E9217-729-HA0 HOUR METER ASM.
アワーメータ組
1
2
#01
E9218-729-HA0 BREAKER INPUT CABLE ASM.
ブレーカ入力ケーブル組
1
3
#01
E9219-729-HA0 BRAKER OUTPUT CABLE ASM.
ブレーカ出力ケーブル組
1
4
#01
E9252-729-HA0 BASE FAN (L) ASM.
ベースファン(L)組
1
5
#01
E9254-729-HA0 BASE FAN (R) ASM.
ベースファン(R)組
1
6 #01 E9232-729-HA0 XL DRV POWER SOURCE CABLE ASM. XL DRV 電源ケーブル組 1
7
#01
E9233-729-HA0 XR DRV POWER SOURCE CABLE ASM.
XR DRV 電源ケーブル組
1
8
#01
E9234-729-HA0 YL DRV POWER SOURCE CABLE ASM.
YL DRV 電源ケーブル組
1
9
#01
E9235-729-HA0 YR DRV POWER SOURCE CABLE ASM.
YR DRV 電源ケーブル組
1
10
#01
E9237-729-HA0 AC SERVO +15V CABLE ASM.
AC サーボ+15 V ケーブル組
1
11
#01
E9245-729-HA0 Z/THETA FAN ASM.
Z / θ ファン組
1
12
#01
E9249-729-HA0 CTRL UNIT TOP FAN ASM.
CTRL ユニット TOP ファン組
1
13
#01
E9281-729-DA0 DRV1 POWER SOURCE CABLE ASM.
Z 10 DRV 1電源ケーブル組
1
14
#01
E9298-729-HA0 MTC PWR CABLE (L) ASM.
MTC PWR ケーブル(L)組
1
15
#01
E9299-729-HA0 MTC PWR CABLE (R) ASM.
MTC PWR ケーブル(R)組
1
16
#01
E9220-729-HA0 MAIN SW OUTPUT CABLE ASM.
MAIN SW 出力ケーブル組
1
17
#01
E9221-729-HA0 PWR ON LIGHT ASM.
PWR ON ライト組
1
18
#01
E9222-729-HA0 PWR ON LIGHT RELAY CABLE ASM.
PWR ON ライト中継ケーブル組
1
19
#01
E9226-729-DA0 UPS INPUT CABLE ASM.
UPS 入力ケーブル組
1
20
#01
E9238-729-HA0 AC SERVO FG CABLE ASM.
AC サーボ FG ケーブル組
1
21
#01
E9244-729-HA0 Z/THETA FAN RELAY CABLE ASM.
Z / θ ファン中継ケーブル組
1
22
#01
E9246-729-HA0 XY FAN ASN.
XY ファン組
1
23
#01
E9248-729-HA0 TOP FAN RELAY CABLE ASM.
CTRL ユニット TOP ファン中継ケーブル組
1
24
#01
E9251-729-HA0 BASE FAN (L) RELAY CABLE ASM.
ベースファン(L)中継ケーブル組
1
25
#01
E9253-729-HA0 BASE FAN (R) RELAY CABLE ASM.
ベースファン(R)中継ケーブル組
1
26
#01
E9247-729-HA0 YL MOTOR FAN ASM.
YL モータファン組
1
27
#01
E9250-729-HA0 YR MOTOR FAN ASM.
YR モータファン組
1
28
#01
E9297-729-HA0 POWER SOURCE CABLE ASM.
画像モニタ電源ケーブル組
1
29
#01
E9359-729-HA0 RELAY CABLE (F) ASM.
カッタ電源(F)中継ケーブル組
1
30 #01 E9361-729-HA0 RELAY CABLE (R) ASM. カッタ電源(R)中継ケーブル組 1
31 E9755-729-0A0 UPS SW1 CABLE ASM.
UPS SW 1ケーブル組
1
32 E9756-729-0A0 UPS SW2 CABLE ASM.
UPS SW 2ケーブル組
1
33 E9757-729-0A0 UPS SW3 CABLE ASM.
UPS SW 3ケーブル組
1
34 E9260-729-0A0 UPS SW CABLE ASM.
UPS SW ケーブル組
1
35 E9225-729-0A0 UPS OUTPUT CABLE ASM.
UPS 出力ケ−ブル組
1