JM-100_维修调整要领书.pdf - 第161页
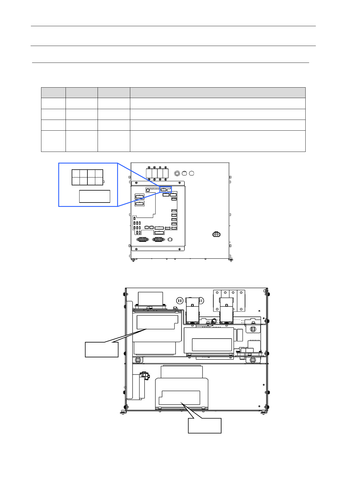
维修调整要领书 11 - 19 11 -2-2-3 DC 电源电压 级别的调整方法 表 11 - 2-2-3-1 . DC 电源电压 级别设定 No. 电源 规格 电源 标记 电源单元 测量端子 1 +48V P S3 PS 3 电压输出端子 +V(+ 48 V) 及 - V(+ 48 VU NRT N ) 2 + 24 V PS 1 CN 2 1 针( + 24 V )及 5 针( + 24 V RT N ) 3 + 24 V PS …

维修调整要领书
11-18
图
11-2-2-2-5 PSU B
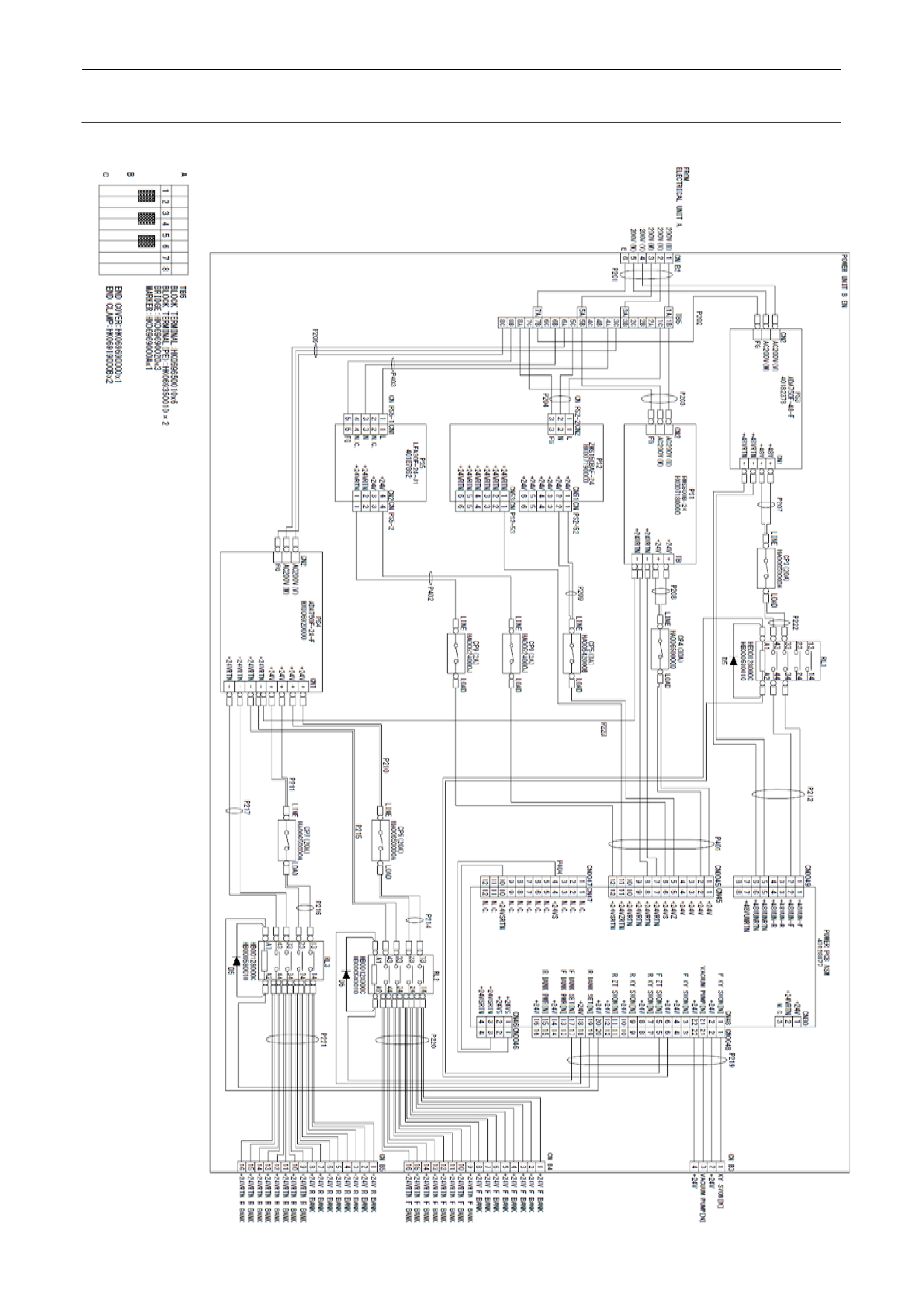
WIRING DIAGRAM [EN]

维修调整要领书
11-19
11-2-2-3 DC
电源电压级别的调整方法
表
11-2-2-3-1
.
DC
电源电压级别设定
No.
电源规格 电源标记 电源单元测量端子
1 +48V PS3
PS3 电压输出端子+V(+48V) 及-V(+48VUNRTN)
2 +24V PS1
CN2 1 针(+24V)及 5 针(+24VRTN)
3 +24V PS2
CN2 2 针(+24VZ)及 6 针(+24VZRTN)
4 +24V PS4
PS4 电压输出端子
+V(+24V FR BANK) 及-V(+24VRTN FR BANK)
图
11-2-2-3-1
监视器接口
CN2
的配置及针脚定义
图
11-2-2-3-2 PS3
和
PS4
的配置
CN2
8 7 6 5
4
3 2 1
PS4
PS3

维修调整要领书
11-20
・ DC 电源输出电压调整,要通过电气装置单元的 CN2 和 PS3, 4 进行。(测量位置参见图 11-2-2-3-1)
・ DC 电源输出电压调整为规定调整值,需要拆下开关电源盖子,
调整各 DC 电源的输出电压可调电阻。
注 1.
调整可调电阻时,电压值不要调整到规定调整值以外。
注 2.
切勿与有调整指示的电源以外的 GND(**RTN)接通。(不要连接)
注意