KE-2030-Rev08.pdf - 第115页
- 110 - 58.MINISIGNAL LIGHT COMPONENTS ミニシグナルライト関係 1 1 2 2 REF.NO NOTE PART NO D E S C R I P T I O N 品 名 Qty 1 E9819-729- 0A0 CABLE ASM. ミニパトケーブル組 2 2 HE-0004200- 00 SIGNAL TOWER シグナルタワー (1)

- 109 -
57.NON-STOP OPERATION COMPONENTS
ノンストップオペレーション関係
1
2
33
6
7 8
6
7 8
4
5
REF.NO NOTE PART NO D E S C R I P T I O N
品 名
Qty
1 E6101-729-00A SWITCH PANEL F(NOS)
スイッチパネル F(NSO)
1
2 E6102-729-00A SWITCH PANEL R3(NOS)
スイッチパネル R 3(NSO)
1
3 E9819-729-0A0 CABLE ASM.
ミニパトケーブル組
2
4 E9817-729-0A0 FEEDER SWITCH F ASM.
フィーダー SW F 組
1
5 E9818-729-0A0 FEEDER SWITCH R ASM.
フィーダー SW R 組
1
6 HA-0029700-00 UP AND DOWN SWITCH
照光 SW
(1)
7 HA-0024300-3A LED
LED
(1)
8 HA-0024300-10 SWITCH COVER
スイッチ カバ−
(1)

- 110 -
58.MINISIGNAL LIGHT COMPONENTS
ミニシグナルライト関係
11
22
REF.NO NOTE PART NO D E S C R I P T I O N
品 名
Qty
1 E9819-729-0A0 CABLE ASM.
ミニパトケーブル組
2
2 HE-0004200-00 SIGNAL TOWER
シグナルタワー
(1)

- 111 -
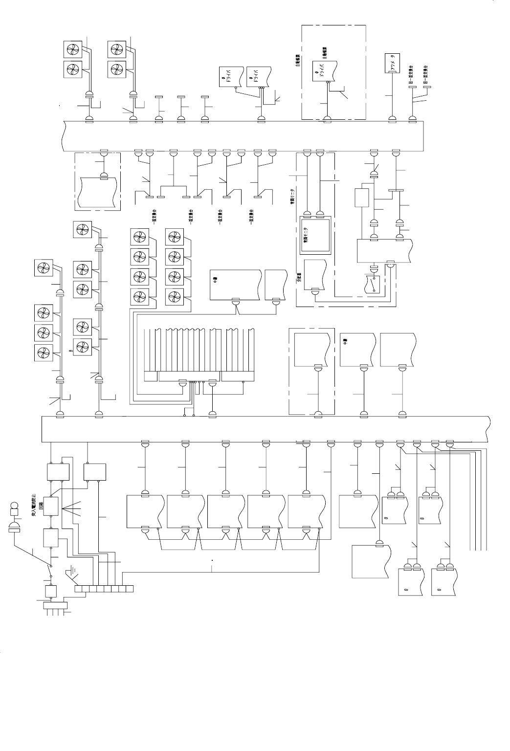
59.WIRING DIAGRAM (1)
WIRING DIAGRAM(1)
2
CN060
XL
-CN8
XL
DRIVER
CN8
2-2A
XL-CN9
XR
DRIVER
XL
-CN8
XR-CN9
2-2A
CN8
CN9
CN8
2-2A
YL-CN9
YL
DRIVER
YL
-CN8
CN9
YR
DRIVER
YR-CN9
CN9
2-2A
CN8
YR
-CN8
2-3B
CN5
XY-CN5
XY SERVO
DRIVER CPU
Z1-CN5
CN5
CN12
Z1-CN12
CN9
POWER
UNIT
CN010
CN009
CN003
CN004
CN001
CN002
CN041
CN046
1-4A
CN035
CN020
CN036
TB4
TB5
CN064
TB2
CN061
CONTROL UNIT TOP FAN YR MOTOR FAN
CN065
Z SERVO FAN
CN062
XY SERVO FAN
CONTROL UNIT BTM FAN(L)
CN063
YL MOTOR FAN
CONTROL UNIT BTM FAN(R)
CN092
VME
TB2
CN2
CN3
TB
CPCI
CN093
IMG-CPU
(8-1C)
LIGHT CTRL(L)
BASE-FEEDER
I/O CTRL
SAFETY
(8-1A)
(4-1A)
(5-1A)
(6-1A)
MCM R
(3-1D)
MCM L
(3-1C)
VERFY I/F
(1-4A)
BUS-BRIGE
(2-1A)
XMPO(SUB)
(2-1A)
XMPO(MAIN)
(7-3A)
CPU
XMP
PCB.
CN26
CN126
FDD
PWR
FDD
2-2A
7-4A
OPERATION
PCB.
CN601
CN713
CN1
CN13
6-1B
2-4A
CARRY
PCB.
OPTION(CVS)
VERFY I/F
PCB.
1-3B
8-4A
J5
S9-5
1-2D
POWER
UNIT
CN052
CN031
CN023
CN028
CN032
CN024
CN051
CN029
CN054
CN016
CN015
CN047
CN013
CN011
CN012
TB2
CN505
CN502
(5-3A)
(FL)
CN502
CN305
(5-3B)
(FR)
TB2
(7-4A)
PS
OPTION( )
CN067
31 32
BASE FAN(R)
BASE FAN(L)
TB2
CN066
VCS MONITOR
(8-1D)
CN709
TB2
CN655
(2-4A)
CENT MOTOR(L)
DRIVER
TB2
TB
2-5B
5
BU(L) DRIVER
5
2-4C
TB
TB2
OPTION(
)
DRIVER
33
-
CN304
(RL)
(5-4B)
CN029
12
10
53
11
3
6
18
19
65
13 14 15 16
37
46 44
28
22
23
24
20
21
25
26
27
49
40
47
42
61
50
29
54
39
30
45 34
36
35
51
52
1
41
5
CN037
(SVGA)
VGA
7-4C
LIGHT CTRL(R)
55
CN505
43
48
TB2
(RL)
(5-3B)
CN026
CN034
62
TB2
CN305
(RR)
(5-3B)
CN026
CN033
(RR)
CENT MOTOR(R)
DRIVER
CN655
63
TB
BU(R) DRIVER
5
CN020
VERFY I/F
PCB.
49
OPTION(CVS)
(4)
Z
DRIVER
(3)
Z
DRIVER
(2)
Z
DRIVER
(1)
Z
DRIVER
TB2
PWR ON LAMP
SW
MAIN
NFB
FG
V
W
U
TF2
TF1
INPUT
AC200V
TB1
LF
TB2
64
4
2-2A
CN9
YC
-CN8
YC-CN9
YC
DRIVER
CN008
CN002
CN8
56
17
Z1-CN5
CN5
CN12
Z1-CN12
Z1-CN5
CN5
Z1-CN12
CN12
CN12
Z1-CN12
CN5
Z1-CN5
CN5
YC-CN5
YC SERVO
DRIVER CPU
57
68
5938
66
67
58 60
69
CN042
CN043
CN044
CN045
9
70
TB2
UPS
CN007
CN006
CN096
72
74
71
73
7
PS
DC12V
8
CN006
CN095A
CN095