KE-2030-Rev08.pdf - 第118页
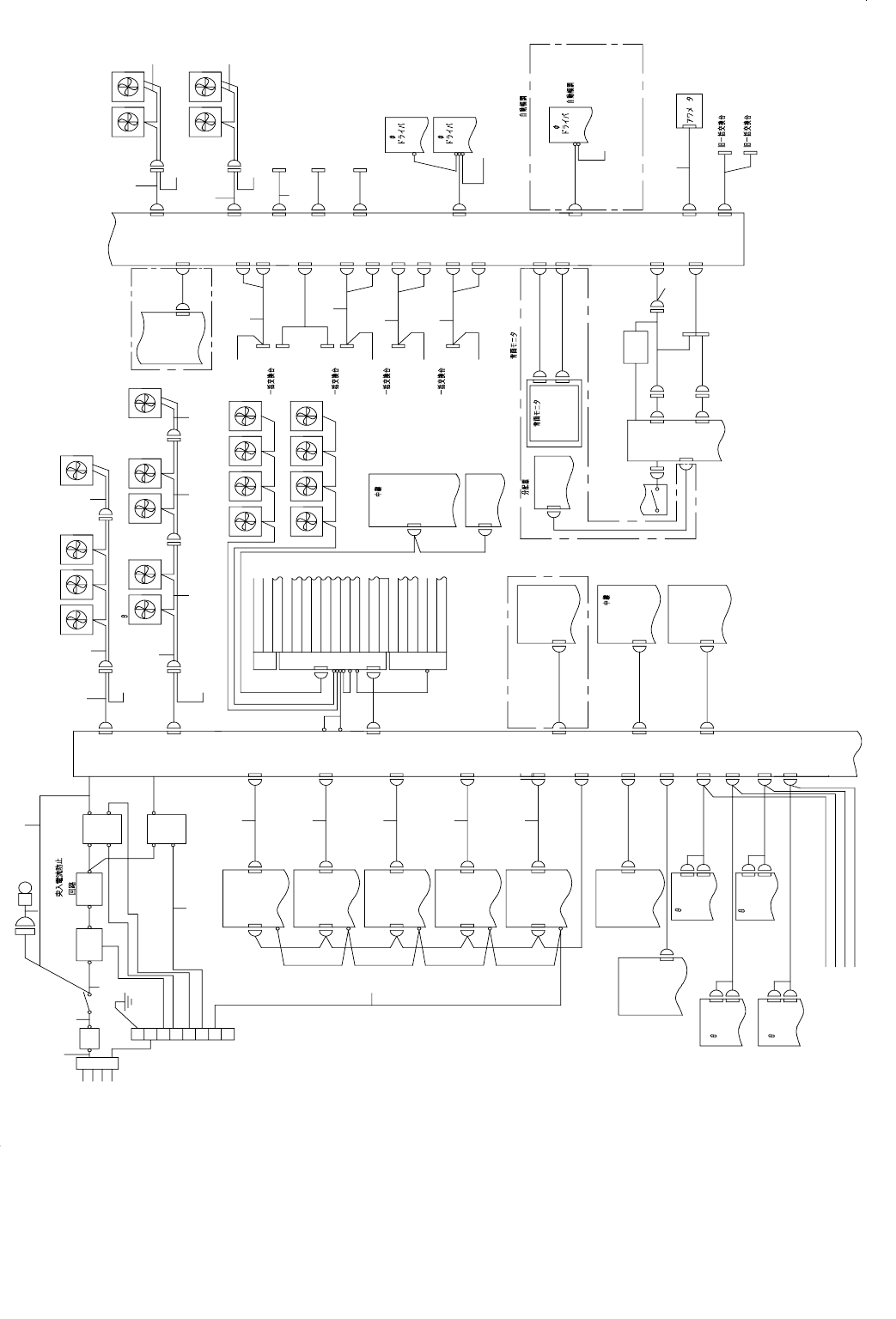
- 113 - 60. WIRING DIAGRAM (2) WIRING DIAGRAM (2) 2 CN060 XL -CN8 XL DRIVER CN8 2-2A XL-CN9 XR DRIVER XL -CN8 XR-CN9 2-2A CN8 CN9 CN8 2-2A YL-CN9 YL DRIVER YL -CN8 CN9 YR DRIVER YR-CN9 CN9 2-2A CN8 YR -CN8 2-3B CN5 XY-CN…

- 112 -
NOTE( 注記 ) #01....FOR USE IN JAPAN 日本用
#02....FOR CE CE 用
REF.NO NOTE PART NO D E S C R I P T I O N
品 名
Qty
1 E9217-729-0A0 HAUR METER ASM.
アワ−メ−タ組
1
2 E9218-729-0A0 BREAKER INPUT CABLE ASM.
ブレ−カ入力ケ−ブル組
1
3 E9219-729-0A0 BREAKER OUTPUT CABLE ASM.
ブレ−カ出力ケ−ブル組
1
4 E9220-729-0A0 MAIN SW OUTPUT CABLE ASM.
メイン SW 出力ケ−ブル組
1
5 E9221-729-0A0 PWR ON LIGHT ASM.
PWR ON ライト組
1
6 E9222-729-0A0 PWR ON LIGHT RELAY CABLE ASM.
PWR ON ライト中継ケ−ブル組
1
7 E9260-729-0A0 UPS SW CABLE ASM.
UPS SW ケーブル組
1
8 E9225-729-0A0 UPS OUTPUT CABLE ASM.
UPS 出力ケ−ブル組
1
9
#01
E9228-729-AA0 TFI FG CABLE ASM.
TFI FG ケーブル組
1
10 E9230-729-0A0 TB2 FG CABLE ASM.
TB 2 FG ケ−ブル組
1
11 E9231-729-0A0 SECONDARY SIDE FG CABLE ASM.
TF 1 二次側 FG ケ−ブル組
1
12 E9223-729-0A0 TG1 FG CABLE ASM.
TB 1 FG ケ−ブル組
1
13 E9232-729-AA0 XL DRV POWER SOURCE CABLE ASM.
XL DRV 電源ケ−ブル組
1
14 E9233-729-AA0 XR DRV POWER SOURCE CABLE ASM.
XR DRV 電源ケ−ブル組
1
15 E9234-729-AA0 YL DRV POWER SOURCE CABLE ASM.
YL DRV 電源ケ−ブル組
1
16 E9235-729-AA0 YR DRV POWER SOURCE CABLE ASM.
YR DRV 電源ケ−ブル組
1
17 E9237-729-AA0 BASE FAN(R) ASM.
ベ−スファン(R)組
1
18 E9238-729-AA0 AC SERVO FG CABLE ASM.
AC サ−ボ FG ケ−ブル組
1
19
#02
E9238-729-EA0 AC SERVO FG CABLE ASM.
AC サーボ FG ケーブル組
1
20 E9244-729-AA0 Z/THETA FAN RELAY CABLE ASM.
Z / θ ファン中継ケ−ブル組
1
21
#02
E9244-729-EA0 Z/THETA FAN RELAY CABLE ASM.
Z 10 ファン中継ケーブル組
1
22 E9245-729-AA0 Z/THETA FAN ASM.
Z / θ ファン組
1
23 E9246-729-AA0 XY FAN ASM.
XY ファン組
1
24 E9247-729-0A0 YL MOTOR FAN ASM.
YL モ−タ ファン組
1
25 E9248-729-AA0 TOP FAN RELAY CABLE ASM.
CTRL ユニット TOP ファン中継ケ−ブル組
1
26
#02
E9248-729-EA0 TOP FAN RELAY CABLE ASM.
CTRL ユニット TOP ファン中継ケーブル組
1
27 E9249-729-0A0 CTRL UNIT TOP FAN ASM.
CTRL ユニット TOP ファン組
1
28 E9250-729-0A0 YR MOTOR FAN ASM.
YR モ−タ ファン組
1
29 E9251-729-AA0 BASE FAN L RELAY CABLE ASM.
ベ−スファン(L)中継ケ−ブル組
1
30 E9252-729-0A0 BASE FAN(L) ASM.
ベ−スファン(L)組
1
31 E9253-729-AA0 BASE FAN R RELAY CABLE ASM.
ベ−スファン(R)中継ケ−ブル組
1
32
#02
E9253-729-EA0 BASE FAN(R) RELAY CABLE ASM.
ベースファン(R)中継ケーブル組
1
33 E9254-729-0A0 BASE FAN(R) ASM.
ベ−スファン(R)組
1
34 E9255-729-AA0 BU DRV POWER SOURCE CABLE ASM.
BU DRV 電源ケ−ブル組
1
35 E9256-729-AA0 BU DRVFG CABLE ASM.
BU DRVFG ケ−ブル組
1
36
#02
E9256-729-EA0 BU DRV FG CABLE ASM.
BU DRV FG ケーブル組
1
37 E9261-729-AA0 POWER SOURCE CABLE ASM.
AC サ−ボ DC 電源ケ−ブル組
1
38
#01
E9281-729-AA0 DRV1 POWER SOURCE CABLE ASM.
Z / θ DRV 1電源ケ−ブル組
1
39 E9297-729-AA0 POWER SOURCE CABLE ASM.
画像モニタ電源ケ−ブル組
1
40 E9357-729-AA0 BANK DC(F) RELAY CABLE A ASM.
バンク DC(F)中継ケ−ブル A 組
1
41 E9358-729-AA0 BANK DC(R) RELAY CABLE A ASM.
バンク DC(R)中継ケ−ブル A 組
1
42
#02
E9359-729-EA0 RELAY CABLE ASM.
カッタ電源(FL)中継ケーブル組
1
43
#02
E9361-729-EA0 RELAY CABLE ASM.
カッタ電源(RL)中継ケーブル組
1
44 E9382-729-AA0 POWER SOURCE CABLE ASM.
オペパネ電源ケ−ブル組
1
45 E9413-729-AA0 POWER SOURCE CABLE ASM.
CENT モ−タ(L)電源ケ−ブル組
1
46 E9458-729-0A0 CONVEYOR MOTOR AC CABLE ASM.
搬送モ−タ AC ケ−ブル組
1
47
#01
E9359-729-AA0 FL RELAY CABLE ASM.
カッタ電源(FL)中継ケ−ブル組
1
48
#01
E9361-729-AA0 RL RELAY CABLE ASM.
カッタ電源(RL)中継ケ−ブル組
1
49 E9563-729-AA0 VERFY POWER SOURCE CABLE ASM.
ベリファイ電源ケーブル組
1
50 E9561-729-0A0 POWER SOURCE CABLE ASM.
背面モニタ 電源ケーブル組
1
51 E9257-729-0A0 DRV POWER SOURCE CABLE ASM.
自動幅調 DRV 電源ケ−ブル組
1
52 E9258-729-0A0 WIDTH ADJUST DRV FG CABLE ASM.
自動幅調 DRV FG ケ−ブル組
1
53 E9230-729-0A0 TB2 FG CABLE ASM.
TB 2 FG ケ−ブル組
1
54
#02
E9251-729-EA0 BASE FAN(L) RELAY CABLE ASM.
ベースファン(L)中継ケーブル組
1
55 E9678-729-000 POWER SOUCE CABLE ASM.
背面モニタ電源ケーブル組
1
56 E9236-729-AA0 YC DRV POWER SOURCE CABLE ASM.
YC DRV 電源ケ−ブル組
1
57 E9262-729-AA0 POWER SOURCE CABLE ASM.
YC サ−ボ DC 電源ケ−ブル組
1
58 E9282-729-AA0 DRV2 POWER SOURCE CABLE ASM.
Z / θ DRV 2電源ケ−ブル組
1
59 E9283-729-AA0 DRV3 POWER SOURCE CABLE ASM.
Z / θ DRV 3電源ケ−ブル組
1
60 E9284-729-AA0 DRV4 POWER SOURCE CABLE ASM.
Z / θDRV 4電源ケ−ブル組
1
61 E9360-729-AA0 FR RELAY CABLE ASM.
カッタ電源(FR)中継ケ−ブル組
1
62 E9362-729-AA0 RR RELAY CABLE ASM.
カッタ電源(RR)中継ケ−ブル組
1
63 E9414-729-AA0 POWER SOURCE CABLE ASM.
CENT モータ(R)電源ケーブル組
1
64 E9224-729-BA0 TF2 INPUT CABLE ASM.
TF 2入力ケーブル組
1
65 E9229-729-AA0 TF2 FG CABLE ASM.
TF 2 FG ケ−ブル組
1
66
#02
E9281-729-EA0 DRV1 POWER SOURCE CABLE ASM.
Z 10 DRV 1電源ケーブル組
1
67
#02
E9282-729-EA0 DRV2 POWER SOURCE CABLE ASM.
Z 10 DRV 2 電源ケーブル組
1
68
#02
E9283-729-EA0 DRV3 POWER SOURCE CABLE ASM.
Z 10 DRV 3 電源ケーブル組
1
69
#02
E9284-729-EA0 DRV4 POWER SOURCE CABLE ASM.
Z 10 DRV 4 電源ケーブル組
1
70 E9224-729-CA0 TF2 INPUT CABLE ASM.
TF 2入力ケーブル組
1
71 E9755-729-0A0 UPS SW1 CABLE ASM.
UPS SW 1ケーブル組
1
72 E9756-729-0A0 UPS SW2 CABLE ASM.
UPS SW 2ケーブル組
1
73 E9757-729-0A0 UPS SW3 CABLE ASM.
UPS SW 3ケーブル組
1
74 E9226-729-DA0 UPS INPUT CABLE ASM.
UPS 入力ケーブル組
1

- 113 -
60.WIRING DIAGRAM (2)
WIRING DIAGRAM(2)
2
CN060
XL
-CN8
XL
DRIVER
CN8
2-2A
XL-CN9
XR
DRIVER
XL
-CN8
XR-CN9
2-2A
CN8
CN9
CN8
2-2A
YL-CN9
YL
DRIVER
YL
-CN8
CN9
YR
DRIVER
YR-CN9
CN9
2-2A
CN8
YR
-CN8
2-3B
CN5
XY-CN5
XY SERVO
DRIVER CPU
Z1-CN5
CN5
CN12
Z1-CN12
CN9
POWER
UNIT
CN010
CN009
CN003
CN004
CN001
CN002
CN041
CN046
1-4A
CN035
CN020
CN036
TB4
TB5
CN064
TB2
CN061
CONTROL UNIT TOP FAN YR MOTOR FAN
CN065
Z SERVO FAN
CN062
XY SERVO FAN
CONTROL UNIT BTM FAN(L)
CN063
YL MOTOR FAN
CONTROL UNIT BTM FAN(R)
CN092
VME
TB2
CN2
CN3
TB
CPCI
CN093
IMG-CPU
(8-1C)
LIGHT CTRL(L)
BASE-FEEDER
I/O CTRL
SAFETY
(8-1A)
(4-1A)
(5-1A)
(6-1A)
MCM R
(3-1D)
MCM L
(3-1C)
VERFY I/F
(1-4A)
BUS-BRIGE
(2-1A)
XMPO(SUB)
(2-1A)
XMPO(MAIN)
(7-3A)
CPU
XMP
PCB.
CN26
CN126
FDD
PWR
FDD
2-2A
7-4A
OPERATION
PCB.
CN601
CN713
CN1
CN13
6-1B
2-4A
CARRY
PCB.
OPTION(CVS)
VERFY I/F
PCB.
1-3B
8-4A
J5
S9-5
1-2D
POWER
UNIT
CN052
CN031
CN023
CN028
CN032
CN024
CN051
CN029
CN054
CN016
CN015
CN047
CN013
CN011
CN012
TB2
CN505
CN502
(5-3A)
(FL)
CN502
CN305
(5-3B)
(FR)
TB2
(7-4A)
PS
OPTION( )
CN067
21
BASE FAN(R)
BASE FAN(L)
TB2
CN066
VCS MONITOR
(8-1D)
CN709
TB2
CN655
(2-4A)
CENT MOTOR(L)
DRIVER
TB2
TB
2-5B
5
BU(L) DRIVER
5
2-4C
TB
TB2
OPTION(
)
DRIVER
5
-
CN304
(RL)
(5-4B)
CN029
3
16
29
6789
23
11
18
22
17
19
12
25
27
20
24
4
1
14
CN037
(SVGA)
VGA
7-4C
LIGHT CTRL(R)
CN505
26
TB2
(RL)
(5-3B)
CN026
CN034
28
TB2
CN305
(RR)
(5-3B)
CN026
CN033
(RR)
CENT MOTOR(R)
DRIVER
CN655
TB
BU(R) DRIVER
5
CN020
VERFY I/F
PCB.
OPTION(CVS)
(4)
Z
DRIVER
(3)
Z
DRIVER
(2)
Z
DRIVER
(1)
Z
DRIVER
TB2
PWR ON LAMP
SW
MAIN
NFB
FG
V
W
U
TF2
TF1
INPUT
AC200V
TB1
LF
TB2
13
2-2A
CN9
YC
-CN8
YC-CN9
YC
DRIVER
CN008
CN002
CN8
10
Z1-CN5
CN5
CN12
Z1-CN12
Z1-CN5
CN5
Z1-CN12
CN12
CN12
Z1-CN12
CN5
Z1-CN5
CN5
YC-CN5
YC SERVO
DRIVER CPU
CN042
CN043
CN044
CN045
15
TB2
UPS
CN007
CN006
CN096
PS
DC12V
CN006
CN095A
CN095

- 114 -
NOTE( 注記 ) #01....FOR EN EN 用
REF.NO NOTE PART NO D E S C R I P T I O N
品 名
Qty
1
#01
E9217-729-HA0 HOUR METER ASM.
アワーメータ組
1
2
#01
E9218-729-HA0 BREAKER INPUT CABLE ASM.
ブレーカ入力ケーブル組
1
3
#01
E9219-729-HA0 BRAKER OUTPUT CABLE ASM.
ブレーカ出力ケーブル組
1
4
#01
E9252-729-HA0 BASE FAN (L) ASM.
ベースファン(L)組
1
5
#01
E9254-729-HA0 BASE FAN (R) ASM.
ベースファン(R)組
1
6
#01
E9232-729-JA0 XL DRV POWER SOURCE CABLE ASM.
XL DRV 電源ケーブル組
1
7
#01
E9233-729-JA0 XR DRV POWER SOURCE CABLE ASM.
XR DRV 電源ケーブル組
1
8
#01
E9234-729-JA0 YL DRV POWER SOURCE CABLE ASM.
YL DRV 電源ケーブル組
1
9
#01
E9235-729-JA0 YR DRV POWER SOURCE CABLE ASM.
YR DRV 電源ケーブル組
1
10
#01
E9237-729-JA0 AC SERVO +15V CABLE ASM.
AC サーボ+15 V ケーブル組
1
11
#01
E9245-729-HA0 Z/THETA FAN ASM.
Z / θ ファン組
1
12
#01
E9249-729-HA0 CTRL UNIT TOP FAN ASM.
CTRL ユニット TOP ファン組
1
13
#01
E9220-729-HA0 MAIN SW OUTPUT CABLE ASM.
メイン SW 出力ケーブル組
1
14
#01
E9221-729-HA0 PWR ON LIGHT ASM.
PWR ON ライト組
1
15
#01
E9222-729-HA0 PWR ON LIGHT RELAY CABLE ASM.
PWR ON ライト中継ケ−ブル組
1
16
#01
E9238-729-JA0 AC SERVO FG CABLE ASM.
AC サーボ FG ケーブル組
1
17
#01
E9244-729-JA0 Z/THETA FAN RELAY CABLE ASM.
Z / θ ファン中継ケ−ブル組
1
18
#01
E9246-729-JA0 XY FAN ASM.
XY ファン組
1
19
#01
E9248-729-JA0 TOP FAN RELAY CABLE ASM.
CTRL ユニット TOP ファン中継ケ−ブル組
1
20
#01
E9251-729-JA0 BASE FAN L RELAY CABLE ASM.
ベースファン(L)中継ケ−ブル組
1
21
#01
E9253-729-JA0 BASE FAN R RELAY CABLE ASM.
ベースファン(R)中継ケ−ブル組
1
22
#01
E9247-729-HA0 YL MOTOR FAN ASM.
YL モータファン組
1
23
#01
E9250-729-HA0 YR MOTOR FAN ASM.
YR モータファン組
1
24
#01
E9297-729-JA0 POWER SOUSRCE CABLE ASM.
画像モニタ電源ケーブル組
1
25
#01
E9359-729-JA0 RELAY CABLE (FL) ASM.
カッタ電源(FL)中継ケ−ブル組
1
26
#01
E9361-729-JA0 RELAY CABLE (RL) ASM.
カッタ電源(RL)中継ケ−ブル組
1
27
#01
E9360-729-JA0 RELAY CABLE (FR) ASM.
カッタ電源(FR)中継ケ−ブル組
1
28
#01
E9362-729-JA0 RELAY CABLE (RR) ASM.
カッタ電源(RR)中継ケ−ブル組
1
29
#01
E9229-729-JA0 TF2 FG CABLE ASM.
TF 2 FG ケーブル組
1