XP242机械手册1.0C.pdf.pdf - 第87页
第 5 部 第 1 章 安置 Edition 1.0 5-1-1 XP-242E 机械手册 T able01S 1. 安置 要点 把水平板放在指定的位置,以确保主 机的水平。 此外,需要根据电路板的搬运高度, 选用适合的水平板。 单位 :mm 电路板搬运高度 900 950 965 水平板的高度 16 60 75 方法 1. 参 考 下图布置水平板。 2. 把 2 个水平 仪装在主机的机座上。 ( 横向和纵向 ) 3. 转动各个水平螺栓…

第 5 部
安装
此部介绍从机器的引进到测试运转开始的准备工作。
1. 安置 ................................... 5-1-1
2. 压缩空气的供应 ......................... 5-2-1
3. 电源供应和变压器的接线 ................. 5-3-1
4. 数据传送电缆的接线(RS-232C) ............ 5-4-1
5. 数据传送电缆的接线(以太网) ............. 5-5-1
6. SMEMA 信号/传送信号连接器的连接 ....... 5-6-1

第 5 部 第 1章 安置
Edition 1.0 5-1-1 XP-242E 机械手册
Table01S
1. 安置
要点
把水平板放在指定的位置,以确保主机的水平。
此外,需要根据电路板的搬运高度,选用适合的水平板。
单位:mm
电路板搬运高度
900 950 965
水平板的高度
16 60 75
方法
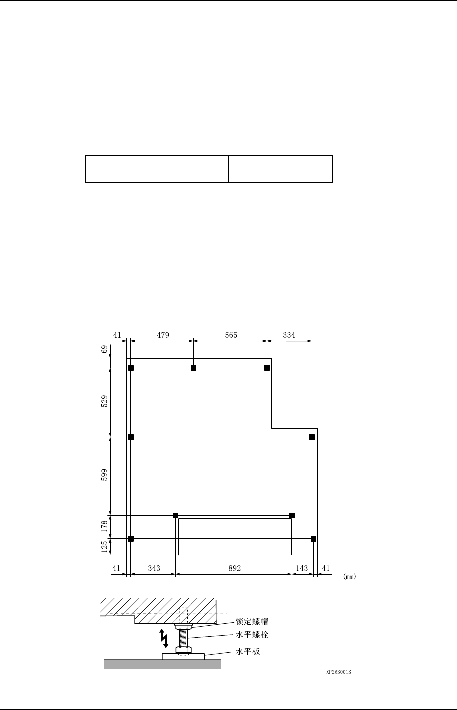
1. 参考下图布置水平板。
2. 把 2 个水平仪装在主机的机座上。(横向和纵向)
3. 转动各个水平螺栓调整高度。
4. 确认电路板的搬运高度、机器的水平度是否正确之后,请把各个锁定螺帽拧紧。

第1章 安置 第 5 部
XP-242E 机械手册 5-1-2 Edition 1.0
笔记: