PTS-AIMEX-02JE.pdf - 第321页
ࡇࡢ࣮࣌ࢪࡣࣈࣛࣥࢡ࣮࣌ࢪ࡛ࡍࠋ This page is intentionally blank. 3 2 1 P TS - A I M E X - 0 2 J E 4CYImM8w 4CYImM8w Downloaded at 2012/11/08 16:01 JST by 3NFD4805 DL#4CYImM8w

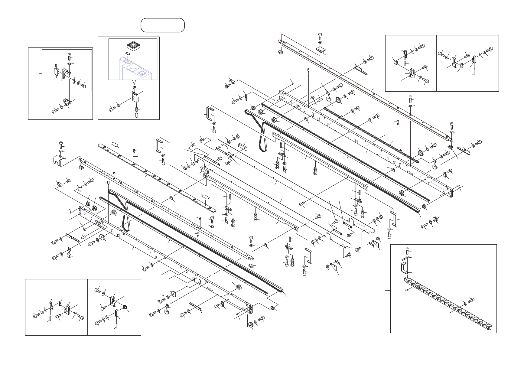
SINGLE CONVEYOR 6/9
(A module) 2UGMCE000110
シングルコンベア 6/9
(B module) 2UGMCE000210
No. Dr
g
.No. & Code No. QTY Descri
p
tion Ratin
g
Materials Remarks
番号 図番 & コード番号 個数 品名
規
格材質 備考
103 H5299A 1 BOLT, HEX SOCKET ボルト 六角穴 M05X012 FE
104 W1023A 1 WASHER, LOCK ワッシャ ス
プ
リン
グ
5M
/
MFE
105 PM0KYN0 1 WASHER ワッシャ FE
113 H4175A 1 BEARING ベアリン
グ
6000ZZCM OT
114 PM0KYR0 1 WASHER ワッシャ FE
115 PZ46960 1 SPROCKET ス
プ
ロケット OT
116 N4026A 2 SCREW, HEX SOCKET SET ネジ 六角穴止め M04X004 クボミサキ FE
117 H5299A 1 BOLT, HEX SOCKET ボルト 六角穴 M05X012 FE
118 W1023A 1 WASHER, LOCK ワッシャ ス
プ
リン
グ
5M
/
MFE
119 PM0KYN0 1 WASHER ワッシャ FE
320
PTS- AI MEX- 02J E
4CYImM8w
4CYImM8w
Downloaded at 2012/11/08 16:01 JST by 3NFD4805 DL#4CYImM8w

ࡇࡢ࣮࣌ࢪࡣࣈࣛࣥࢡ࣮࣌ࢪ࡛ࡍࠋ
This page is intentionally blank.
321
PTS- AI MEX- 02J E
4CYImM8w
4CYImM8w
Downloaded at 2012/11/08 16:01 JST by 3NFD4805 DL#4CYImM8w

BB
CC
BB
AA
AA
CC
DD
DD
EE
EE
FF
FF
GG
GG
OPTION
Auto backup pin function
⮬ືࣂࢵࢡࢵࣉࣆࣥᶵ⬟
㸿㹎㸴㹖㸿
㸮㸮㸮㸮㸮㸮
A module
4
4
2
3
1
5
6
7
8
9
10
11
10
9
44
33
34
31
42
45
46
33
34
31
55
56
57
56
57
59
59
48
55
11
52
53
51
31
33
34
45
46
43
8
44
31
33
34
48
55
56
57
59
59
55
57
56
68
68
96
97
95
58
58
62
63
60
62
63
60
15
15
98
100
99
101
102
58
58
62
63
60
62
63
60
70
71
69
70
71
69
70
71
69
70
71
69
32
32
32
32
80
81
79
86
87
88
89
90
91
92
93
69.1
69.1
69.1
69.1
105
12.2
12.1
12
22
22
36
37
35
36
37
35
39
40
38
39
40
38
22
28
29
22
58
58
77
78
85
118
116
111
112
110
115
28
29
121
122
120
120
121
122
123
125
126
123
125
126
124
124
128
127
129
130
131
129
130
131
128
127
137
135
138
136
136
138
137
135
134
134
133
133
132
132
139
141
142
141
142
140
119
18
19
20
21
21.2
18
21.2
21.1
19
20
18
19
20
19
20
21.1
21.2
21.2
21
4
18
4
12.2
12.1
12
47
47
16
17
17
16
30
16
17
30
25
26
23
23
25
26
23
25
26
49
50
50
14
14
103
104
27
27
27
23.1
23.1
23
25
26
27
23.1
23.1
49
16
77
78
17
16
16
(A module) 2UGMCE000110
ࢩࣥࢢࣝࢥࣥ࣋
6,1*/(&219(<25
322
PTS- AI MEX- 02J E
4CYImM8w
4CYImM8w
Downloaded at 2012/11/08 16:01 JST by 3NFD4805 DL#4CYImM8w