PTS-AIMEX-02JE.pdf - 第355页
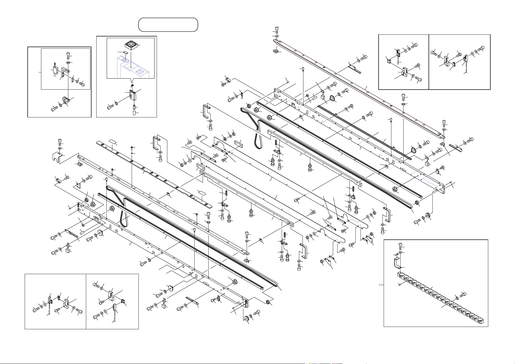
DOUBLE CONVEYOR 7/11 ダブルコンベア 7/11 (A module) 2UGMCF000110 No. Dr g .No. & Code No. QTY Descri p tion Ratin g Materials Remarks 番号 図番 & コード番号 個数 品名 規 格材 質 備 考 1 PM0BBR1 1 PLATE, RETAINING プ レート 押え FE 2 PM0KDA1 10…

BB
CC
BB
AA
AA
A module Lane1
CC
DD
DD
EE
EE
FF
FF
GG
GG
OPTION
Auto backup pin function
⮬ືࣂࢵࢡࢵࣉࣆࣥᶵ⬟
㸿㹎㸴㹖㸿
㸮㸮㸮㸮㸮㸮
4
4
2
3
1
5
6
7
8
9
10
11
10
9
10
9
44
33
34
31
42
45
46
33
34
31
55
56
57
56
57
59
59
48
55
11
52
53
51
31
33
34
45
46
43
8
44
31
33
34
48
55
56
57
59
59
55
57
56
68
68
96
97
95
58
58
62
63
60
62
63
60
15
15
98
100
99
101
102
58
58
62
63
60
62
63
60
70
71
69
70
71
69
70
71
69
70
71
69
32
32
32
32
80
81
79
86
87
88
89
90
91
92
93
69.1
69.1
69.1
69.1
105
12.2
12.1
12
22
22
36
37
35
36
37
35
39
40
38
39
40
38
22
28
29
22
58
58
77
78
85
118
116
111
112
110
115
28
29
121
122
120
120
121
122
123
125
126
123
125
126
124
124
128
127
129
130
131
129
130
131
128
127
137
135
138
136
136
138
137
135
134
134
133
133
132
132
139
141
142
141
142
140
119
18
19
20
21
21.2
18
21.2
21.1
19
20
18
19
20
19
20
21.1
21.2
21.2
21
4
18
4
47
47
16
17
17
16
30
16
17
30
25
26
23
23
25
26
23
25
26
49
50
50
14
14
103
104
27
27
27
23.1
23.1
23
25
26
27
23.1
23.1
49
16
77
78
17
16
16
ࢲࣈࣝࢥࣥ࣋
'28%/(&219(<25
(A module) 2UGMCF000110
354
PTS- AI MEX- 02J E
4CYImM8w
4CYImM8w
Downloaded at 2012/11/08 16:01 JST by 3NFD4805 DL#4CYImM8w

DOUBLE CONVEYOR 7/11
ダブルコンベア 7/11
(A module) 2UGMCF000110
No. Dr
g
.No. & Code No. QTY Descri
p
tion Ratin
g
Materials Remarks
番号 図番 & コード番号 個数 品名
規
格材質 備考
1 PM0BBR1 1 PLATE, RETAINING
プ
レート 押え FE
2 PM0KDA1 10 BOLT ボルト FE
3 PM07KC1 10 COLLAR カラー FE
4 PM23705 4 PIN, REFERENCE ピン 基準 FE
5 PM0CHF5 1 RAIL レール FE
6 H5288A 11 BOLT, HEX SOCKET ボルト 六角穴 M04X010 FE
7 W1011A 11 WASHER, CONICAL ワッシャ 皿 M-4-L FE
8 PT01224 2 GUIDE ガイド FE
9 H5276A 6 BOLT, HEX SOCKET ボルト 六角穴 M03X010 FE
10 W1021A 6 WASHER, LOCK ワッシャ ス
プ
リン
グ
3M
/
MFE
11 PT01213 2 GUIDE ガイド FE
12 PB08GC1 1 BKT, COVER BKT カバー FE
12.1 H5277A 2 BOLT, HEX SOCKET ボルト 六角穴 M03X012 FE
12.2 W1021A 2 WASHER, LOCK ワッシャ ス
プ
リン
グ
3M
/
MFE
14 H3170B 2 PLUNGER, BALL
プ
ランジャ ボール SBP-4 OT
15 PZ14131 2 SEAL シール PL
16 AA9EZ00 6 PULLEY
プ
ーリ OT
17 AA88X02 4 PULLEY
プ
ーリ OT
18 2MGMCF004300 4 BKT, SENSOR BKT センサ FE
19 H5277A 8 BOLT, HEX SOCKET ボルト 六角穴 M03X012 FE
20 W1021A 8 WASHER, LOCK ワッシャ ス
プ
リン
グ
3M
/
MFE
21 2MGMCF004100 2 BKT, SENSOR BKT センサ FE
21.1 2MGMCF004200 2 BKT, SENSOR BKT センサ FE
21.2 K5256E 8 SCREW, HEX SOCKET BUTTON 小ネジ 六角穴ボタン M03X010 FE
22 H2092X 8 PIN, PARALLEL ピン 平行
φ
03X08 A種(m6) OT
23 XS03753 2 SENSOR, FIBER センサ ファイバ OT SET
23.1 PZ37622 4 TUBE チュー
ブ
OT
25 H5275A 8 BOLT, HEX SOCKET ボルト 六角穴 M03X008 FE
26 W1021A 8 WASHER, LOCK ワッシャ ス
プ
リン
グ
3M
/
MFE
27 W1041F 8 WASHER, FLAT ワッシャ 平 3M
/
MX0.5X6 コガタマル(クロゾメ) FE
28 S2025A 4 SHEET シート CTAM1 OT
29 K5172L 4 SCREW, C
/
R TRUSS 小ネジ 十穴トラス M04X006(3カ シロ) FE
30 N10790 2 NUT, SQUARE ナット 四角 M04 P=0.7(3カシロ) FE
31 PM05AC1 4 GUIDE ガイド FE
32 PP02472 4 SPACER スペーサ FE
33 H5277A 4 BOLT, HEX SOCKET ボルト 六角穴 M03X012 FE
34 W1010A 4 WASHER, CONICAL ワッシャ 皿 M-3-L FE
35 2MGMCE009200 2 COVER, WIRING カバー 配線 FE
36 H5274A 4 BOLT, HEX SOCKET ボルト 六角穴 M03X006 FE
37 W1021A 4 WASHER, LOCK ワッシャ ス
プ
リン
グ
3M
/
MFE
38 2MGMCE009300 2 COVER, WIRING カバー 配線 FE
39 H5274A 4 BOLT, HEX SOCKET ボルト 六角穴 M03X006 FE
40 W1021A 4 WASHER, LOCK ワッシャ ス
プ
リン
グ
3M
/
MFE
42 PM0CAH6 1 PLATE
プ
レート FE
43 PM0CAK4 1 PLATE
プ
レート FE
44 2MGMCE014700 2 GUIDE, BELT ガイド ベルト AL
45 H5288A 18 BOLT, HEX SOCKET ボルト 六角穴 M04X010 FE
46 W1011A 18 WASHER, CONICAL ワッシャ 皿 M-4-L FE
47 2MGMCE013400 2 CONVEYOR, BELT コンベア ベルト OT
48 PM059Z4 2 PLATE, GUIDE
プ
レート ガイド FE
49 2MGMCE012000 2 PLATE, CLAMPING
プ
レート クラン
プ
FE
355
PTS- AI MEX- 02J E
4CYImM8w
4CYImM8w
Downloaded at 2012/11/08 16:01 JST by 3NFD4805 DL#4CYImM8w

DOUBLE CONVEYOR 7/11
ダブルコンベア 7/11
(A module) 2UGMCF000110
No. Dr
g
.No. & Code No. QTY Descri
p
tion Ratin
g
Materials Remarks
番号 図番 & コード番号 個数 品名
規
格材質 備考
50 K5255A 12 SCREW, HEX SOCKET BUTTON 小ネジ 六角穴ボタン M03X004 FE
51 PM0CHG7 1 RAIL レール FE
52 H5288A 10 BOLT, HEX SOCKET ボルト 六角穴 M04X010 FE
53 W1011A 10 WASHER, CONICAL ワッシャ 皿 M-4-L FE
55 PM05AD2 4 PLATE
プ
レート FE
56 H5275A 8 BOLT, HEX SOCKET ボルト 六角穴 M03X008 FE
57 W1021A 8 WASHER, LOCK ワッシャ ス
プ
リン
グ
3M
/
MFE
58 H55037 6 BOLT ボルト PSST4-15 FE
59 PZ14451 4 SPRING ス
プ
リン
グ
FE
60 2MGMCE010200 4 HOOK フック FE
62 H5274A 8 BOLT, HEX SOCKET ボルト 六角穴 M03X006 FE
63 W1021A 8 WASHER, LOCK ワッシャ ス
プ
リン
グ
3M
/
MFE
68 2MGKCA006501 2 PIN ピン OT
69 PB90502 4 BKT BKT FE
69.1 PS03132 4 SHEET シート OT
70 H5274A 4 BOLT, HEX SOCKET ボルト 六角穴 M03X006 FE
71 W1021A 4 WASHER, LOCK ワッシャ ス
プ
リン
グ
3M
/
MFE
77 2MGKCA009300 2 BRUSH
ブ
ラシ OT
78 K5358C 4 SCREW, HEX SOCKET COUNTERSUNK 小ネジ 六角穴皿 M03X012 FE
79 PB041L0 1 COVER, WIRING カバー 配線 FE
80 K5255A 2 SCREW, HEX SOCKET BUTTON 小ネジ 六角穴ボタン M03X004 FE
81 W1021A 2 WASHER, LOCK ワッシャ ス
プ
リン
グ
3M
/
MFE
85 2AGMCW000101 1 HOLDER, PIN ホルダ ピン OT
86 AA61S06 1 HOLDER, PIN ホルダ ピン OT
87 H5280A 6 BOLT, HEX SOCKET ボルト 六角穴 M03X020 FE
88 W1010A 6 WASHER, CONICAL ワッシャ 皿 M-3-L FE
89 2MGMCW000100 1 BKT BKT FE
90 H5274A 2 BOLT, HEX SOCKET ボルト 六角穴 M03X006 FE
91 W1021A 2 WASHER, LOCK ワッシャ ス
プ
リン
グ
3M
/
MFE
92 H21924 4 PIN, PARALLEL ピン 平行
φ
02X05 A種(m6) SUS OT
93 PX07532 1 SEAL, BAR CODE シール バーコード PL unit serirl number
95 PM057F1 1 BKT, SENSOR BKT センサ FE
96 H5288A 2 BOLT, HEX SOCKET ボルト 六角穴 M04X010 FE
97 W1011A 2 WASHER, CONICAL ワッシャ 皿 M-4-L FE
98 PM057E1 1 BKT, SENSOR BKT センサ FE
99 PB12715 1 WASHER ワッシャ FE
100 XS01247 1 SENSOR, TOUCH センサ タッチ OT
101 K5257K 2 SCREW, HEX SOCKET BUTTON 小ネジ 六角穴ボタン M04X015 FE
102 W1022A 2 WASHER, LOCK ワッシャ ス
プ
リン
グ
4M
/
MFE
103 H5275A 2 BOLT, HEX SOCKET ボルト 六角穴 M03X008 FE
104 W1010A 2 WASHER, CONICAL ワッシャ 皿 M-3-L FE
105 . 1 SENSOR センサ OT
110 AA86N05 1 JIG 治具 OT
111 H5288A 2 BOLT, HEX SOCKET ボルト 六角穴 M04X010 FE
112 W1011A 2 WASHER, CONICAL ワッシャ 皿 M-4-L FE
115 Y3086W 1 UNION, HALF ユニオン ハーフ KQ2S04-M5 OT
116 AA7SA00 1 TIP チッ
プ
OT
118 GGAJ0403 1 GAUGE ゲージ AL
119 PZ54361 1 TUBE チュー
ブ
OT
120 2MGKCH000400 2 GUIDE, SIDE ガイド サイド FE
121 H5288A 2 BOLT, HEX SOCKET ボルト 六角穴 M04X010 FE
356
PTS- AI MEX- 02J E
4CYImM8w
4CYImM8w
Downloaded at 2012/11/08 16:01 JST by 3NFD4805 DL#4CYImM8w