PTS-AIMEX-02JE.pdf - 第358页
A A A module Lane2 A A F F G G G G F F D D E E D D E E OPTION Auto backup pin function ⮬ືࣂࢵࢡࢵࣉࣆࣥᶵ⬟ 㸿㹎㸴㹖㸿 㸮㸮㸮㸮㸮㸮 51 52 53 8 9 10 11 10 9 10 9 44 33 34 31 42 45 46 33 34 31 55 56 57 56 57 59 59 48 55 11 6 7 5 31 33 34 45 …

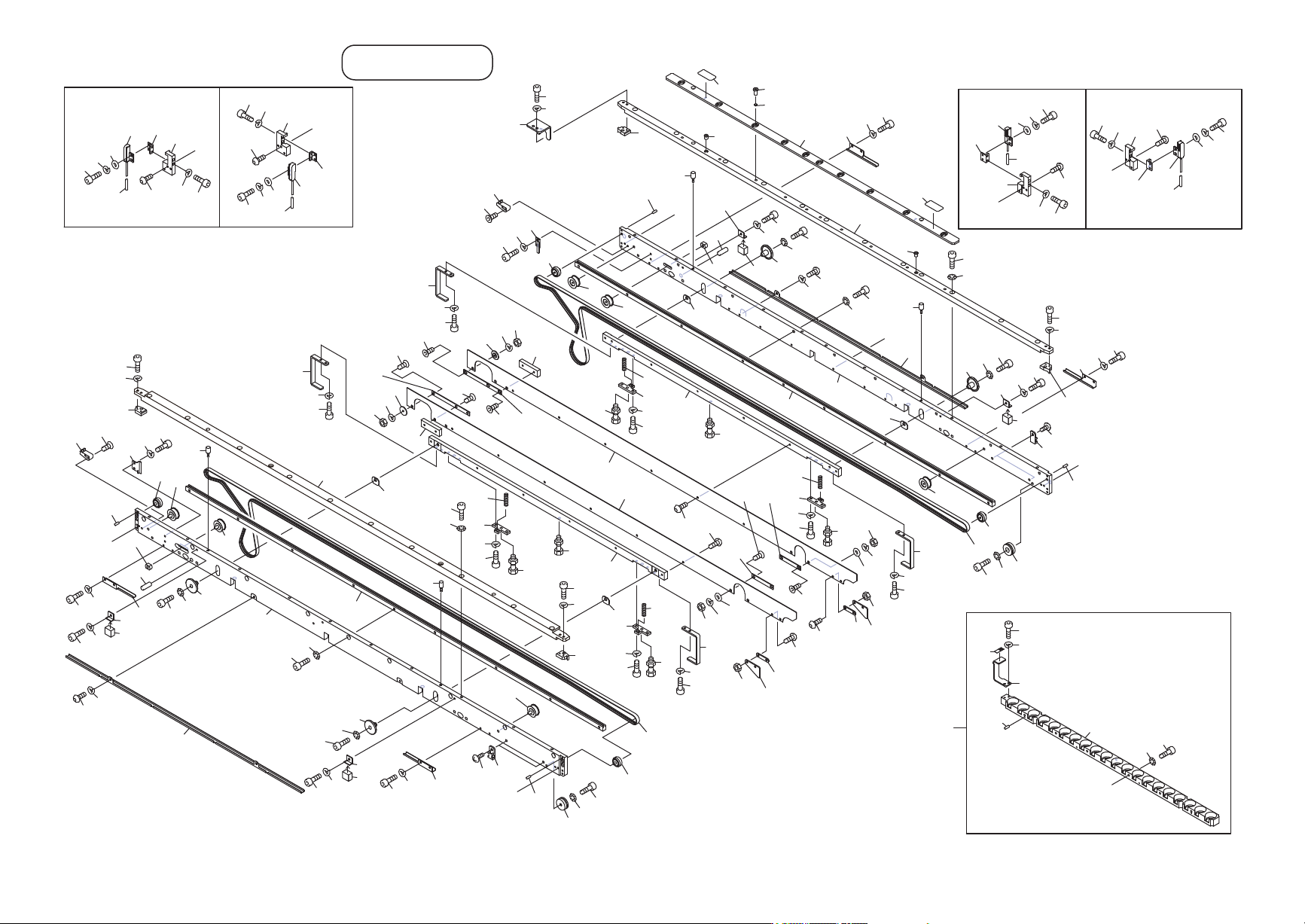
DOUBLE CONVEYOR 7/11
ダブルコンベア 7/11
(A module) 2UGMCF000110
No. Dr
g
.No. & Code No. QTY Descri
p
tion Ratin
g
Materials Remarks
番号 図番 & コード番号 個数 品名
規
格材質 備考
122 W1011A 2 WASHER, CONICAL ワッシャ 皿 M-4-L FE
123 2MGMCE012200 2 PLATE, GUIDE
プ
レート ガイド FE
124 2MGMCE012400 2 SPACER スペーサ FE
125 K5255T 4 SCREW, HEX SOCKET BUTTON 小ネジ 六角穴ボタン M03X006 FE
126 N10795 4 NUT, HEX ナット 六角 M03(3カ クロ) FE
127 2MGMCE012500 2 PLATE, JOINT
プ
レート ジョイント FE
128 K5357M 4 SCREW, HEX SOCKET COUNTERSUNK 小ネジ 六角穴皿 M03X006 FE
129 N10795 4 NUT, HEX ナット 六角 M03(3カ クロ) FE
130 W1021A 4 WASHER, LOCK ワッシャ ス
プ
リン
グ
3M
/
MFE
131 W1040R 4 WASHER, FLAT ワッシャ 平 3M
/
MX0.5X7(1W-3)(3カクロ) FE
132 2MGMCE012600 2 PLATE, JOINT
プ
レート ジョイント FE
133 K5357M 4 SCREW, HEX SOCKET COUNTERSUNK 小ネジ 六角穴皿 M03X006 FE
134 K5357T 2 SCREW, HEX SOCKET COUNTERSUNK 小ネジ 六角穴皿 M03X008 FE
135 2MGMCE013101 2 WEIGHT ウエイト FE
136 2MGMCE013500 2 COLLAR カラー FE
137 N10795 2 NUT, HEX ナット 六角 M03(3カ クロ) FE
138 W1021A 2 WASHER, LOCK ワッシャ ス
プ
リン
グ
3M
/
MFE
139 2MGMCE012701 1 GUIDE ガイド FE
140 2MGMCE012801 1 GUIDE ガイド FE
141 H5274A 4 BOLT, HEX SOCKET ボルト 六角穴 M03X006 FE
142 W1021A 4 WASHER, LOCK ワッシャ ス
プ
リン
グ
3M
/
MFE
357
PTS- AI MEX- 02J E
4CYImM8w
4CYImM8w
Downloaded at 2012/11/08 16:01 JST by 3NFD4805 DL#4CYImM8w

AA
A module Lane2
AA
FF
GG
GG
FF
DD
EE
DD
EE
OPTION
Auto backup pin function
⮬ືࣂࢵࢡࢵࣉࣆࣥᶵ⬟
㸿㹎㸴㹖㸿
㸮㸮㸮㸮㸮㸮
51
52
53
8
9
10
11
10
9
10
9
44
33
34
31
42
45
46
33
34
31
55
56
57
56
57
59
59
48
55
11
6
7
5
31
33
34
45
46
43
44
31
33
34
48
55
56
57
59
59
55
57
56
68
68
58
58
62
63
60
58
58
62
63
60
62
63
60
70
71
69
70
71
69
70
71
69
70
71
69
32
32
32
80
81
79
69.1
69.1
69.1
69.1
22
22
22
36
37
35
36
37
35
39
40
38
39
40
38
22
2
3
1
15
15
12.2
12.1
12
80
81
79
58
58
120
121
122
8
28
29
28
29
121
122
120
62
63
60
123
125
124
128
127
129
130
131
126
137
135
138
136
134
133
132
32
123
125
126
124
129
130
131
128
127
136
138
137
135
134
133
132
77
78
139
141
142
141
142
140
86
87
88
89
90
91
92
93
85
18
19
20
19
20
21.1
21.2
21.2
21
18
19
20
21
21.2
18
21.2
21.1
19
20
4
4
4
18
4
47
47
16
17
17
16
30
16
17
17
16
30
16
14
14
77
78
49
50
50
49
16
23
25
26
27
23
25
26
27
23.1
23.1
25
26
23
23
25
26
27
27
23.1
23.1
ࢲࣈࣝࢥࣥ࣋
'28%/(&219(<25
(A module) 2UGMCF000110
358
PTS- AI MEX- 02J E
4CYImM8w
4CYImM8w
Downloaded at 2012/11/08 16:01 JST by 3NFD4805 DL#4CYImM8w

DOUBLE CONVEYOR 8/11
ダブルコンベア 8/11
(A module) 2UGMCF000110
No. Dr
g
.No. & Code No. QTY Descri
p
tion Ratin
g
Materials Remarks
番号 図番 & コード番号 個数 品名
規
格材質 備考
1 2MGMCE009900 1 PLATE, RETAINING
プ
レート 押え FE
2 PM0KDA1 10 BOLT ボルト FE
3 PM07KC1 10 COLLAR カラー FE
4 PM23705 4 PIN, REFERENCE ピン 基準 FE
5 2MGMCE010002 1 RAIL レール FE
6 H5288A 11 BOLT, HEX SOCKET ボルト 六角穴 M04X010 FE
7 W1011A 11 WASHER, CONICAL ワッシャ 皿 M-4-L FE
8 PT01224 2 GUIDE ガイド FE
9 H5276A 6 BOLT, HEX SOCKET ボルト 六角穴 M03X010 FE
10 W1021A 6 WASHER, LOCK ワッシャ ス
プ
リン
グ
3M
/
MFE
11 PT01213 2 GUIDE ガイド FE
12 PB08GC1 1 BKT, COVER BKT カバー FE
12.1 H5277A 2 BOLT, HEX SOCKET ボルト 六角穴 M03X012 FE
12.2 W1021A 2 WASHER, LOCK ワッシャ ス
プ
リン
グ
3M
/
MFE
14 H3170B 2 PLUNGER, BALL
プ
ランジャ ボール SBP-4 OT
15 PZ14131 2 SEAL シール PL
16 AA9EZ00 6 PULLEY
プ
ーリ OT
17 AA88X02 4 PULLEY
プ
ーリ OT
18 2MGMCF004300 4 BKT, SENSOR BKT センサ FE
19 H5277A 8 BOLT, HEX SOCKET ボルト 六角穴 M03X012 FE
20 W1021A 8 WASHER, LOCK ワッシャ ス
プ
リン
グ
3M
/
MFE
21 2MGMCF004100 2 BKT, SENSOR BKT センサ FE
21.1 2MGMCF004200 2 BKT, SENSOR BKT センサ FE
21.2 K5256E 8 SCREW, HEX SOCKET BUTTON 小ネジ 六角穴ボタン M03X010 FE
22 H2092X 8 PIN, PARALLEL ピン 平行
φ
03X08 A種(m6) OT
23 XS03753 2 SENSOR, FIBER センサ ファイバ OT SET
23.1 PZ37622 4 TUBE チュー
ブ
OT
25 H5275A 8 BOLT, HEX SOCKET ボルト 六角穴 M03X008 FE
26 W1021A 8 WASHER, LOCK ワッシャ ス
プ
リン
グ
3M
/
MFE
27 W1041F 8 WASHER, FLAT ワッシャ 平 3M
/
MX0.5X6 コガタマル(クロゾメ) FE
28 S2025A 4 SHEET シート CTAM1 OT
29 K5172L 4 SCREW, C
/
R TRUSS 小ネジ 十穴トラス M04X006(3カ シロ) FE
30 N10790 2 NUT, SQUARE ナット 四角 M04 P=0.7(3カシロ) FE
31 PM05AC1 4 GUIDE ガイド FE
32 PP02472 4 SPACER スペーサ FE
33 H5277A 4 BOLT, HEX SOCKET ボルト 六角穴 M03X012 FE
34 W1010A 4 WASHER, CONICAL ワッシャ 皿 M-3-L FE
35 2MGMCE009200 2 COVER, WIRING カバー 配線 FE
36 H5274A 4 BOLT, HEX SOCKET ボルト 六角穴 M03X006 FE
37 W1021A 4 WASHER, LOCK ワッシャ ス
プ
リン
グ
3M
/
MFE
38 2MGMCE009300 2 COVER, WIRING カバー 配線 FE
39 H5274A 4 BOLT, HEX SOCKET ボルト 六角穴 M03X006 FE
40 W1021A 4 WASHER, LOCK ワッシャ ス
プ
リン
グ
3M
/
MFE
42 2MGMCE009502 1 PLATE
プ
レート FE
43 2MGMCE009602 1 PLATE
プ
レート FE
44 2MGMCE014700 2 GUIDE, BELT ガイド ベルト AL
45 H5288A 18 BOLT, HEX SOCKET ボルト 六角穴 M04X010 FE
46 W1011A 18 WASHER, CONICAL ワッシャ 皿 M-4-L FE
47 2MGMCF002800 2 CONVEYOR, BELT コンベア ベルト OT
48 PM059Z4 2 PLATE, GUIDE
プ
レート ガイド FE
49 2MGMCE012000 2 PLATE, CLAMPING
プ
レート クラン
プ
FE
359
PTS- AI MEX- 02J E
4CYImM8w
4CYImM8w
Downloaded at 2012/11/08 16:01 JST by 3NFD4805 DL#4CYImM8w