PTS-AIMEX-02JE.pdf - 第362页
B B C C B B A A B module Lane1 C C D D E E F F G G D D E E F F G G A A OPTION Auto backup pin function ⮬ືࣂࢵࢡࢵࣉࣆࣥᶵ⬟ 㸿㹎㸴㹖㸿 㸮㸮㸮㸮㸮㸮 2 3 1 5 6 7 8 9 10 11 10 9 10 9 44 33 34 31 42 45 46 33 34 31 55 56 57 56 57 59 59 48 55 11…

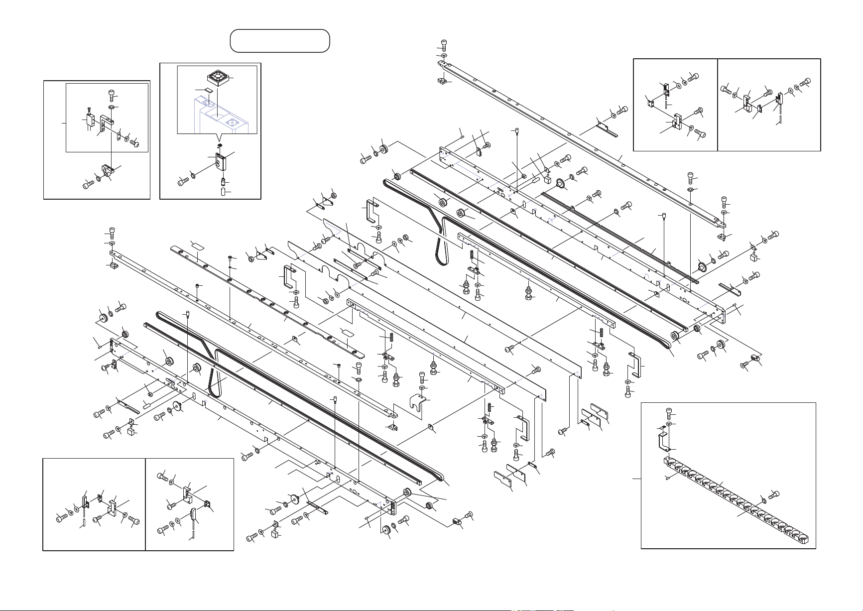
DOUBLE CONVEYOR 8/11
ダブルコンベア 8/11
(A module) 2UGMCF000110
No. Dr
g
.No. & Code No. QTY Descri
p
tion Ratin
g
Materials Remarks
番号 図番 & コード番号 個数 品名
規
格材質 備考
140 2MGMCE012801 1 GUIDE ガイド FE
141 H5274A 4 BOLT, HEX SOCKET ボルト 六角穴 M03X006 FE
142 W1021A 4 WASHER, LOCK ワッシャ ス
プ
リン
グ
3M
/
MFE
361
PTS- AI MEX- 02J E
4CYImM8w
4CYImM8w
Downloaded at 2012/11/08 16:01 JST by 3NFD4805 DL#4CYImM8w

BB
CC
BB
AA
B module Lane1
CC
DD
EE
FF
GG
DD
EE
FF
GG
AA
OPTION
Auto backup pin function
⮬ືࣂࢵࢡࢵࣉࣆࣥᶵ⬟
㸿㹎㸴㹖㸿
㸮㸮㸮㸮㸮㸮
2
3
1
5
6
7
8
9
10
11
10
9
10
9
44
33
34
31
42
45
46
33
34
31
55
56
57
56
57
59
59
48
55
11
52
53
51
31
33
34
45
46
43
8
44
31
33
34
48
55
56
57
59
59
55
57
56
68
68
96
97
95
58
58
62
63
60
62
63
60
15
15
98
100
99
101
102
58
58
62
63
60
62
63
60
70
71
69
70
71
69
70
71
69
69
32
32
32
80
81
79
69.1
69.1
69.1
69.1
105
12.2
12.1
12
22
22
36
37
35
36
37
35
39
40
38
39
40
38
22
58
58
22
118
116
111
112
110
121
122
120
121
122
120
28
29
28
29
70
71
120
121
122
121
122
120
125
123
125
126
124
123
124
126
128
128
127
129
130
131
129
130
131
127
135
132
135
134
133
133
132
134
32
115
119
4
4
4
4
18
19
20
21
21.2
18
21.2
21.1
19
20
18
19
20
19
20
21.1
21.2
21.2
21
86
87
88
89
90
91
92
93
85
18
47
47
16
17
17
16
30
16
17
17
16
30
50
50
14
14
103
104
77
78
16
16
49
49
77
78
25
26
23
23
25
26
27
27
23.1
23.1
23
25
26
27
23
25
26
27
23.1
23.1
ࢲࣈࣝࢥࣥ࣋
'28%/(&219(<25
(B module) 2UGMCF000210
362
PTS- AI MEX- 02J E
4CYImM8w
4CYImM8w
Downloaded at 2012/11/08 16:01 JST by 3NFD4805 DL#4CYImM8w

DOUBLE CONVEYOR 9/11
ダブルコンベア 9/11
(B module) 2UGMCF000210
No. Dr
g
.No. & Code No. QTY Descri
p
tion Ratin
g
Materials Remarks
番号 図番 & コード番号 個数 品名
規
格材質 備考
1 PM0BBR1 1 PLATE, RETAINING
プ
レート 押え FE
2 PM0KDA1 10 BOLT ボルト FE
3 PM07KC1 10 COLLAR カラー FE
4 PM23705 4 PIN, REFERENCE ピン 基準 FE
5 PM0CHL5 1 RAIL レール FE
6 H5288A 11 BOLT, HEX SOCKET ボルト 六角穴 M04X010 FE
7 W1011A 11 WASHER, CONICAL ワッシャ 皿 M-4-L FE
8 PT01224 2 GUIDE ガイド FE
9 H5276A 6 BOLT, HEX SOCKET ボルト 六角穴 M03X010 FE
10 W1021A 6 WASHER, LOCK ワッシャ ス
プ
リン
グ
3M
/
MFE
11 PT01213 2 GUIDE ガイド FE
12 PB08GC1 1 BKT, COVER BKT カバー FE
12.1 H5277A 2 BOLT, HEX SOCKET ボルト 六角穴 M03X012 FE
12.2 W1021A 2 WASHER, LOCK ワッシャ ス
プ
リン
グ
3M
/
MFE
14 H3170B 2 PLUNGER, BALL
プ
ランジャ ボール SBP-4 OT
15 PZ14131 2 SEAL シール PL
16 AA9EZ00 6 PULLEY
プ
ーリ OT
17 AA88X02 4 PULLEY
プ
ーリ OT
18 2MGMCF004300 4 BKT, SENSOR BKT センサ FE
19 H5277A 8 BOLT, HEX SOCKET ボルト 六角穴 M03X012 FE
20 W1021A 8 WASHER, LOCK ワッシャ ス
プ
リン
グ
3M
/
MFE
21 2MGMCF004100 2 BKT, SENSOR BKT センサ FE
21.1 2MGMCF004200 2 BKT, SENSOR BKT センサ FE
21.2 K5256E 8 SCREW, HEX SOCKET BUTTON 小ネジ 六角穴ボタン M03X010 FE
22 H2092X 8 PIN, PARALLEL ピン 平行
φ
03X08 A種(m6) OT
23 XS03753 2 SENSOR, FIBER センサ ファイバ OT SET
23.1 PZ37622 4 TUBE チュー
ブ
OT
25 H5275A 8 BOLT, HEX SOCKET ボルト 六角穴 M03X008 FE
26 W1021A 8 WASHER, LOCK ワッシャ ス
プ
リン
グ
3M
/
MFE
27 W1041F 8 WASHER, FLAT ワッシャ 平 3M
/
MX0.5X6 コガタマル(クロゾメ) FE
28 S2025A 4 SHEET シート CTAM1 OT
29 K5172L 4 SCREW, C
/
R TRUSS 小ネジ 十穴トラス M04X006(3カ シロ) FE
30 N10790 2 NUT, SQUARE ナット 四角 M04 P=0.7(3カシロ) FE
31 PM05AC1 4 GUIDE ガイド FE
32 PP02472 4 SPACER スペーサ FE
33 H5277A 4 BOLT, HEX SOCKET ボルト 六角穴 M03X012 FE
34 W1010A 4 WASHER, CONICAL ワッシャ 皿 M-3-L FE
35 2MGMCE009200 2 COVER, WIRING カバー 配線 FE
36 H5274A 4 BOLT, HEX SOCKET ボルト 六角穴 M03X006 FE
37 W1021A 4 WASHER, LOCK ワッシャ ス
プ
リン
グ
3M
/
MFE
38 2MGMCE009300 2 COVER, WIRING カバー 配線 FE
39 H5274A 4 BOLT, HEX SOCKET ボルト 六角穴 M03X006 FE
40 W1021A 4 WASHER, LOCK ワッシャ ス
プ
リン
グ
3M
/
MFE
42 PM0CBF6 1 PLATE
プ
レート FE
43 PM0CBG5 1 PLATE
プ
レート FE
44 2MGMCE014700 2 GUIDE, BELT ガイド ベルト AL
45 H5288A 18 BOLT, HEX SOCKET ボルト 六角穴 M04X010 FE
46 W1011A 18 WASHER, CONICAL ワッシャ 皿 M-4-L FE
47 2MGMCE013400 2 CONVEYOR, BELT コンベア ベルト OT
48 PM059Z4 2 PLATE, GUIDE
プ
レート ガイド FE
49 2MGMCE012100 2 PLATE, CLAMPING
プ
レート クラン
プ
FE
363
PTS- AI MEX- 02J E
4CYImM8w
4CYImM8w
Downloaded at 2012/11/08 16:01 JST by 3NFD4805 DL#4CYImM8w