SP60P-L操作手册.pdf - 第13页
SP 80/SP 60 参考手册 1.4 对应基板规格 Page 1-13 1.4 对应基板规格 对应基板规格 对应基板规格 对应基板规格 项目 规格 基板尺寸 (mm) 基板尺寸 M 尺寸 最小 : 50 (L) × 50 (W ) 最大 : 330 ( L) × 250 (W ) L 尺寸 最小 : 50 (L) × 50 (W ) 最大 : 510 ( L) × 460 (W ) 基板厚度 0.5 ≤ T ≤ 4.0 4Z4C-0…

SP80/SP60
参考手册
1.3 装置的规格
Page 1-12
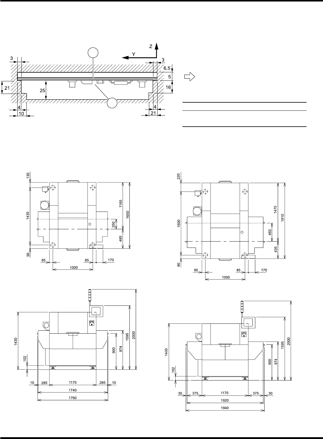
1.3.2
静区
静区静区
静区
∗
当为生产线规格时数值有所不同。
固定侧
1.3.3
外形尺寸
外形尺寸外形尺寸
外形尺寸
∗
当为生产线规格时数值有所不同。
SP80V-M/MU, SP60P-M / MU SP80V-L, SP60V-L
1D3C-007E
1D3C-008E
(单位: mm)
名称
c
基板
d
搬送时的空区
1E3C-C-RMA01-A02-00
1D3C-901E
1
2

SP80/SP60
参考手册
1.4 对应基板规格
Page 1-13
1.4
对应基板规格
对应基板规格对应基板规格
对应基板规格
项目 规格
基板尺寸 (mm)
基板尺寸
M 尺寸
最小: 50 (L)
×
50 (W)
最大: 330 (L)
×
250 (W)
L 尺寸
最小: 50 (L)
×
50 (W)
最大: 510 (L)
×
460 (W)
基板厚度
0.5
≤
T
≤
4.0
4Z4C-005C
基板弯曲容许范围
±
1.0 mm 以内
弯曲量
1B4C-003E
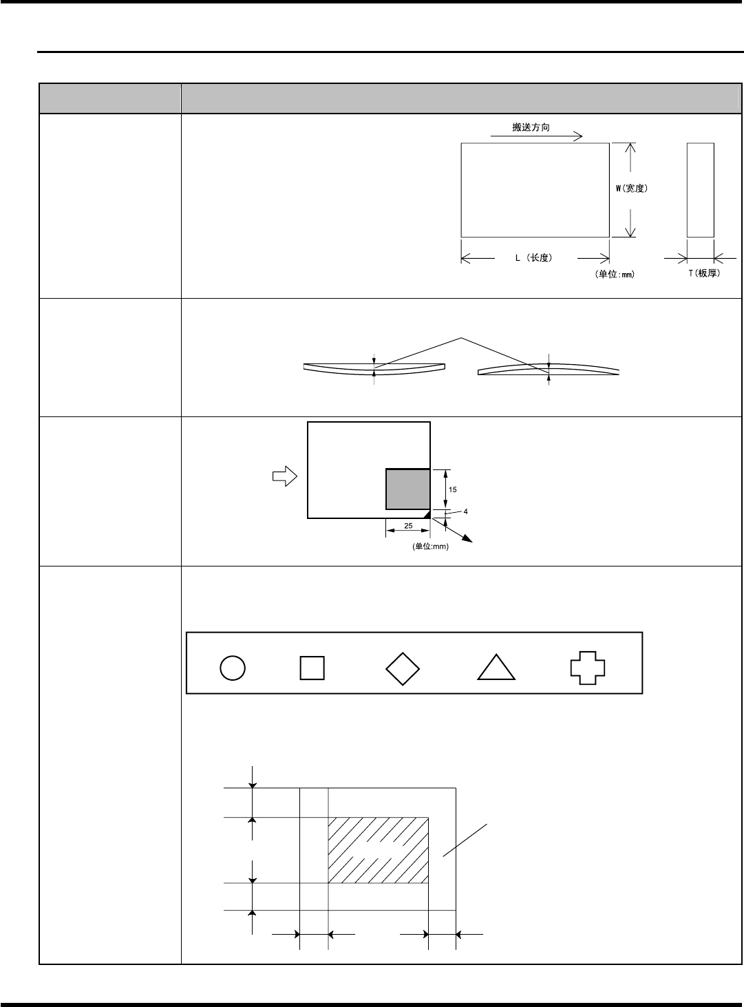
基板断面
基板切口范围
基板流向
1D3C-902C
标准
超过规定的切口时,请与本公司联系。
标记形状示例
基板识别补正按照识别标记和回路图案的位置关系进行补正。
识别标记和基板需要一定的对比度 (二进制对比度图像)
12 3 4 5
443C-226E
标记尺寸和背景
在标记背景上,要有一定尺寸以上的与该标记不同的不干涉区域
基板识别标记
Mark
a
a
aa
4Z4C-014E
不干涉区域
a
≥
0.2 mm
∗
标记不一定为黑色。
1E3C-C-RMA01-A02-00

SP80/SP60
参考手册
1.5 网板框重组步骤
Page 1-14
1.
1.5
网板框重组步骤
网板框重组步骤网板框重组步骤
网板框重组步骤
1.5.1
丝网
丝网丝网
丝网网
网网
网板
板板
板规格
规格规格
规格
SP80V-M/MU, SP60P-M/MU: M
尺寸机器
(
标准规格
:
流向为左
→
右,前侧基准
)
丝网网板
种类
丝网网板
尺寸
对应的最大
基板尺寸
制版基准
(Y 方向)
制版基准
(X 方向)
650 mm
×
550 mm (横向长度) 中心
550 mm
×
650 mm (纵向长度) 前侧
M 尺寸框
600 mm
×
550 mm (横向长度)
330 mm
×
250 mm
(M 尺寸)
后侧 (选项)
29 英寸框
(L 尺寸基准)
仅中心
中心
前侧
29 英寸框
(D 尺寸基准)
后侧 (选项)
29 英寸框
(DEK 基准)
仅中心
29 英寸框
(MPM 基准)
736 mm
×
736 mm
最大为 330 mm
×
250 mm
(M 尺寸)
仅中心
全部为
中心
∗
任何一个丝网网板所对应的最小基板尺寸都是 50 mm
×
50 mm。
∗
上表所示以外的丝网网板为特殊对应,如需要请与本公司联络。
∗
上表未记载的制版基准 (例: X 方向端面基准) 等,请另行与本公司联络。
∗
变更丝网网板框尺寸时,有必要变更网板数据和重组通用的网板支座。
∗
网板框架的最大厚度为 40 mm。
∗
网板的制版基准建议 X, Y 方向都采用中心基准。这样容易得到良好的印刷状态。
∗
请注意模板的尺寸。请将 Y 方向的网板粘贴用的银标签贴到基板尺寸
+
单侧 75 mm 的范围之外。
(75 mm 以内有银标签会影响印刷品质,根据不同的刮板种类有必要对印刷范围进行补正。)
∗
对于以后侧为基准规格的机器,制版基准的前侧基准是选购件。
1E3C-C-RMA01-A03-00