VM102_z_20230721.pdf.pdf - 第108页
VM 102 20 23.0 721 - 102 - ■ 调整螺 栓的配 置图 ( 单位 : mm) 前 侧 AIR 0.5 MPa ~ 0.8 MPa コンベヤー基準面 電源 1 080 1 318 90 90 1 058 860.5 265 335 1 081 1 680 819.5 基板传送基准 1 498 220 220 电源

VM102 2023.0721
- 101 -
(
单位
: mm)
Remarks
• 上述示图的缩小比例与实际机器在严格上讲,并不完全一致。
在研讨生产线构成和尺寸时,请另行索取资料。
• 本机下部如有设置通风道等时,请确保与主体间空隙保持 40 mm 以上。
编带供料器规格
(固定供给部
x2
)
前 侧
卷盘支架
卷盘支架
卷盘支架
1 055
954
1 004
基板传送基准
300
1 958
2 258
954
1 304
编带供料器规格
(交换台车
x2
)
前 侧
卷盘支架
交换台车
1 055
954
1 004
基板传送基准
300
1 958
2 352
1 048
1 304
交换台车
94

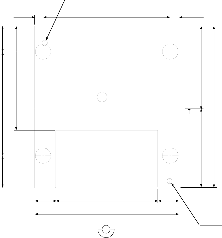
VM102 2023.0721
- 102 -
■
调整螺栓的配置图
(
单位
: mm)
前 侧
AIR
0.5 MPa ~ 0.8 MPa
コンベヤー基準面
電源
1 080
1 318
90
90
1 058
860.5
265
335
1 081
1 680
819.5
基板传送基准
1 498
220
220
电源

VM102 2023.0721
- 103 -
■
托盘供料器的外形尺寸
(
单体
)
※1 托盘供料器高度 896 mm,是 VM102 的基板搬送高度是 900 mm 时的标准值。
可调整范围是: 896 mm。
※2 330 × 250 mm 尺寸的基板中心
382
(
从基板中心
※
2
)
基板中心
※
2
+65
-16.5
896
※
1
1 052
985
437
873
828
480