VM102_z_20230721.pdf.pdf - 第110页
VM 102 20 23.0 721 - 104 - 【 前侧 】 卷盘支架+ 托盘供料器安装 时,必须的最 小限空间。 设置机器时请必须确保 以下的空间。 ( 单位 : mm) Remarks • 托盘供料器设置范围的 地面倾斜,需 要托盘供料器 的左右方向在 6 mm 以内,前后方向在 11 mm 以内。 地面倾斜度超过此范围 时,则不能进 行托盘供料器 的连接。 3 594 815 1 571 2 023 668 1 …

VM102 2023.0721
- 103 -
■
托盘供料器的外形尺寸
(
单体
)
※1 托盘供料器高度 896 mm,是 VM102 的基板搬送高度是 900 mm 时的标准值。
可调整范围是: 896 mm。
※2 330 × 250 mm 尺寸的基板中心
382
(
从基板中心
※
2
)
基板中心
※
2
+65
-16.5
896
※
1
1 052
985
437
873
828
480

VM102 2023.0721
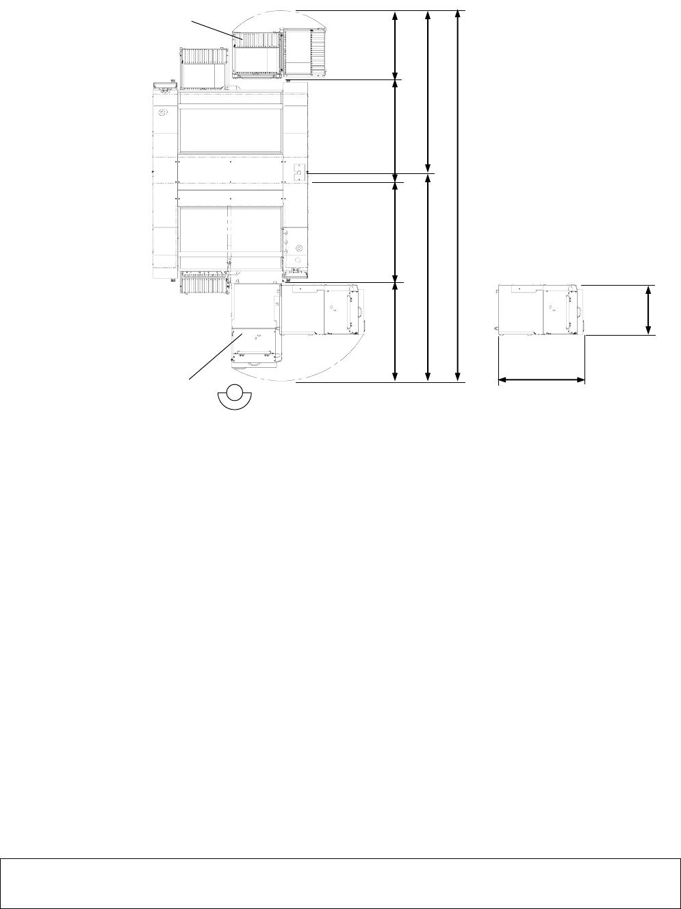
- 104 -
【前侧】卷盘支架+托盘供料器安装时,必须的最小限空间。
设置机器时请必须确保以下的空间。
(
单位
: mm)
Remarks
•
托盘供料器设置范围的地面倾斜,需要托盘供料器的左右方向在
6 mm
以内,前后方向在
11 mm
以内。
地面倾斜度超过此范围时,则不能进行托盘供料器的连接。
3 594
815
1 571
2 023
668
1 004
968
卷盘支架
托盘供料器
483
前 侧
954

VM102 2023.0721
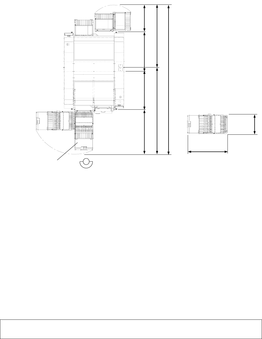
- 105 -
【前侧】交换台车+托盘供料器安装时,必须的最小限空间。
在维护作业时有时会卸下托盘供料器,所以设置机器时请必须确保以下的空间。
(
单位
: mm)
Remarks
•
交换台车设置范围的地面倾斜,需要台车的左右方向在
6 mm
以内,前后方向在
11 mm
以内。
地面倾斜度超过此范围时,不可搬移交换台车。
前 侧
2 182
1 127
3 753
1 571
954
1 004
668
1002
460
交换台车