VM102_z_20230721.pdf.pdf - 第64页
VM 102 20 23.0 721 - 58 - 项 目 规 格 基板缺口条件 基板缺口尺寸必需满足 以下 2 个条件。 条件 A 基板缺口尺寸必需满足以下 条件。 L L1 50 mm ≦ L ≦ 330 mm L/4 或者 100 mm 的较小的一个 W W1 50 mm ≦ W ≦ 250 mm W/3 或者 30 mm 的较小的一个 ※ 以上是在基板厚度为 1.6 mm 以上时的情 况。 基板厚度 1.6 m m 未满 时,请…

VM102 2023.0721
- 57 -
7.
印刷基板设计基准
7.1
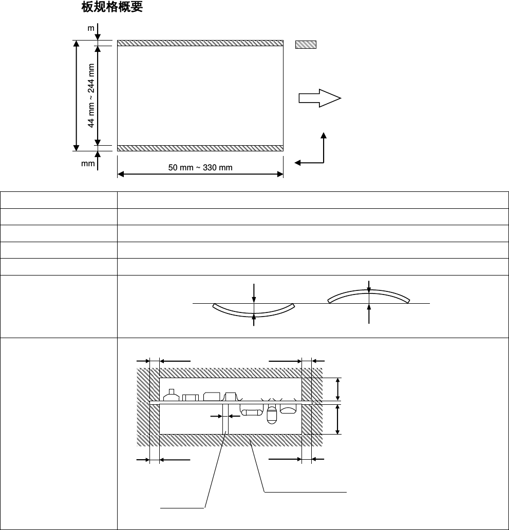
印刷基板规格概要
项 目
长型规格传送带
基板尺寸
50 × 50 mm ~ 330 × 250 mm
贴装/检查可能范围
50 × 44 mm ~ 330 × 244 mm
基板厚度
0.3 mm ~ 8.0 mm
基板重量
1.5 kg 以下
※
1
基板弯曲容许
基板断面
贴装前基板状态
※1 基板重量(包括载体重量)超过 1.5 kg 的情况时,请另行联络。
※2 使用支撑销自动更换功能的情况时,支撑销形状、销的配置条件等有异。
详细请参阅「9. 选购件: 支撑销的自动更换」。
※ 有关陶瓷基板的对应请另行联络。
※ 基板的颜色为透明,半透明,磨砂黑等时,可能不会被正常传送。
如需生产上述颜色的基板,请提前进行商谈。
Max. 0.5 mm
Max. 0.5 mm
禁止有元件的范围
支撑销
※
2
(
设置在与反面元件距离隔开
2 mm
以上的位置。
)
28 mm
3 mm
3 mm
3 mm
φ
3
3 mm
Y
X
固定侧
禁止有元件的范围
3 mm
50 mm ~ 330 mm
3 mm
50 mm ~ 250 mm
44 mm ~ 244 mm
流向
28 mm

VM102 2023.0721
- 58 -
项 目
规 格
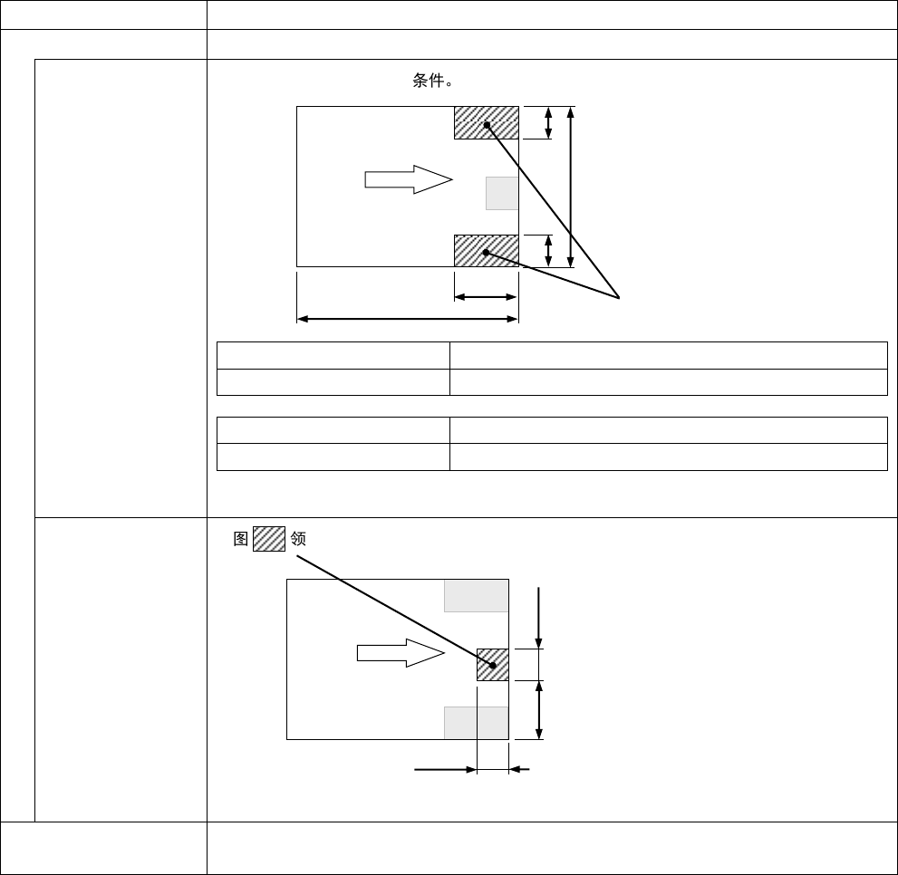
基板缺口条件
基板缺口尺寸必需满足以下 2 个条件。
条件 A
基板缺口尺寸必需满足以下条件。
L
L1
50 mm ≦ L ≦ 330 mm
L/4 或者 100 mm 的较小的一个
W
W1
50 mm ≦ W ≦ 250 mm
W/3 或者 30 mm 的较小的一个
※ 以上是在基板厚度为 1.6 mm 以上时的情况。
基板厚度 1.6 mm 未满时,请另行商洽。
条件 B
下图 领域内必须保证没有缺口(包括缝隙)。
※ 上图领域内如果有缺口(包括缝隙)时,请另行商洽。
基板端面的元件伸出条
件
请另行商洽。
L1
L
W1
W1
W
只限任意一处
流向
A
A
10 mm
30 mm
10 mm
基准轨道侧
流向
B

VM102 2023.0721
- 59 -
7.2
识别标记
基板识别标记,需要基板的 2 个对角位置。
■ 基板识别标记规格
标准标记形状和尺寸
标记形状
尺 寸
○
φ0.5 mm ~ φ1.6 mm
△(正三角形)
一边长度是 0.5 mm ~ 1.6 mm
□
纵横 0.5 mm ~ 1.6 mm
纵横 0.5 mm ~ 1.6 mm
所谓尺寸的纵横,指标记所外接的四角形的尺寸
标记材质和
电路图形
基板识别补正,根据与标记和电路图形(导电体图形)的位置关系而定。
因此,对补正精度来讲,标记必须与电路图形的工程材质相同。
标记材质和
基板质地的画像条件
基本上,标记识别依靠照明的反射光强度来进行,因此标记材质和基板质地需要具有一
定的对比度。
此反差,会因电镀状态,氧化状态,表面高度,偏差,镜面性,保护物质,干扰光大变
化,需要评价对象标记。
标记尺寸和背景
标记的背景,需要与标记所相异的一定尺寸以上的不干涉区域。
不干涉区域
a
≧
0.2 mm
以上
标记不一定必须为黑色。
标记
a
a
a
a