SJSF115900-16_S20_v2016.pdf - 第47页
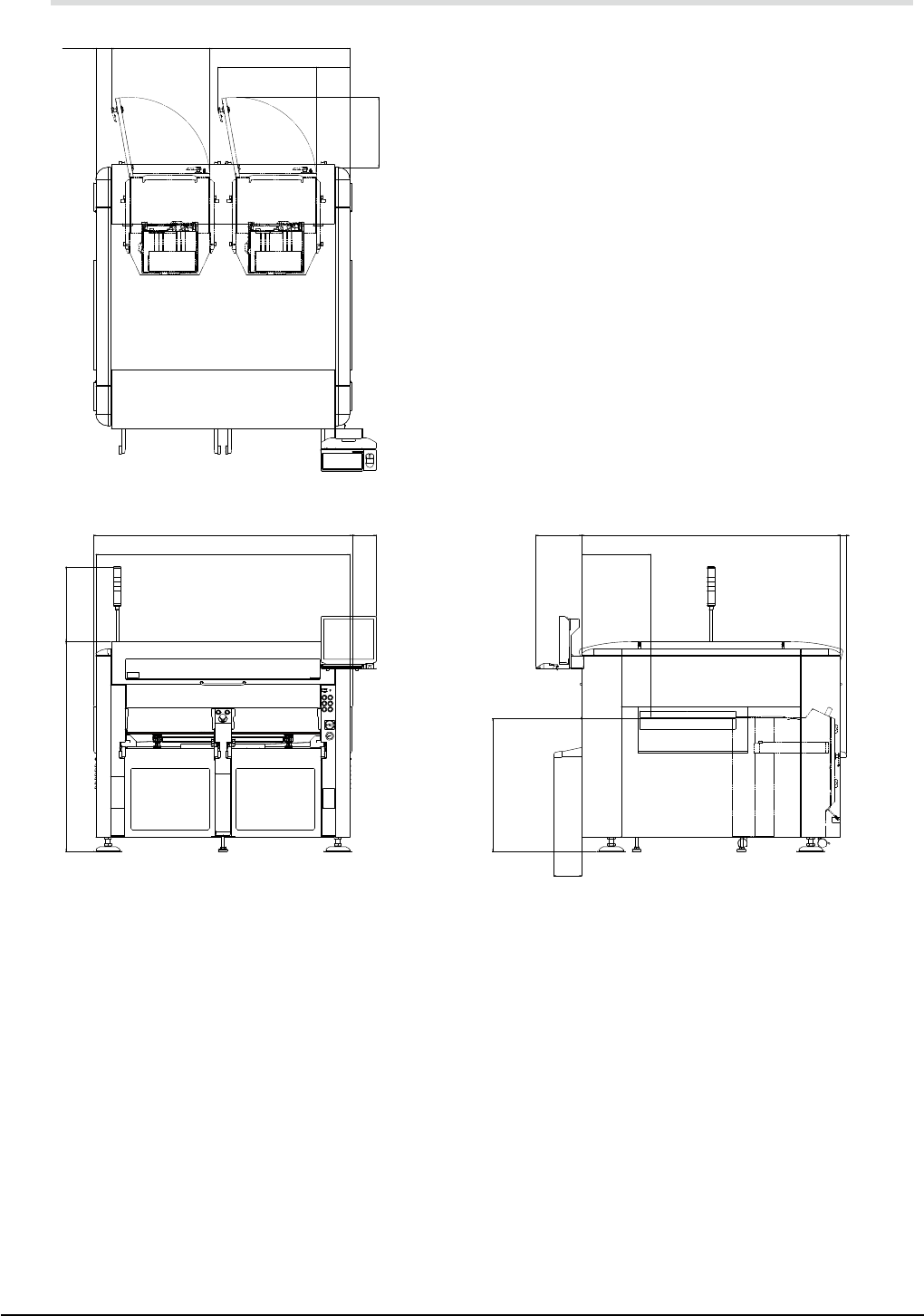
53 20. 外観図 S20 (SJSF115900-16) v2.016 20.4 S20 + FTF 1750 468 310 900 41 190 474 230 665 950 665 105 1420 1720 1750 162 (500)

52
20. 外観図
S20 (SJSF115900-16) v2.016
20.3 S20 + CTF
1420
1720
1750 162
(500)
474
230665
950665105
1750
468
310
900
41
190

53
20. 外観図
S20 (SJSF115900-16) v2.016
20.4 S20 + FTF
1750
468
310
900
41
190
474
230
665
950
665
105
1420
1720
1750
162
(500)

54
21. P ノズルの装着部品対象例(推奨)
S20 (SJSF115900-16) v2.016
21. P ノズルの装着部品対象例(推奨)
ノズルの種類と形状
ノズル No.
内径 ( 相当径 )
外径
パッド外 径
ノズル No.
内径 ( 相当径 )
外径
パッド外 径
※ノズルの特注対応も可能です。弊社にお問い合わせください。