MSR 规格说明书.pdf - 第36页
- 30 - MSR 2001.4.1 11. 选择功能 选择功能 选择功能 选择功能 (2) 共同 共同 共同 共同 11.1 有关对象基板功能 有关对象基板功能 有关对象基板功能 有关对象基板功能 11.1.1 扩大搬送基板尺寸 扩大搬送基板尺寸 扩大搬送基板尺寸 扩大搬送基板尺寸 (1) M 尺寸 尺寸 尺寸 尺寸 最大可以对应 400 × 270mm 50 400 3 3 3 3 3 3 44 264 50 270 20 50 …

- 29 -
MSR 2001.4.1
(3) 搭载规格
要是RM散装料架的话、由于要供给料架电和空气、必须在本体上安装复式接头(manifold)。
从供给部侧看的图
前面
i) 搭载一部分的情况下
搭载一部分的情况下搭载一部分的情况下
搭载一部分的情况下
75
15
75+75=150
站
30
15
30+30=60
站
50
15
50+50=100
站
+
+
+
75
15
50
15
30
15
ii) 全部搭载的情况下
全部搭载的情况下全部搭载的情况下
全部搭载的情况下
75
15 15 15 15 15
75+75=150
站
30
15 15
30+30=60
站
50
10 15 15
50+50=100
站
+
+
+
10
75
15 15 15 15 15
50
10 15 1510
30
15 15
※详细请参照「RM散装料架」的规格说明书。

- 30 -
MSR 2001.4.1
11.选择功能
选择功能选择功能
选择功能 (2)共同
共同共同
共同
11.1 有关对象基板功能
有关对象基板功能有关对象基板功能
有关对象基板功能
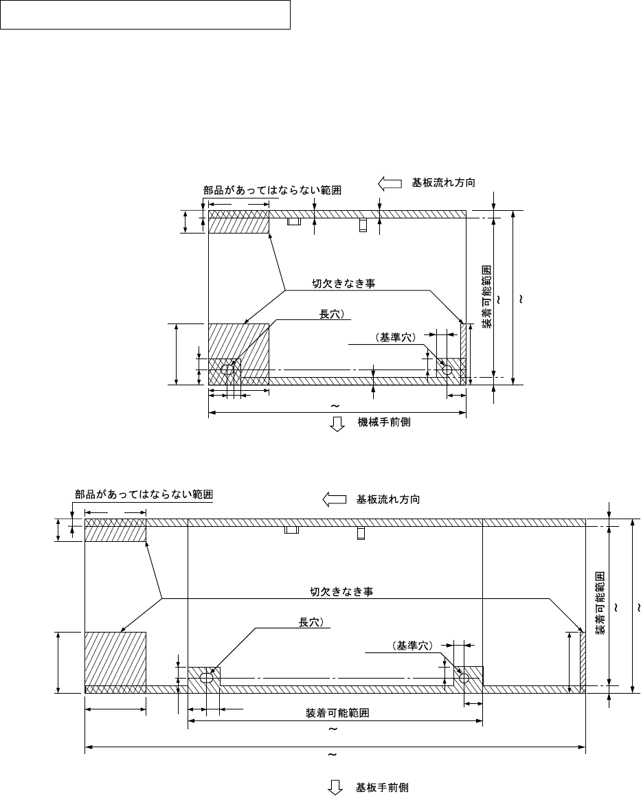
11.1.1 扩大搬送基板尺寸
扩大搬送基板尺寸扩大搬送基板尺寸
扩大搬送基板尺寸
(1) M尺寸
尺寸尺寸
尺寸
最大可以对应400 × 270mm
50 400
3
3
3
3
3
3
44 264
50
270
20
50
50
52
50
50
5
+0.1
0
3
5
3
4 5 (
+0.1
0
ł4
+0.1
0
3
(2) XL尺寸
尺寸尺寸
尺寸
50 510
50
710
3
33
50 454
50
460
20
50
50 4.5
50
50
5
+0.1
0
3
5
3
4 5 (
+0.1
0
ł4
+0.1
0
3
5
※ 定位销在510mm以内。

- 31 -
MSR 2001.4.1
11.1.2 定位销调整
定位销调整定位销调整
定位销调整
没有基板标志的基板时使用。
50 330 (50 510)
3
3
3
3
3
3
44 244 (44 454)
50
250 (50 460)
20
50
50
52
50
50
5
+0.1
0
3
5
3
4 5 (
+0.1
0
ł4
+0.1
0
3
( )
外
是
是是
是M
( )
内
是
是是
是
XL
11.1.3 定位销自动宽度
定位销自动宽度定位销自动宽度
定位销自动宽度调节
调节调节
调节
对准标准孔的距离移动标准销。
(在操作画面上输入数据或根据基板数据进行自动设定)
11.1.4 stopper自动宽度调节
自动宽度调节自动宽度调节
自动宽度调节
基板stopper自动的进行宽度调节。
11.1.5 后面基准
后面基准后面基准
后面基准
• 从设备正面来看、在基板搬送时把基板基准位置设在后面。
• 基板搬送方向(从前面看) 定为左→右规格。
11.2 不良标志识别功能
不良标志识别功能不良标志识别功能
不良标志识别功能(传感器方式
传感器方式传感器方式
传感器方式)
通过传感器识别显示基板内不良图形的不良标志、不良图型被识别后、不进行贴装动作。
(照相机方式为标准装备)