TCM-X200 (3).pdf - 第94页
3.3.2 3.3.2 3.3.2 3.3.2 3.3.2 线路板的定位 线路板的定位 线路板的定位 线路板的定位 线路板的定位 (TCM-X300) (TCM-X300) (TCM-X300) (TCM-X300) (TCM-X300) 3.3.2.1 3.3.2.1 3.3.2.1 3.3.2.1 3.3.2.1 线路板原点位置的设定 线路板原点位置的设定 线路板原点位置的设定 线路板原点位置的设定 线路板原点位置的设定 线路板原点…

3.3.1.4 3.3.1.4
3.3.1.4 3.3.1.4
3.3.1.4
线路板固定针的设置线路板固定针的设置
线路板固定针的设置线路板固定针的设置
线路板固定针的设置
这是手伸入装置内部的作业,这是手伸入装置内部的作业,
这是手伸入装置内部的作业,这是手伸入装置内部的作业,
这是手伸入装置内部的作业,
请在电源请在电源
请在电源请在电源
请在电源
OFFOFF
OFFOFF
OFF
状态下状态下
状态下状态下
状态下
进行。进行。
进行。进行。
进行。
•
线路板固定针的设置线路板固定针的设置
线路板固定针的设置线路板固定针的设置
线路板固定针的设置
将固定针垂直按入到线路板固定底板的孔内,使线路板固定针均
匀分散插入到线路板整体。
线路板背侧有元件时,安置线路板固定针,使其不要碰到元件。
此时,确认是否触及线路板固定针的凸缘。
Fig.2C14 Fig.2C14
Fig.2C14 Fig.2C14
Fig.2C14
线路板固定针的设置线路板固定针的设置
线路板固定针的设置线路板固定针的设置
线路板固定针的设置
如有芯片元件进入到线路板固定底板的孔内,将导致无法正常设定
线路板固定针的高度,所以有芯片元件进入时,请用吸尘器吸去入
内的芯片元件。
禁止使用气枪清理芯片元件,禁止使用气枪清理芯片元件,
禁止使用气枪清理芯片元件,禁止使用气枪清理芯片元件,
禁止使用气枪清理芯片元件,
以免吹散。以免吹散。
以免吹散。以免吹散。
以免吹散。
将导致装置不良。将导致装置不良。
将导致装置不良。将导致装置不良。
将导致装置不良。
0308-001 3-12
3.3 3.3
3.3 3.3
3.3
线路板的定位线路板的定位
线路板的定位线路板的定位
线路板的定位
注意注意
注意注意
注意
注意注意
注意注意
注意
Note

3.3.23.3.2
3.3.23.3.2
3.3.2
线路板的定位线路板的定位
线路板的定位线路板的定位
线路板的定位
(TCM-X300)(TCM-X300)
(TCM-X300)(TCM-X300)
(TCM-X300)
3.3.2.13.3.2.1
3.3.2.13.3.2.1
3.3.2.1
线路板原点位置的设定线路板原点位置的设定
线路板原点位置的设定线路板原点位置的设定
线路板原点位置的设定
线路板原点位置设定有必要变更线路板 Z 夹板处的偏移补正和线路
板原点位置。
线路板 Z 夹板处的偏移补正的设定变更 XY 工作台滑道上的 Z 夹板位
置( 线路板原点) 为最佳线路板夹板位置。
线路板原点位置变更是对应线路板尺寸的变更。
Table 2C2Table 2C2
Table 2C2Table 2C2
Table 2C2
线路板尺寸线路板尺寸
线路板尺寸线路板尺寸
线路板尺寸
50 50
50 50
50
~~
~~
~
460 460
460 460
460
超过超过
超过超过
超过
460460
460460
460
~~
~~
~
510 510
510 510
510
超过超过
超过超过
超过
510510
510510
510
~~
~~
~
560 560
560 560
560
超过超过
超过超过
超过
560560
560560
560
~~
~~
~
610610
610610
610
线路板原点位置 ~R460mm ~R5100mm ~R560mm ~R610mm
单位: mm
操作顺序操作顺序
操作顺序操作顺序
操作顺序
(1) 进入 “ 机种切换 ” 子菜单的 “ 宽度调整( 原点位置) ” 选项卡,按
*1*1
*1*1
*1[线路板 Z 夹板处的偏移补正] 按钮,显示 “ 线路板 Z 夹板处
的偏移补正 ” 编辑界面,输入线路板 Z 夹板处的偏移补正值,按
[ 设定] 按钮。
Fig.2C15 Fig.2C15
Fig.2C15 Fig.2C15
Fig.2C15 “
宽度调整宽度调整
宽度调整宽度调整
宽度调整
((
((
(
原点位置原点位置
原点位置原点位置
原点位置
))
))
) ”
选项卡选项卡
选项卡选项卡
选项卡
(2) 进入 “ 机种切换 ” 子菜单的 “ 宽度调整( 原点位置) ” 选项卡,选
中
*2*2
*2*2
*2 线路板原点位置。
0308-001 3-13
3.3 3.3
3.3 3.3
3.3
线路板的定位线路板的定位
线路板的定位线路板的定位
线路板的定位
*1*1
*1*1
*1
*2*2
*2*2
*2

3.3.2.23.3.2.2
3.3.2.23.3.2.2
3.3.2.2
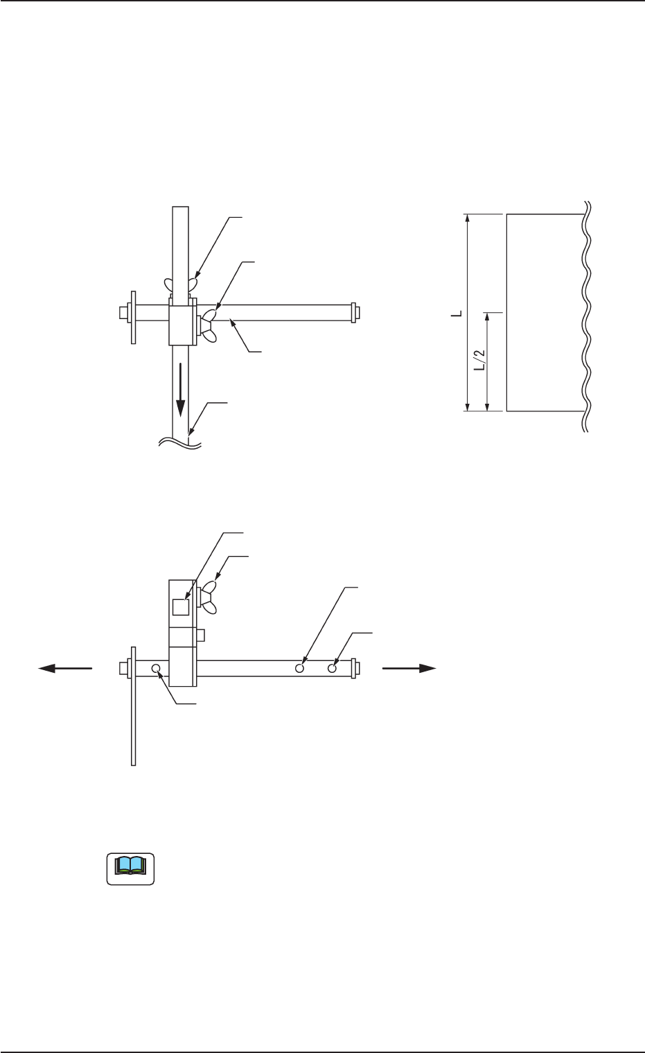
线路板搬运送料棘爪的调整线路板搬运送料棘爪的调整
线路板搬运送料棘爪的调整线路板搬运送料棘爪的调整
线路板搬运送料棘爪的调整
(1) 缓缓滑动线路板搬运送料棘爪的蝶形螺栓(Y 方向用) ,对准线
路板宽度的 1/2(线路板中央) 位置固定。
(2) 对准线路板大小,缓缓调整送料棘爪的蝶形螺栓(X 方向用) 位
置。
Fig.2C16Fig.2C16
Fig.2C16Fig.2C16
Fig.2C16
传送带的滑道宽度设定为 “50mm” 左右时,请留意不要使送
料棘爪碰到装置结构物。
0308-001 3-14
3.3 3.3
3.3 3.3
3.3
线路板的定位线路板的定位
线路板的定位线路板的定位
线路板的定位
蝶形螺栓蝶形螺栓
蝶形螺栓蝶形螺栓
蝶形螺栓
(X(X
(X(X
(X
方向调整用方向调整用
方向调整用方向调整用
方向调整用
))
))
)
蝶形螺栓蝶形螺栓
蝶形螺栓蝶形螺栓
蝶形螺栓
(Y(Y
(Y(Y
(Y
方向调整用方向调整用
方向调整用方向调整用
方向调整用
))
))
)
线路板线路板
线路板线路板
线路板
送料杆送料杆
送料杆送料杆
送料杆
(X(X
(X(X
(X
方向调整用方向调整用
方向调整用方向调整用
方向调整用
))
))
)
送料杆送料杆
送料杆送料杆
送料杆
(X(X
(X(X
(X
方向调整用方向调整用
方向调整用方向调整用
方向调整用
))
))
)
送料杆送料杆
送料杆送料杆
送料杆
蝶形螺栓蝶形螺栓
蝶形螺栓蝶形螺栓
蝶形螺栓
(Y(Y
(Y(Y
(Y
方向调整用方向调整用
方向调整用方向调整用
方向调整用
))
))
)
固定位置固定位置
固定位置固定位置
固定位置
((
((
(
超过超过
超过超过
超过
460mm460mm
460mm460mm
460mm
~~
~~
~
560mm)560mm)
560mm)560mm)
560mm)
((
((
(
正面图正面图
正面图正面图
正面图
))
))
)
固定位置固定位置
固定位置固定位置
固定位置
((
((
(
超过超过
超过超过
超过
560mm560mm
560mm560mm
560mm
~~
~~
~
610mm)610mm)
610mm)610mm)
610mm)
固定位置固定位置
固定位置固定位置
固定位置
(50mm(50mm
(50mm(50mm
(50mm
~~
~~
~
460mm)460mm)
460mm)460mm)
460mm)
((
((
(
俯视图俯视图
俯视图俯视图
俯视图
))
))
)
Note