KE-750_KE-760-Rev07PDF.pdf - 第55页
- - REF.NO NOTE PART NO D E S C R I P T I O N Q ty 1 #01 E2301 - 725-AA0 Y AX IS F RAM L ASM. ( L) 1 2 #02 E2301 - 725-BA0 Y AX IS F RAM L ASM. ( E ) 1 3 #01 E2351 - 725-000 Y AX IS F RAM L ( 1) 4 #02 E2381 - 725-000 Y…

- -
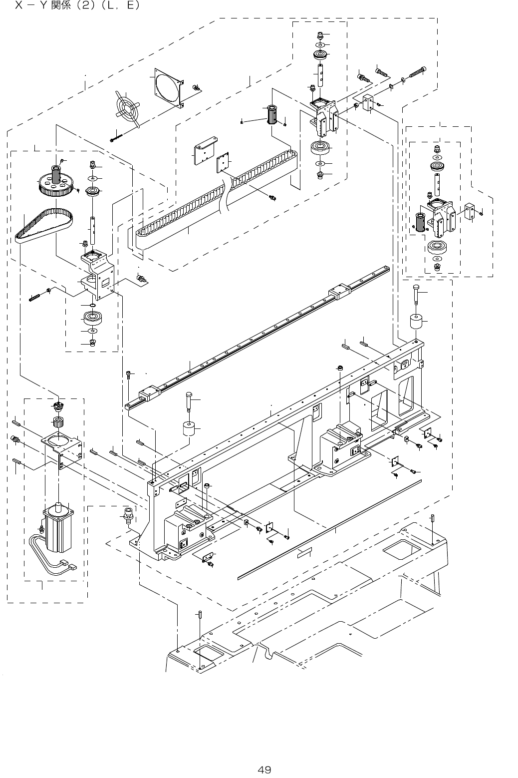
25.X-Y COMPONENTS (2)(L,E)
4 0
7 2
7 2
4 9
5 0
6 2
6 3
6 5
6 4
6 5
6 4
2 0
5 6
5 6
5 6
6 7
2 2
8
1 2
1 0
1 1
1 5
1 3
5
1 2
9
4 4 7 0
1 8
1 7
1 8
1 4
2 3
2 3
1 6
6 6
6 6
6 6
6 8
2 8
2 7
2 9
4 1
4 2
4 3
5 5
5 4
4 9
5 2
5 3
5 5
5 7
5 9
5 8
5 8
6 6
6 7
1 9
2 4
2 4
5 4
5 0
3 4
7 1
2 1
2 5
6 6
6 6
6 7
5 4
2 6
3 6
3 5
3 8
3 8
3 9
3 9
3 7
4 7
3 0
6 1
6 0
4 5
3 3
3 2
3 4
5 1
4 6
4 8
3 1
3 3
6 9
7 5
7 6
7 3
7 4
5 5

- -
REF.NO NOTE PART NO D E S C R I P T I O N Qty
1
#01
E2301-725-AA0 Y AXIS FRAM L ASM. (L) 1
2
#02
E2301-725-BA0 Y AXIS FRAM L ASM. (E) 1
3
#01
E2351-725-000 Y AXIS FRAM L (1)
4
#02
E2381-725-000 Y AXIS FRAM L (E) (1)
5 E2353-725-000 LM GUIDE (Y) (1)
6 #01 SM-6051402-TN HEXAGONAL-HOLE BOLT M5 L=14 (21)
7
#02
SM-6051402-TN HEXAGONAL-HOLE BOLT M5 L=14 (22)
8 E2305-725-0A0 YM BRACKET ASM. (1)
9 E2305-725-000 YM BRACKET (1)
10 KM-0000000-20 SERVO MOTOR 800W (1)
11 SL-6051492-TN BOLT (4)
12 E2409-725-000 PULLEY M (1)
13 E2322-721-000 ETP BUSH (1)
14 SL-6061642-TN BOLT (4)
15 E2307-725-0A0 YA PULLEY BRACKET ASM. (1)
16 E2307-725-000 YA PULLEY BRACKET (1)
17 E2410-725-000 PULLEY XA (1)
18 SM-8050412-TP SCREW M5 L=4 (4)
19 E2325-725-000 SHAFT YA (1)
20 G1216-870-000 UPPER SHAFT REAR BEARING (1)
21 SB-1150012-00 BEARING (1)
22 SL-6051092-TN SCREW (4)
23 SL-6061042-TN BOLT (2)
24 WP-0651646-SR WASHER (2)
25 E2306-725-000 TIMING BELT (YA) (1)
26 E2326-725-000 THRUST COLLAR YA (1)
27 SL-6051042-TN SCREW (2)
28 SL-4033091-SC SCREW M3 L=30 (4)
29 HM-0003300-20 FINGER GUARD (1)
30 E2310-725-AA0 YB PULLEY BRACKET L ASM. (1)
31 E2310-725-000-A YB PULLEY BRACKET L (1)
32 E2413-725-000 PULLEY XB (1)
33 SM-8050412-TP SCREW M5 L=4 (4)
34 E2414-725-000 SHAFT XB (1)
35 G1216-870-000 UPPER SHAFT REAR BEARING (1)
36 SB-1150012-00 BEARING (1)
37 SL-6051092-TN SCREW (4)
38 WP-0651646-SR WASHER (2)
39 SL-6061042-TN BOLT (2)
40 E2308-725-000 TIMING BELT (YB) (1)
41 E2313-725-000 Y BELT STAY (1) (1)
42 E2314-725-000 Y BELT STAY (2) (1)
43 SL-6041242-TN BOLT (6)
44
#01
SL-6062592-TN SCREW (4)
45 SL-6065092-TN BOLT (1)
46 NM-6060001-SC NUT M6 (1)
47 E2315-725-000-A Y TENSION SUPPORT (1)
48 SL-6062542-TN SCREW (1)
49 E2368-700-000 CONVEYOR STOPPER (L) (2)
50 E2321-721-000 STOPPER RUBBER (2)
51 SL-6062592-TN SCREW (4)
52 E2323-725-000 Y-ORG BRACKET (1)
53 SL-6041092-TN SCREW (2)
54 E2324-725-000 Y-LMT BRACKET (3)
55 SL-6041092-TN SCREW (6)
56 SM-4860801-SC SCREW M2.6 L=8 (3)
57 E9609-721-A00 MAGNET SCALE (1)
58 E2623-721-000 BANK LOCATE BUSH B (2)
59 E2333-715-000 CAUTION SEAL (1)
60 WS-0610002-KN SPRING WASHER 6.1X12.2X1.5 (1)
61 WP-0641601-SC WASHER (1)
62 SM-8053002-TP SCREW M5 L=30 (1)
63 NM-6050001-SC NUT M5 (1)
64 HX-0029400-00 FIXED BASE (2)
65 SL-6041042-TN BOLT (2)
66 PS-0600182-KP SPRING PIN (4)
67 PH-0600202-C0 PARALLEL PIN (2)
68 E2323-721-000 YM FAN BRACKET (1)
69 E2316-725-000 Y TENSION SUPPORT PIN (1)
70
#02
SL-6061642-TN BOLT (4)
71 SL-6103042-TN BOLT 8
72 PS-0600182-KP SPRING PIN 2
73 E2310-725-0C0 YB PULLEY BRACKET L ASM. 1
74 E2310-725-0B0 YB PULLEY BRACKET L ASM. (1)
75 E2316-725-000 Y TENSION SUPPORT PIN (1)
76 E2315-725-000-A Y TENSION SUPPORT (1)

- -
26.X-Y COMPONENTS (3)(M)
4 0
6 1
5 9
5 7
6 5
6 3
6 4
6 5
6 2
6 0
5 8
5 6
7 5
7 5
7
7 0
7 1
8
2 2
7 4
7 3
1 8
4 2
4 3
2 1
2 0
2 0
2 1
3 5
1 7
3 8
3 6
3 8
3 9
3 9
1 9
3 7
3 0
1
6 8
6 9
4
3
6
9
5 1
1 3
1 5
1 6
5 0
1 1
2 6
2 8
2 7
2 9
3 2
1 5
3 3
3 3
3 4
4 4
2 4
2 5
2 4
2 4
4 7
4 6
4 8
5 0
4 9
4 9
5 5
5 2
5 3
5 4
1 4
2 4
1 2
4 1
5
3 1
2
1 0
6 6
4 5
6 7
2 4
2 4
2 3
7 2
7 6
7 7
7 8
7 9