5OM-1603-005_w.pdf - 第105页
5OM-1603 3-2 Parts Location 1 102-004D(01700) Layout under the Base (DC Power Supply) M174 M173 G4

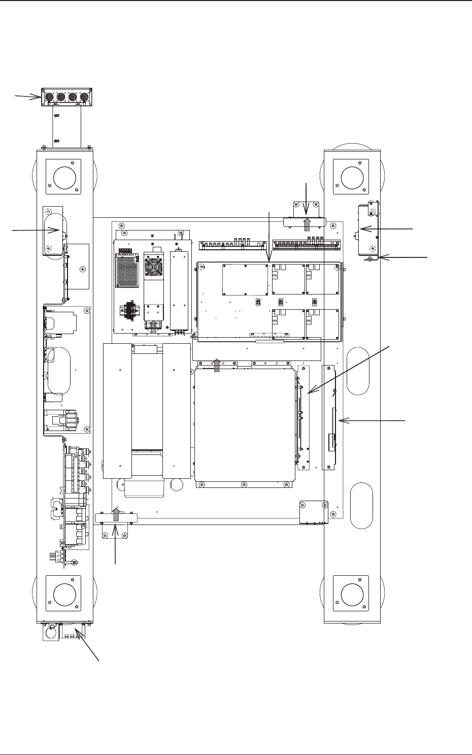
5OM-1603
3-1
Parts Location
1102-004F(01C00)
Layout under the Base (General View)
Front/Rear I/F BOX
Intermediate Conveyor I/F (L)
Side Panel C Side Panel R
Side Panel L
Noise Filter
Air Inlet FAN
DC Power Supply
CPU-1,-2
LAN I/F
LED Lighting Control PCB
OP Panel RB
Intermediate Conveyor I/F (R)
Exhaust FAN
Servo Amplifier, I/O Board
CPU-Mst1
(option)

5OM-1603
3-2
Parts Location
1102-004D(01700)
Layout under the Base (DC Power Supply)
M174
M173
G4

5OM-1603
3-3
Parts Location
1102-003J(01300)
Layout under the Base (Side Panel L)
Rear Side
F201 F203
F202
Q201 Q206
Q204
K29 K28 K10
Q205 Q221R Q221R Q221R
Vacuum
Pump
Q221F
X Axis
X Axis Y1 Axis Y2 Axis
Q222F
Y1 Axis
Q223F
Y2 Axis