5OM-1603-005_w.pdf - 第149页
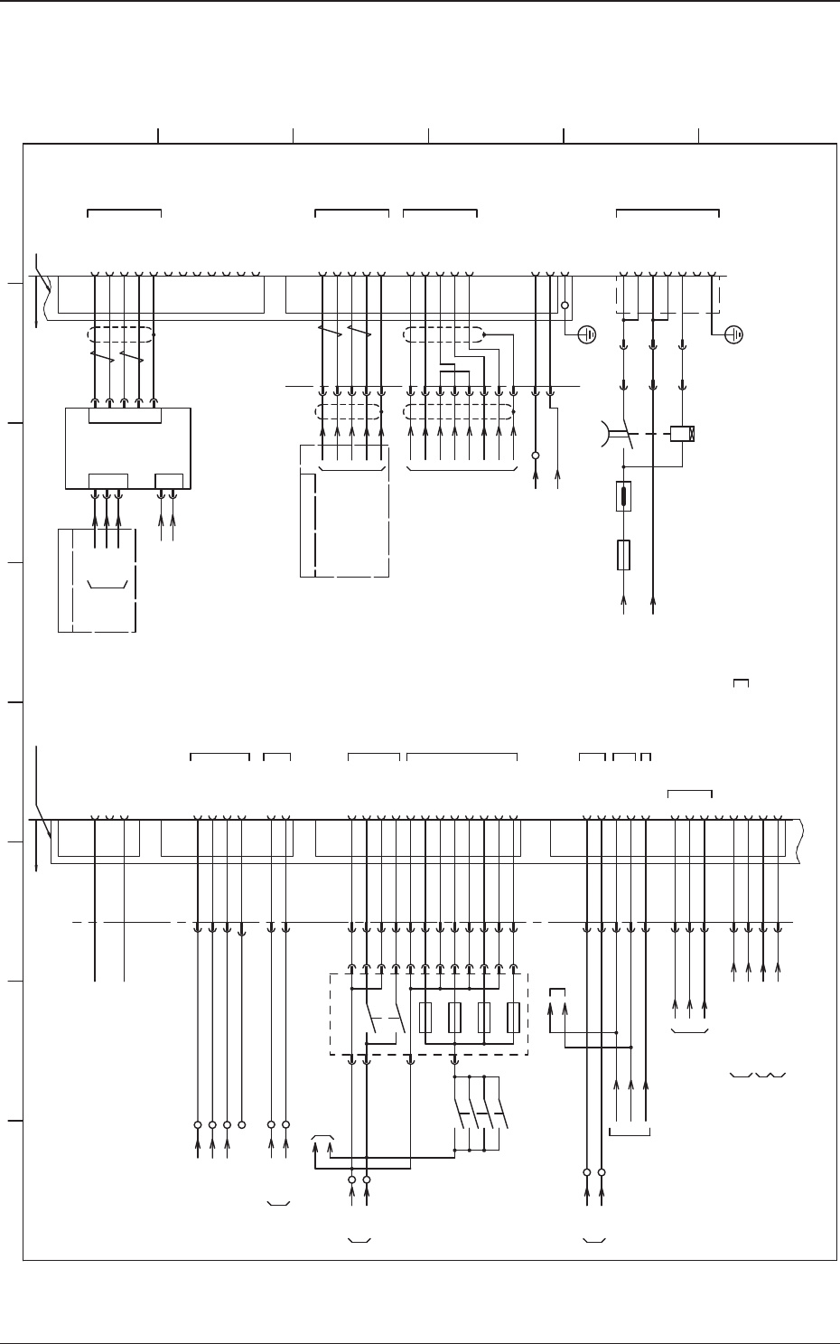
5OM-1603 4-30 1 108-005E(M914WF---0001) CPU1 Circuit Diagram 1 2 3 4 5 6 7 8 9 10 11 12 A B C D E F G H 8 14 13 10 7 6 5 2 3 1 FG R-GND GND GREEN BLUE RED G-GND GND H-SYNC V-SYNC B-GND (CN1) (CN3) CN1 (FRONT) N74F X16503…

5OM-1603
4-29
External Unit Connecting Bundled Connector (Front)
1102-003D(M914WD---0022)
1 2 3 4 5 6 7 8
A
B
C
D
E
F
10G
24G5B
24G6B
24G7B
24G8B
:1
:1
:2
F25(5A)
F26(5A)
F27(5A)
F28(5A)
10G
10G
10G
:4
:3
:2
X27113:1
:4
:3
:2
4443
3433
2423
1413
K77
:2
X2716
:1
43
56
K72
U27
:4
:3
:2
X27122:1
X2717
:3
:4
L110
L210
E
L310
:B2
:B1
:A6
:A5
:B6
:B5
:B4
:B2
:B1
:2
:1
10B
24B1
10D
48D3K
24A2
10A
U181F
:2
:3
:4
:5
:6
:7
:8
:9
:10
:9
:10
:11
:12
TX
-TX
-RX
RxD
GND
RX
SD
TxD
:5
:6
:7
:8
:9
:10
:11
:12
:1
:2
:1
:2
:3
:4
:5
:6
:3
:4
:5
:1
:2
:3
:4
RTS
CTS
:9
:7
:5
:3
[B-/02/11G]
RS232C
:1
:2
:3
:4
:5
:8
:7
:8
:9
:10
:11
:12
N.C
N.C
N.C
N.C
N.C
N.C
N.C
GND
CAN H
24V
A63B
[B-/02/12E]
SD
CAN L
SG
:A2
:A1
:B1
:B2
[B-/03/6G]
GND
DC24
CAN H
CAN L
SD
Q201-L1
Q201-L2
Q201-L3
[B-/01/4F]
:1
:4
:3
:2
1
5
4
2
3
X1811F
CN1
10D
48D3K
24A2
10A
10G
24G1B
24G2B
10G
[D-/22/5B]
U181F-X1812
:B3
425
X27154
[B-/02/6E]
10B
24B1
10G
24G
421
:A1
:A4
:A3
:A2
:A1
:A2
:B3
:9
:7
:5
:3
X27114:1
:1
:2
:3
U27(RLY)
-X1300B1
-X1300C
-X1300D1
-X1300F1
-X1300D3
-X300B
-X300C
-X300D
-X300F
-X300E-X300A
U69(FB) (2)
X6909
U69(FB) (2)
X6906
24G3B
*
-X1300B2
:3
:6N.C
:11U27-X2723:3
:1
[BL/01/2B]
-X1300F3
500
:12
:2
U06(CT)-X0616:1
U06(CT)-X0616:2
10B
680
U12(PWR)-X1222:2
U12(PWR)-X1223:2
[D-/21/3C]
[BL/03/6D]
[BL/03/6D]
538
539
CPU2(U81)-COM2
U14(STLT_CNVR:R)
X1402
X8109
[F-/11/8C]
[FB/01/1F]
[FB/01/1F]
[FB/01/1C]
1
2
CN2
GND
24V
10A
24A2
X1812
[D-/22/3E]
COM A
A1
B1
A3
CN4
TR+
TR-
GND
COM B
10B
:2
:3
:4
X1814
:5
:3
:8
:7
:2
:2
:3
:5
:7
:8
:6
:4
:4
:6
-X1300F2
X30F
[D-/22/5E]
-X1140
:3
:1
:2
914B
913B911B 912B
14 13
K90B
8 12
R03B
(1sec)
F050B(5A)
:3
-X2140
:1
:2
24G
10G
X140F
:E
:F
:G
:B
:C
:D
:A
[D-/22/1C]
913B
913B
10G
10G
914B
FG
U05-X0523:2
[BL/01/7E]
513
:6
:7
:8
:A2
:A1
-X1300D2
:B1
2CH
AE-LINK
2ch-1
HLS-LINK
1 2 3 4 5 6 7 8
A
B
C
D
E
F
Air Pressure
(Bundled Connector Relay)
TV.EV12 Power Supply (OP)
EMI Case
Multi-Layer Tray (OP)
AC200V Power Line
DC Power Line
for the Feeder Base
DC48V Power Line
SV-NET
A63B
CT-Axis AMP
CT-Axis AMP
DC Power Line for
the Multi-Layer Tray (OP)
Feeder Connection Confirmation
Multi-Layer Tray Connection Confirmation (OP)
Wafer Connection Confirmation (OP)
Multi-Layer Tray (OP)
(Bundled Connector Relay)
EMI Case
Safety Circuit
Multi-Layer Tray (OP)
DC Load Power Line
DC Power Line
for the Feeder Base
Air Pressure
*OPTION
[CU/01/1B]
[FB/01/1G]
[FB/01/1A]
[CU/01/1B]
Main Machine
X30R : External Unit Connecting Bundled Connector
SL-SRS or DL-SRS
SL-SRS or DL-SRS
EMI Case
Connector Case
Main Machine
External Unit Connecting
Bundled Connector
Tape Feeder
Single Connection
Connector
(Drawer Connector)
[FB/01/1F]
ToEthernet Convertor To ID Controller
(2 Pin)
A Module
(6 Pin)
B Module
(12 Pin)
C Module
(5 Pin)
D Module
(12 Pin)
E Module
(12 Pin)
F Module
Multi-Layer Tray <ACV> (OP)
Multi-Layer Tray <ACV> (OP)
Multi-Layer Tray : Emergency Stop
Multi-Layer Tray :
Interlock
Feeder Base

5OM-1603
4-30
1108-005E(M914WF---0001)
CPU1 Circuit Diagram
1
2 3 4 5 6 7 8 9 10 11 12
A
B
C
D
E
F
G
H
8
14
13
10
7
6
5
2
3
1
FG
R-GND
GND
GREEN
BLUE
RED
G-GND
GND
H-SYNC
V-SYNC
B-GND
(CN1)
(CN3)
CN1
(FRONT)
N74F
X16503
X16501
USB-IN
X7403F VGA
POWER
X7403B
U91
:14
:10
:8
:13
:7
:6
:5
:2
:3
:1
FG
X9104
(CN5)
FG
GND
24V
[R-/01/10C]
1
3
2
POWER
(CN5)
10B
FG
GND
24B3
24V
[B-/02/5C]
1
3
2
(REAR)
N74B
U91
[R-/01/10H]
FG
R-GND
GND
GREEN
BLUE
RED
G-GND
GND
H-SYNC
V-SYNC
B-GND
X7405F
X7405B
10B
24B3
[B-/02/5C]
X7401F
U91
[R-/01/10G]
X19105
X16502
8
14
13
10
7
6
5
2
3
1
FG
R-GND
GND
GREEN
BLUE
RED
G-GND
GND
H-SYNC
V-SYNC
B-GND
CN2
8
14
13
10
7
6
5
2
3
1
FG
R-GND
GND
GREEN
BLUE
RED
G-GND
GND
H-SYNC
V-SYNC
B-GND
CN3
8
14
13
10
7
6
5
2
3
1
FG
R-GND
GND
GREEN
BLUE
RED
G-GND
GND
H-SYNC
V-SYNC
B-GND
8
14
13
10
7
6
5
2
3
1
FG
R-GND
GND
GREEN
BLUE
RED
G-GND
GND
H-SYNC
V-SYNC
B-GND
(CN3)
U165
VGA
(CN1)
USB-IN X7401B
X19106
+24V
GND
2
24B1
10B
POWER
X7307
[B-/02/5C]
CN4
1
Touch Panel Monitor
Touch Panel Monitor
To CPU1(USB)
To CPU1(USB)
Image Changer
To CPU1(VGA)

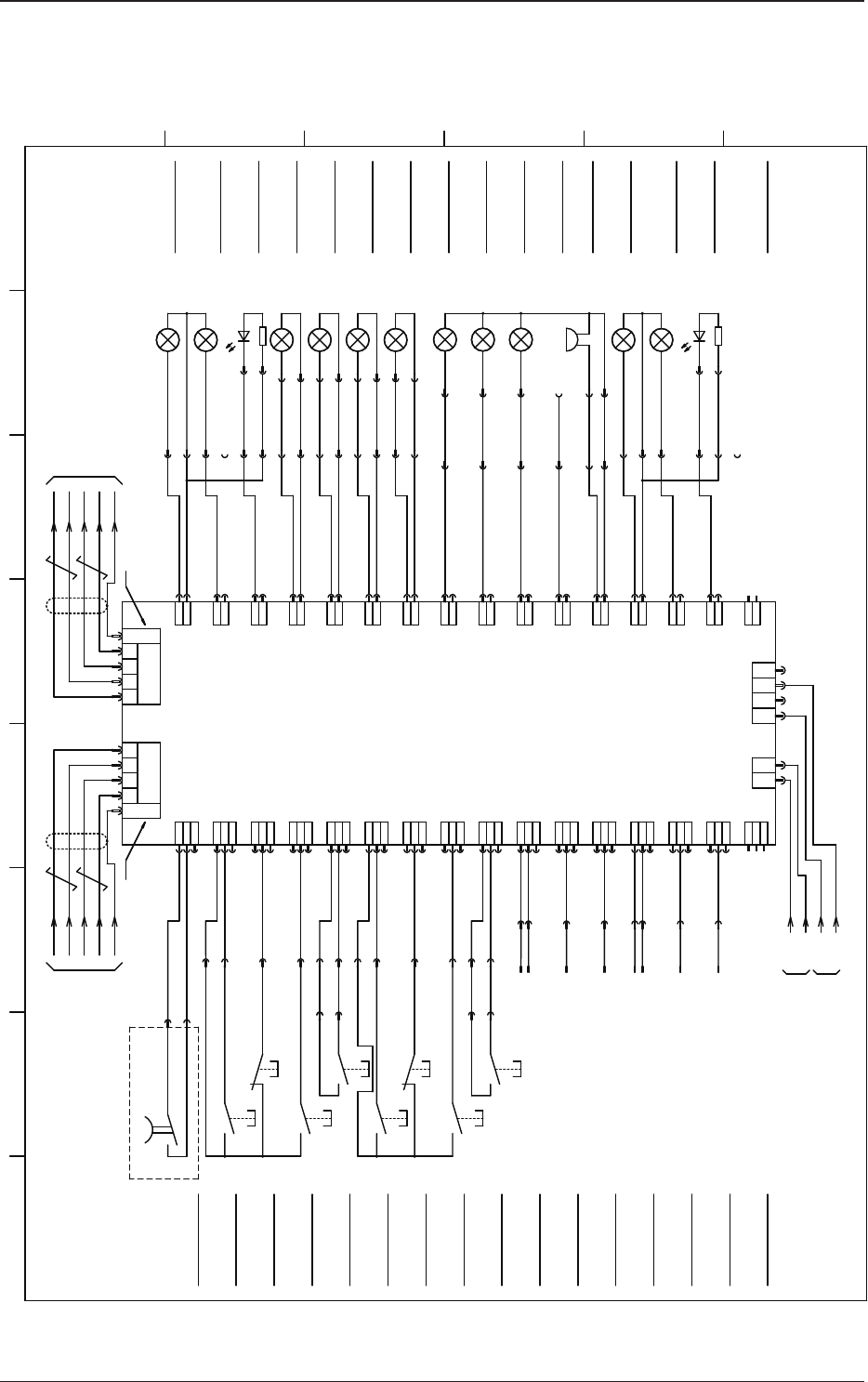
5OM-1603
4-31
1108-003C(M914WF---0002)
U01 I/O PCB STLT PNL
1 2 3 4 5 6 7 8
A
B
C
D
E
F
CN1A/1B CN2A/2B
CN10
1 2
3
CN4
CN3
21
24B1
10B
10A
24A1
CN11
CN12
CN13
CN14
CN15
CN16
CN17
CN18
CN19
CN20
CN21
CN22
CN23
CN25
1
2
3
3
2
1
3
2
1
3
2
1
3
2
1
3
2
1
1
2
3
1
2
3
1
2
3
1
2
3
1
2
3
3
2
1
3
2
1
3
2
1
3
2
1
3
2
1
2
1
CN45
CN43
CN42
CN41
CN40
CN39
CN38
CN37
CN36
CN35
CN34
CN33
CN32
CN31
CN30
CN24
1
2
1
2
1
2
1
2
1
2
1
2
1
2
1
2
1
2
1
2
1
2
1
2
1
2
1
2
1
2
CN44
4
OUTIN
X0103 X0104
:3
:2
:5
:4
RX
/RX
TX
/TX
7 39 5 5 93 7
/TX
TX
/RX
RX
633
634
635
637
PUR
R
OR
GR
Y
:9
:3
:5
:7
K2
7 11
U27
612
613
614
S104R
S103R
611
630
629
628
627
626
H102R
632
631
618
X0101 X0102
610
:A6
X2761
:B6
ch2-1
X8503
U85 HLSC
[F-/13/5B]
(CH2-CN3)
ch2-1
X0901(CN1)
U09(STLT CT(1))
[D-/11/3A]
STLT_PNL
I/O P.C.B
U01
(Operation Panel)
616
617
615
640
639
638
619
620
621
622
623
624
636
X0110
X0111
X0112
X0113
X0114
X0115
X0116
X0117
X0118
X0119
X0121
X0122
X0123
X0124
X0130
X0131
X0132
X0133
X0134
X0135
X0136
X0137
X0138
X0139
X0140
X0141
X0142
X0143
X0144
X0145
X0120
X195-5
X195-6
X195-7
X195-8
X196-5
X196-6
X196-7
X196-8
OP
+
-
NO
NONO
NCNC
NCNC
:3
X1195
:4
:5
X1195
:6
X1195
:3
X1196
:4
:5
X1196
:6
X1196
(UB32)
H104AR
+
-
H104BR
H111R
+
-
NO
S102R
X01R :1
:3
:4
:2
S111R
:1
S111R
:2
10B
10B
10B
S104F
S103F
NO
NONO
NONO
NCNC
NO
S102F
:3
:4
:2
S111F
:1
S111F
:2
X01F :1
:1
:2
S111
:1
:2
S111
:5
X01R
:3S111R :3
S111
:6
:7
:8
:9
:4 :4
24A1
24A1
10B
10B
H111F
+
-
:3S111F :3
S111
:4 :4
24A1
H102F
+
-
H104AF
+
-
H104BF
:5
X01F
:6
:7
:8
:9
24A1
H1
H2
H3
H5
:1H01
:2
:3
:4
:6
:5XH01
:6
:7
:9
:8
:10
H11F
:3XH01 :1
H11F
:4 :2
24A1
H11R
BKW
:1XH01 :1
H11R
:2 :2
24A1
:5
24A1
10B
10B
BKW
:10
:1
:2
X640
H104BF
:1
:2
X628
:10
[FEEDER READY]
STOP (Rear)
PNL CHANGE (Rear)
START (Rear)
Connector Case
PNL CHANGE LED (Rear)
START LED (Rear)
LOCK LED (Rear)
[FEEDER READY]
Material Indicator (Rear)
Material Indicator (Front)
Light Tower (Red)
Light Tower (Yellow)
Light Tower (Green)
Buzzer
F READY (Front)
Connector Case
POWER ON
[B-/02/5C]
F READY (Rear)
STOP (Front)
PNL CHANGE (Front)
START (Front)
[FEEDER READY]
F READY LED (Rear)
[FEEDER READY]
F READY LED (Front)
PNL CHANGE LED (Front)
START LED (Front)
LOCK LED (Front)
Power for Input
[B-/02/5A]
Power for Output
SG
Shuttle Conveyor Connection
Confirmation (L)
Module Conveyor Connection
Confirmation (L)
Conveyor Reference
Confirmation (L)
SG
Shuttle Conveyor Connection
Confirmation (R)
Module Conveyor Connection
Confirmation (R)
Conveyor Reference
Confirmation (R)
Light Tower (Blue)
FG
(Connector Case)
FG
(Connector Case)