5OM-1603-005_w.pdf - 第93页
5OM-1603 2-12 Sensor and Load Layout 1 102-003 Head Section Layout (Head U/D Section) M34 B3106 B3103 Symbol Name Symbol Name M34 Head U/D (HL) Motor B3103 Head U/D (+) Limit B3106 Head U/D (-) Limit

5OM-1603
2-11
Sensor and Load Layout
1102-003
Head Section Layout (Nozzle U/D Section)
B3105
B3104
Symbol Name Symbol Name
M33 Nozzle U/D (NL) Motor
B3104 Nozzle U/D (+) Limit
B3105 Nozzle U/D (-) Limit

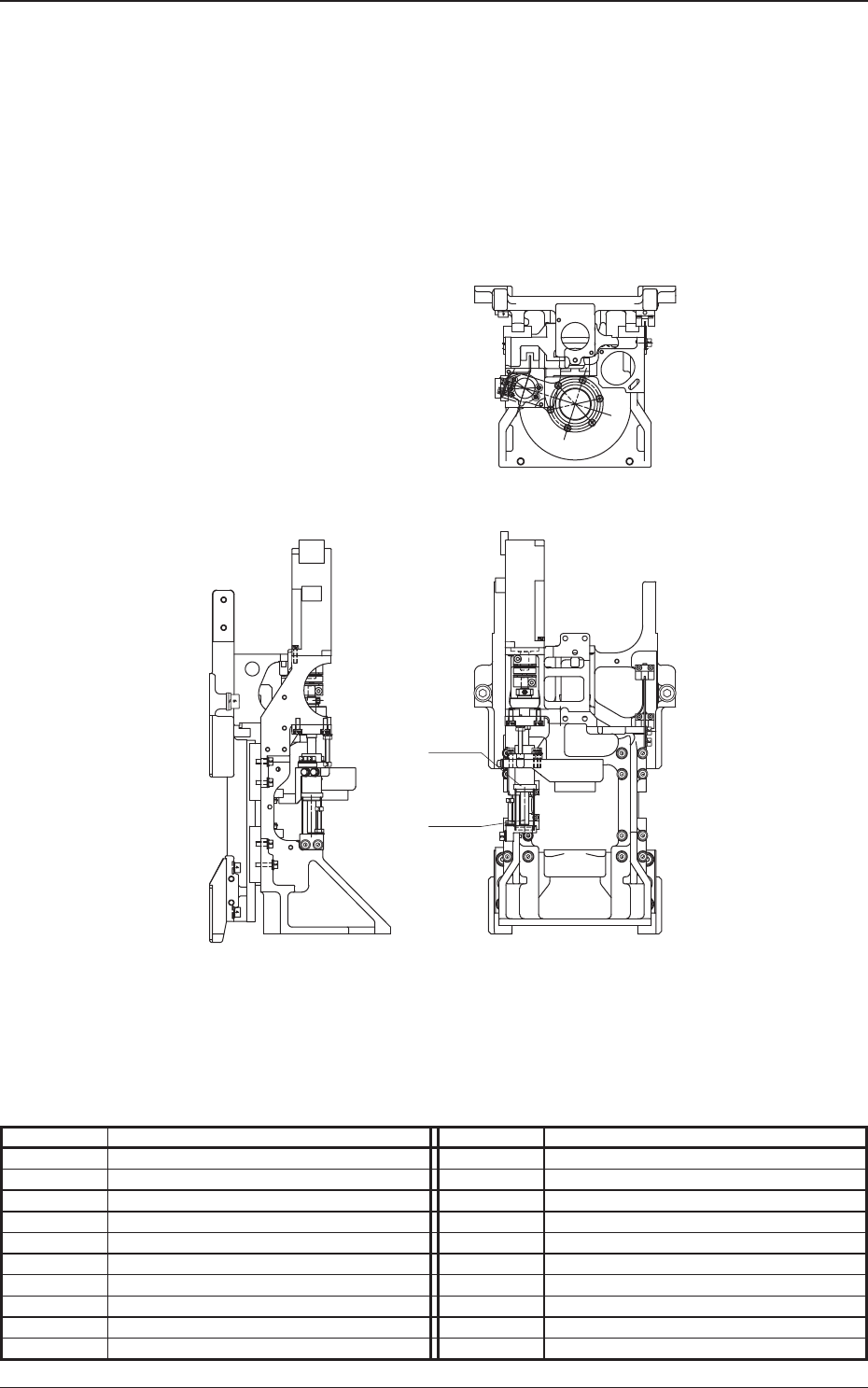
5OM-1603
2-12
Sensor and Load Layout
1102-003
Head Section Layout (Head U/D Section)
M34
B3106
B3103
Symbol Name Symbol Name
M34 Head U/D (HL) Motor
B3103 Head U/D (+) Limit
B3106 Head U/D (-) Limit

5OM-1603
2-13
Sensor and Load Layout
0908-002
Nozzle Stocker Section Layout
B0622
B0922
B0618
B0918
B0620
B0920
Y0636
Y0936
Y0635
Y0935
Upper Stage: Front View
Lower Stage: Rear View
Symbol Name Symbol Name
Y0635 Nozzle Stocker 2 Shutter Open/Close 1 Y0935 Nozzle Stocker 1 Shutter Open/Close 1
Y0636 High-speed Nozzle Stocker 2 Ascending 1 Y0936 High-speed Nozzle Stocker 1 Ascending 1
B0618 High-speed Nozzle Stocker 2 B0918 High-speed Nozzle Stocker 1
Unit Lower Limit Detection 1 Unit Lower Limit Detection 1
B0620 High-speed Nozzle Stocker 2 B0920 High-speed Nozzle Stocker 1
Shutter Close Check 1 Shutter Close Check 1
B0622 High-speed Nozzle Stocker 2 Clamp Check 1 B0922 High-speed Nozzle Stocker 1 Clamp Check 1