PTS-NATULT2-04.pdf - 第24页
A A D D A A B B C C B B J J J J C C D D E E E E F F F F G G G G K K K K H H H H 21 投 光 受 光 PZ41270 ULR2−B PZ41300 U R 2 − B P Z 4 1 3 0 0 PZ41320 ULR2−A U R 2 − A P Z 4 1 3 2 0 38 39 40 41 42 1 2 2 3 3 4 4 5 5 6 43 43 6 …

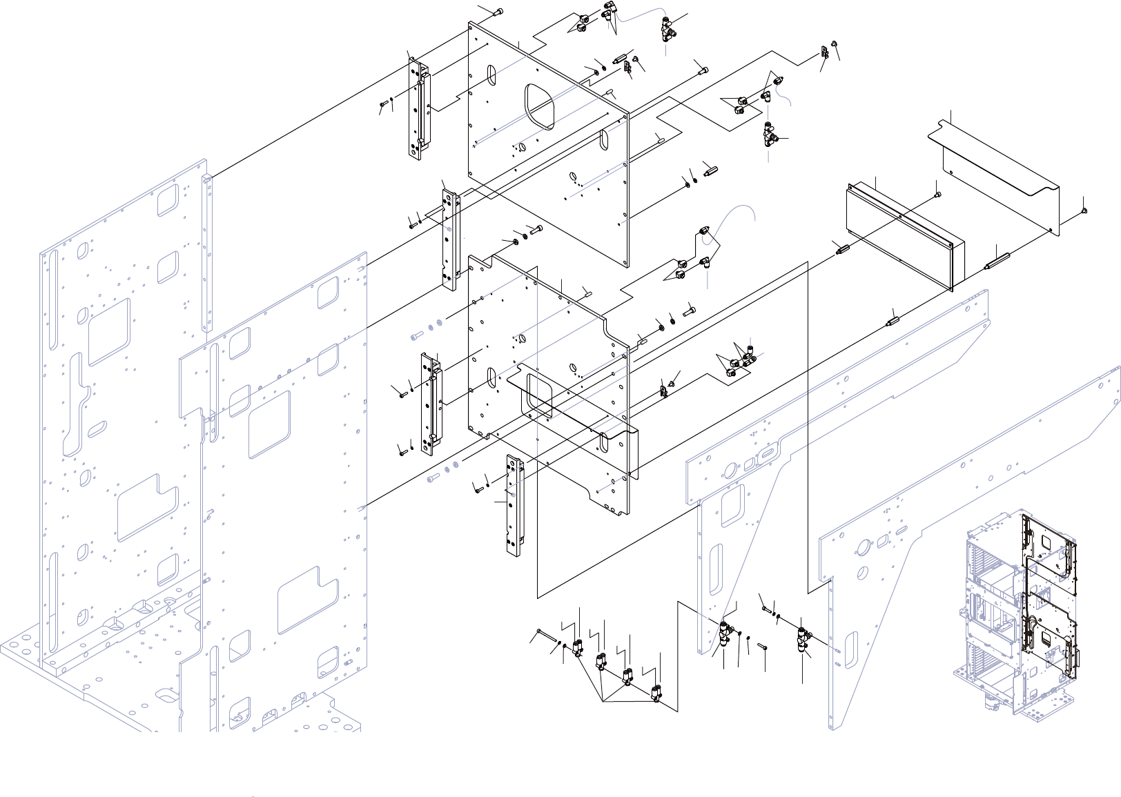
TOWER 4
タワー 4
2AGTTH000208
No. Drg.No. & Code No. QTY Description Rating Remarks
番号 図番 & コード番号 個数 品名 規格 備考
1 2MGTTH001102 1 PLATE, UPPER
プレート 上
2 K5258X 10 SCREW, HEX SOCKET BUTTON
小ネジ 六角穴ボタン
M05X010(3カ シロ)
3 2MGTTH000804 1 PLATE
プレート
4 H5427B 10 BOLT, HEX SOCKET
ボルト 六角穴
M05X012(3カシロ)
5 2MGTTH017100 1 BKT
BKT
6 H5426K 3 BOLT, HEX SOCKET
ボルト 六角穴
M04X008(3カ シロ)
7 S2025A 7 SHEET
シート
CTAM1
8 K5172L 7 SCREW, C/R TRUSS
小ネジ 十穴トラス
M04X006(3カ シロ)
9 XK04380 1 BOARD, PRINTED CIRCUIT
基板 プリント
10 S32439 6 SPACER
スペーサ
BSU-406
11 W1106D 6 WASHER, LOCK
ワッシャ スプリング
4M/M(3カ シロ)
12 W1043C 6 WASHER, FLAT
ワッシャ 平
4W- 4(3カシロ)
13 K5198C 6 SCREW, WASHER ASS'Y
小ネジ 座金組込み
M04X006 ナベセムス P4(3カシロ)
14 H2048A 8 PIN, SPRING
ピン スプリング
φ3X10
23
PTS- NATULT2- 04

AA
DD
AA
BB
CC
BB
JJ
JJ
CC
DD
EE
EE
FF
FF
GG
GG
KK
KK
HH
HH
21
投
光
受
光
PZ41270
ULR2−B
PZ41300
U
R
2
−
B
P
Z
4
1
3
0
0
PZ41320
ULR2−A
U
R
2
−
A
P
Z
4
1
3
2
0
38
39
40
41
42
1
2
2
3
3
4
4
5
5
6
43
43
6
7
7
8
8
9
9
10
10
11
11
14
15
15
16
16
17
17
18
18
19
19
19
20
20
20
21
22
22
23
24
25
26
27
28
30
31
32
33
34
35
35
36
36
37
37
12
13
29
43
43
TOWER 5/
ࢱ࣮࣡
2AGTTH000208
24
PTS- NATULT2- 04

TOWER 5/
タワー 5/
2AGTTH000208
No. Drg.No. & Code No. QTY Description Rating Remarks
番号 図番 & コード番号 個数 品名 規格 備考
1 2MGTTH000904 1 PLATE
プレート
2 H5427B 8 BOLT, HEX SOCKET
ボルト 六角穴
M05X012(3カシロ)
3 2MGTTH003502 2 CYLINDER, AIR
シリンダ エアー
4 H54254 4 BOLT, HEX SOCKET
ボルト 六角穴
M03X012(3カ シロ)
5 W1010A 4 WASHER, CONICAL
ワッシャ 皿
M-3-L
6 S66834 2 SPACER
スペーサ
BSU-421
7 W1106D 2 WASHER, LOCK
ワッシャ スプリング
4M/M(3カ シロ)
8 W1108S 2 WASHER, FLAT
ワッシャ 平
4M/MX0.8X9(1W-4)(3カシロ)
9 A4090A 4 ELBOW, UNIVERSAL
エルボ ユニバーサル
M-5UL
10 Y60181 4 UNION, ELBOW
ユニオン エルボ
KQ2L04-M5A
11 K53228 2 CONTROLLER, SPEED
コントローラ スピード
SCL2-04-H44-F
12 S2025A 5 SHEET
シート
CTAM1
13 K5172L 5 SCREW, C/R TRUSS
小ネジ 十穴トラス
M04X006(3カ シロ)
14 2MGTTH001003 1 PLATE
プレート
15 H5427E 12 BOLT, HEX SOCKET
ボルト 六角穴
M05X018(3カ シロ)
16 W1106E 12 WASHER, LOCK
ワッシャ スプリング
5M/M(3カ シロ)
17 W1108E 12 WASHER, FLAT
ワッシャ 平
4W-5(3カ シロ)
18 2MGTTH003502 2 CYLINDER, AIR
シリンダ エアー
19 H54254 4 BOLT, HEX SOCKET
ボルト 六角穴
M03X012(3カ シロ)
20 W1010A 4 WASHER, CONICAL
ワッシャ 皿
M-3-L
21 A4090A 4 ELBOW, UNIVERSAL
エルボ ユニバーサル
M-5UL
22 Y60181 4 UNION, ELBOW
ユニオン エルボ
KQ2L04-M5A
23 Y60282 4 UNION
ユニオン
KQ2U04-00A
24 H5426C 2 BOLT, HEX SOCKET
ボルト 六角穴
M03X040(3カ シロ)
25 W1106C 2 WASHER, LOCK
ワッシャ スプリング
3M/M(3カ シロ)
26 W1108B 2 WASHER, FLAT
ワッシャ 平
3M/MX0.5X7(3カシロ)
27 K53228 1 CONTROLLER, SPEED
コントローラ スピード
SCL2-04-H44-F
28 H54255 2 BOLT, HEX SOCKET
ボルト 六角穴
M03X015(3カ シロ)
29 W1106C 2 WASHER, LOCK
ワッシャ スプリング
3M/M(3カ シロ)
30 W1108B 2 WASHER, FLAT
ワッシャ 平
3M/MX0.5X7(3カシロ)
31 K53228 1 CONTROLLER, SPEED
コントローラ スピード
SCL2-04-H44-F
32 H54255 2 BOLT, HEX SOCKET
ボルト 六角穴
M03X015(3カ シロ)
33 W1106C 2 WASHER, LOCK
ワッシャ スプリング
3M/M(3カ シロ)
34 W1108B 2 WASHER, FLAT
ワッシャ 平
3M/MX0.5X7(3カシロ)
35 S2025A 4 SHEET
シート
CTAM1
36 K5172L 4 SCREW, C/R TRUSS
小ネジ 十穴トラス
M04X006(3カ シロ)
37 S32449 6 SPACER
スペーサ
BSU-420
38 XK04401 1 BOARD
基板
39 H5426H 2 BOLT, HEX SOCKET
ボルト 六角穴
M04X006(3カ シロ)
40 S61712 4 SPACER
スペーサ
BSU-450
41 2MGTTH003601 1 COVER, WIRING
カバー 配線
42 K5172L 4 SCREW, C/R TRUSS
小ネジ 十穴トラス
M04X006(3カ シロ)
43 H2048A 8 PIN, SPRING
ピン スプリング
φ3X10
25
PTS- NATULT2- 04